设计加:顶端设计
嘉兴高铁新城文化中心
业主对文化中心期待的使用场景林林总总,仿佛这座城市的微缩剪影:文艺演出,规划展览,电影沙龙,市民论坛;餐厅,咖啡,书店,文创,兴趣班,乐器行;聚餐会友,散步遛娃,逛街采风,观景打卡,即兴演出,街头快闪,周末市集……当这些生活场景铺陈展开,如同一把种子撒在这片特殊的场地里,就看怎么破土长出一座有趣、适用、开放包容的建筑。


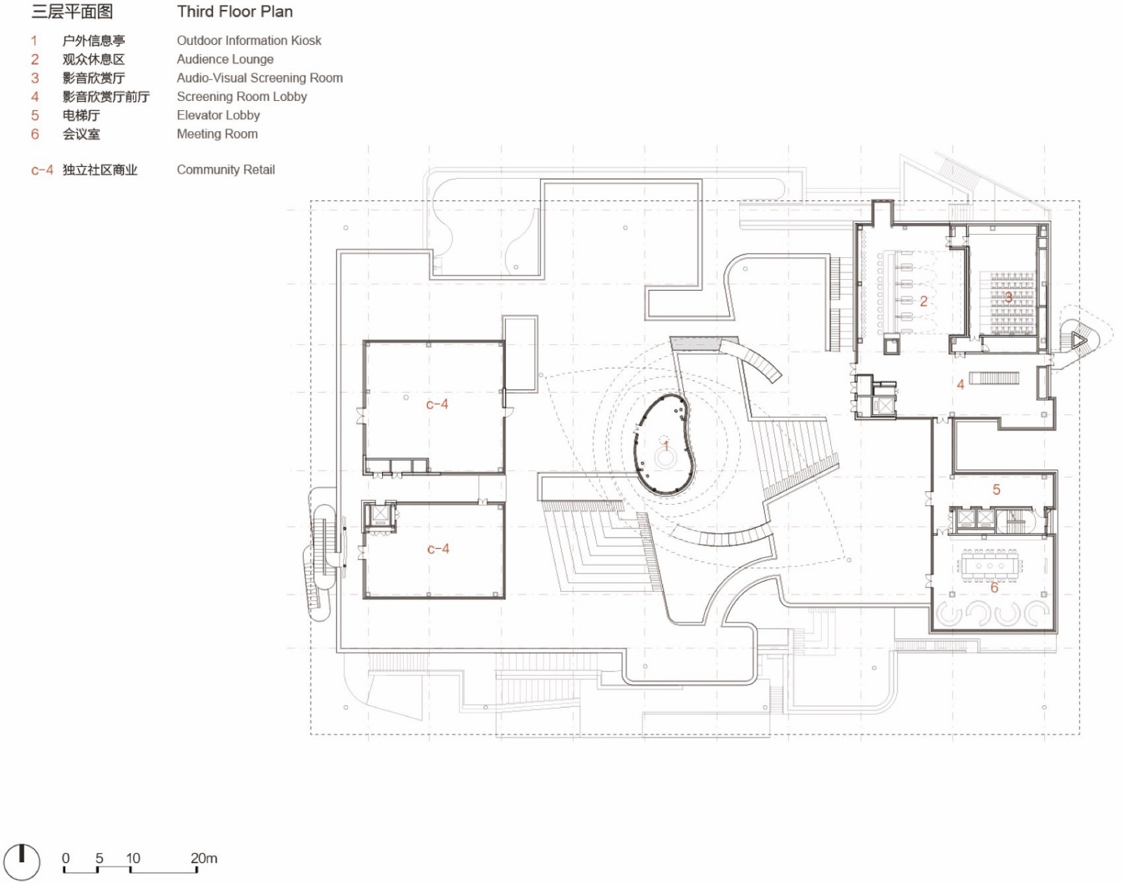
设计将外部空间塑造为可攀登的山体台地,以全天候开放的立体公共平台,消解体量感,避免建筑成为通往滨水的屏障。展厅、接待门厅、多功能剧场等大体量的功能空间和为滨水空间服务的餐厅、书吧设置在首层;各类沙龙论坛和独立商店叠置其上,形成三山夹两水的立体公共街道。市民无需进入展馆,就能沿立体街道登临平台,逛遍各文化服务单元,全方位的欣赏自然水岸和城市景观。开放的立体游线与分区运营模式,为文化活动、市民休闲与夜间经济提供了弹性空间,使文化中心回归城市日常,生长为有烟火气的城市客厅。传统观念里阳春白雪的文化中心,落回城市日常之中,生长为充满烟火气的城市客厅...


用地:14412m2

面积:26082.06m2
设计:清华大学建筑设计研究院有限公司素朴工作室
摄影:高唯芷陈鑫星

嘉兴高铁新城文化中心

地址:嘉兴市南湖区大木西路嘉兴高铁新城文化中心

看地图
收集
设计放心选,监督有保障
  • 更好设计

    这里汇聚顶端、前沿的设计团队与项目创意

  • 更多选择

    这里聚合更多国内外、全产业的服务与产品

  • 全面配套

    可需求发布、招标竞赛、咨询管理配套服务

  • 管控保障

    针对服务产品全程监督管控与质量跟踪评价

上设计加网,实现精益营销
  • 高质展示

    入驻企业专站在市场门户高质的展示传播

  • 精准客群

    几千团队、海量设计师、优质需求与客群

  • 全面营销

    企业推广、合作、招聘、企宣等一站到位

  • 顶层发展

    这里汇聚设计产业供需的顶端圈层共发展