设计加:顶端设计
Jetlag Books 友谊店 - 时空混同
1. 窗口与地标

北京友谊商店位于长安街东段延线的第一使馆区内,是新中国首家专门服务外事人员的大型特供商店。作为计划经济时期中外交流的特殊窗口,它直至上世纪80年代末才逐步对公众开放,在几代北京市民心中极具象征意义。千禧年后,商店发展渐趋式微,于2023年启动全面转型改造,将原后勤内院改造成商业园区,Jetlag Books作为唯一一家书店品牌入驻。

 

友谊商店建筑群以其包豪斯式的不对称体量,结合极具时代特色的所谓“苏联式”立面,自1972年竣工后便成为长安街轴线上的重要地标。Jetlag Books的基地由一栋1970年代末建成的后勤用房与一栋更晚期盖的钢结构建筑连缀而成。前者毗邻主楼东北角,对外仅露出一面保留较好的“苏联式”东立面,后者则仅余结构骨架、屋顶及北侧砖砌外墙。两者坐西朝东呈“”型布局,北邻园区主入口通道,南侧与主楼裙房合围出一片临街小广场,令夹在两块空地间的钢结构基地成为探向东侧道路的“门面”与“展示窗口”。

 

2. 连接与对话

于是,我们很自然地从外立面开始切入设计:如何为新旧两部分基地找到一种能够兼顾周边环境与室内功能的立面表达?友谊商店拥有独特的涉外历史,而Jetlag Books也以“分享世界资讯”为宗旨,选品围绕旅行主题呈现全球视野——两者在各自时代以不同面貌承担着对外连接的窗口角色。设计的主要概念由此被确定为“连接、对话”,我们与业主以审慎态度处理基地与地标性建筑遗产之间的关系,希望书店的建筑形象既能延续友谊商店承载的浓厚集体记忆,又不囿于“怀旧”,而能符合今天的文化消费空间形态,需要“既旧又新”。

 

设计保留了老建筑外立面,清洗修复其水刷石饰面,并降低原门窗高度以获得沿街店铺的昭示性和亲人尺度。钢结构部分的新建外立面则尝试转译老建筑的“苏联式”风格气质,以厚墙、深窗、挑檐、宽基座和高女儿墙为特征的体量带来厚重的纪念性,通体凿毛混凝土饰面则呼应了老建筑粗粝的水刷石立面。

 

东、南向门窗上方的一系列挑檐设计来源于我们对友谊商店及其他同时代“苏联式”建筑的资料研究:友谊商店东南侧裙房原有一道通长的挑檐包绕于窗洞之上,类似构造也常见于当时同风格的商场、书店、饭店等商业建筑的沿街立面中。本项目设置的挑檐即是对这种历史风格的转译延续,其中,老建筑上的挑檐仅填充于原有门窗洞口内,不打破原立面的构图节奏;新建筑上的挑檐则使用了与友谊商店原裙房挑檐类似的通长包绕做法,并在伸向街道的体量东南角做了一处立板悬挑处理,配合其上方墙面由业主设置的“BOOK”字样,成为书店外观的视觉焦点,也强化了基地区位的“橱窗”属性。

 

在新建挑檐下,我们结合深窗设计了可供憩坐的台基,满足业主提出的通过檐下灰空间塑造社区友好立面的需求。新老两部分外立面上的挑檐、檐下竖梃及门窗框均采用更为当代的乱纹不锈钢材质,轻盈而细腻,既与水刷石及凿毛混凝土形成反差,也将新老两部分外立面连为整体。新建外立面的窗洞及檐口高度也与改造后的老建筑保持一致,进一步加强两者的连接。

 

北立面紧邻园区主入口通道,设计保留基地砖墙,在其两侧浇筑混凝土加固并做表面凿毛,更考古般清理呈现出两段原本砌入墙体的园区原水刷石围墙,作为外立面的墙裙。此立面仅在东端新开一面大窗以吸引入园访客,而利用原排风扇洞口设置了一面小高窗、利用原后勤门洞设置了新的外门,门上设计了飞机舷窗形式的视窗,暗示Jetlag Books的旅行主题。因北立面前的景观条件不适合访客停留,所以此处门窗相应未做内凹处理,而是与墙面上的落水管、不锈钢装饰线及墙裙一起构成一幅平面图案。

 

3. 穿梭与缝合

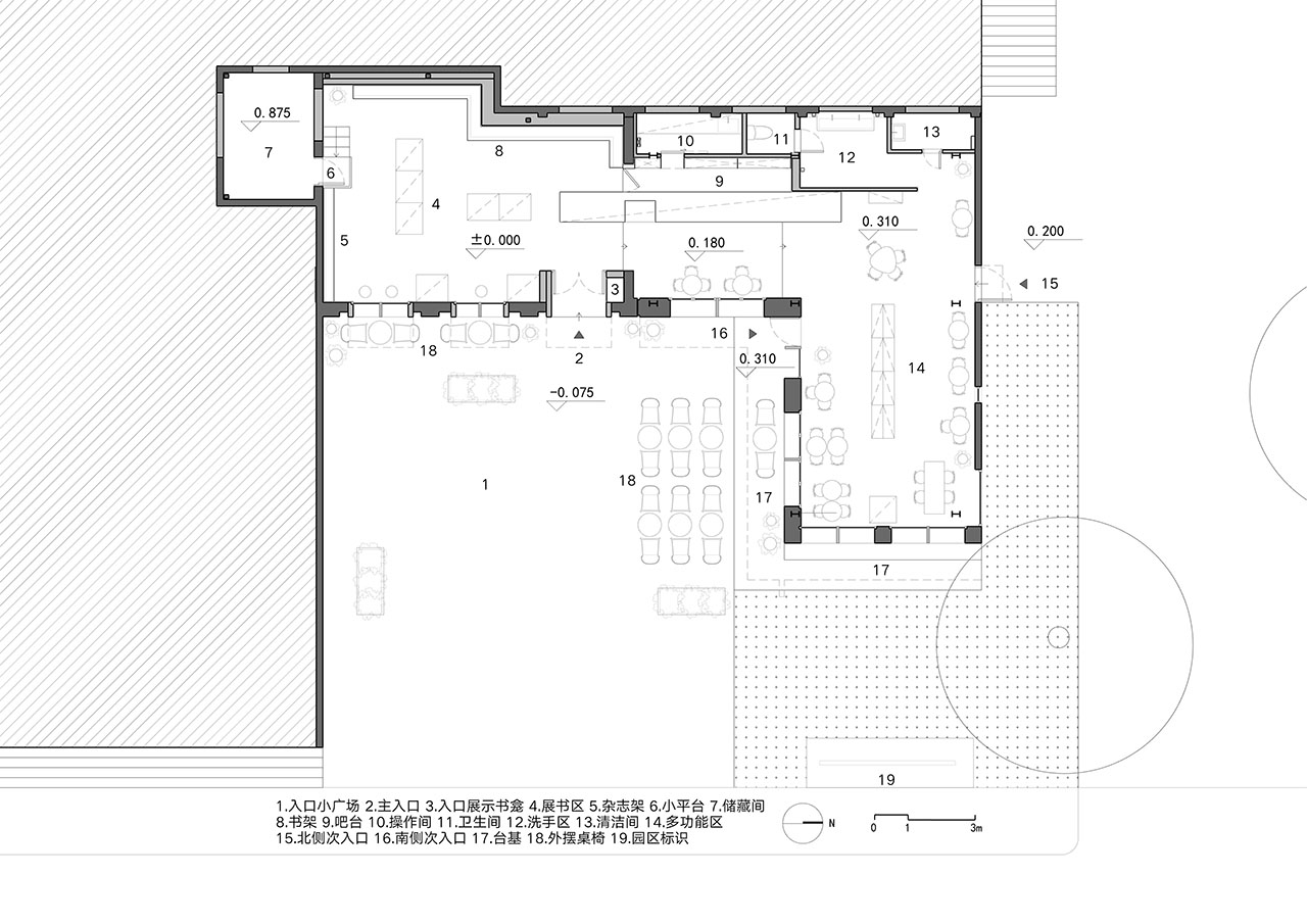
从正门进入书店,迎面看到的便是悬挑的吧台尽端。这条通长8.5米的吧台从老建筑基地内的展书区贯穿到钢结构基地内的多功能区,如同一根缝衣针连接起两个空间。

 

展书区采用黑色釉面瓷砖墙裙及黑色哑光瓷砖铺地,以衬托书籍与文创商品。墙面的乱纹不锈钢书架采用模块化设计,形成层叠的水平线,随墙体折复展开,与外立面挑檐的材质及形式相呼应。六个地柜展台可以根据功能需要灵活拆分组合。展书区南侧的小储藏间实际位于友谊商店主楼裙房内,地坪高过作为后勤用房的老建筑较多,其门扇被处理成融入墙裙的暗门,并在门口设置三级踏步小平台,兼做举办活动时的临时讲台。

 

吧台区作为缝合新旧的枢纽,分别采用与展书区同规格的墨绿色及米褐色瓷砖作为墙面及吧台饰面,营造空间的渐进过渡。我们保留了此处基地原有的一道楼梯在结构顶板的开洞,并将原屋面玻璃楼梯间改造成天窗,为其下的吧台带来戏剧性的天光。玻璃房内悬挂的发光标识则成为外立面上极具辨识度的特征。根据基地原有高差,吧台南北两端各设置了一级台阶,进一步限定出吧台区域边界,也令这里成为书店中形式变化最丰富的空间。

 

书店最北侧体量为多功能区,除日常作为咖啡座位区外,还需满足展览、活动、快闪等多元功能需求。南北两侧设置的两扇外门分别联通小广场及园区主入口,令此空间可以独立对外运营。这里室内仅设置移动家具,墙地面则采用灰色调的凿毛混凝土及水磨石材质,为使用留出最大灵活度之余,也呼应了友谊商店原始外立面及室内铺地的材料。

 

多功能区和展书区均采用了局部吊顶,分别显露出前者的钢结构楼承板和后者的混凝土空心预制板屋顶,既创造出较高的挑空,也向访客展现基地的建设历史。相似的处理还有卫生间洗手区:我们保留了一段老建筑原有外窗“遗迹”的层叠内退构造,定制了与其形式嵌合的洗手池、镜子及壁灯。

 

4. 时空混同

作为针对北京核心区地标进行的城市更新项目,Jetlag Books书店以一种对历史文脉高度敏感的自觉性,平衡着基地历史与当代使用功能、基地与周边环境、以及基地内部新旧之间的关系。友谊商店在过去50年内经历了多次大刀阔斧的改造,很多原始建筑特征已经遗失。不过对我们而言,这却恰是这座有着特殊起源的商业建筑在历史洪流中努力适应时代变化、不断生长的真实见证,也是本次设计所追寻、延续的鲜活生命线。

 

从建华路上自北向南望去,Jetlag Books书店背衬高大的友谊商店,两者既呈现出连续的整体感,又不尽相同,在似与不似之间,让访客难以辨别各部分的建成时间。设计既未刻意保留破败痕迹、成为“时间胶囊”,也没有无视岁月遗存、兀自“割裂创新”,而是以一种混同时空的中间态,将往昔故事融入眼前日常,连接建筑与街道、品牌与社区、过去与当下。

 

项目名称: Jetlag Books书店友谊店

项目类型:改造

项目地点:北京市

建筑面积(平方米):180

设计单位:不也设计工作室

主创建筑师:姜伯源 王静雯 杨硕

设计团队完整名单:姜伯源 王静雯 杨硕 甘锦 金一尘 闫辰霄

业主:Jetlag Books书店 

设计时间(起迄年月):2025.2

建设时间(起迄年月):2025.10

其他参与者,包括但不限于(若无可空出,若有其他合作方请补充):

施工单位:中颐建业建筑工程(北京)有限公司

照明:不热独立灯光设计

施工图深化: 上海呈煜空间设计有限公司

平面导视设计:L3branding

软装设计:Jetlag Books

摄影师:刘松恺

收集
设计放心选,监督有保障
  • 更好设计

    这里汇聚顶端、前沿的设计团队与项目创意

  • 更多选择

    这里聚合更多国内外、全产业的服务与产品

  • 全面配套

    可需求发布、招标竞赛、咨询管理配套服务

  • 管控保障

    针对服务产品全程监督管控与质量跟踪评价

上设计加网,实现精益营销
  • 高质展示

    入驻企业专站在市场门户高质的展示传播

  • 精准客群

    几千团队、海量设计师、优质需求与客群

  • 全面营销

    企业推广、合作、招聘、企宣等一站到位

  • 顶层发展

    这里汇聚设计产业供需的顶端圈层共发展