设计加:顶端设计
椿鲤·民宿
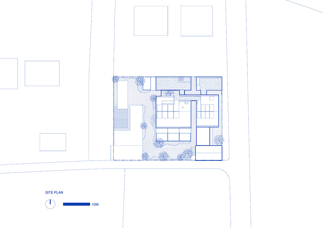
上海市郊新场古镇旁,连绵的水稻田延伸至天际。两栋农民自建房改造为「椿鲤」民宿,像一位守望者,静静立于田畔。

 

设计保留了入口处木结构双坡老屋,仅更换屋面,旧时光的痕迹依旧在。三个新增建筑体量植入场地角落,串联起两栋原建筑——大堂、凉亭、宴会厅成为室内外空间的纽带。下沉卡座区引入天光,与庭院形成对景,坐在那里,视线穿过玻璃,落在稻田上。

 

院落将一切整合。游走其中,空间交错开合,动线本身成了一场探索。客房泡池区窗外,造景既为诗意,也巧妙包裹管线——每一处介入皆有缘由。

 

11间客房、宴会厅、棋牌室,功能齐全却不张扬。在成本与在地施工水平的限制下,固定家具系统整合需求,简化节点,确保落地。这里没有刻意的设计痕迹,只有建筑与稻田的安静对话,守护着这片水土与时光。

 

面积:897平方米

景观:773平方米

设计:间筑设计

摄影:胡斯远

椿鲤·民宿

地址:上海市浦东新区笋王路

电话:13162828280

看地图
收集
设计放心选,监督有保障
  • 更好设计

    这里汇聚顶端、前沿的设计团队与项目创意

  • 更多选择

    这里聚合更多国内外、全产业的服务与产品

  • 全面配套

    可需求发布、招标竞赛、咨询管理配套服务

  • 管控保障

    针对服务产品全程监督管控与质量跟踪评价

上设计加网,实现精益营销
  • 高质展示

    入驻企业专站在市场门户高质的展示传播

  • 精准客群

    几千团队、海量设计师、优质需求与客群

  • 全面营销

    企业推广、合作、招聘、企宣等一站到位

  • 顶层发展

    这里汇聚设计产业供需的顶端圈层共发展