设计加:顶端设计
TAOA 798工作室

北京798艺术区深处,一座旧厂房被阳极氧化铝板轻柔包裹,在老旧的砖墙群中泛起明朗光泽。西侧铝板经过折弯与冲孔,让午后阳光透过细密孔隙洒入室内,光影斑驳而静谧。

 

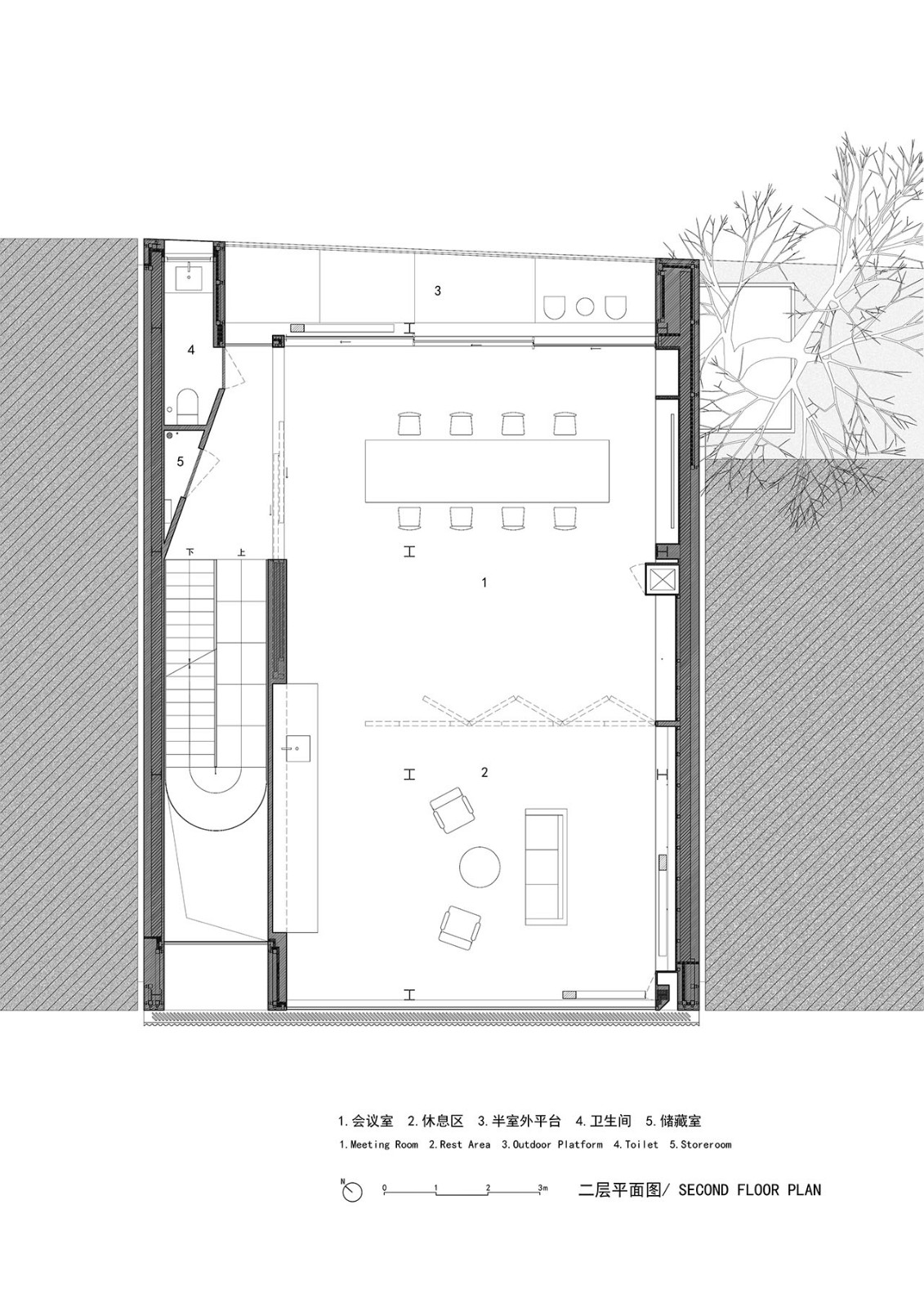
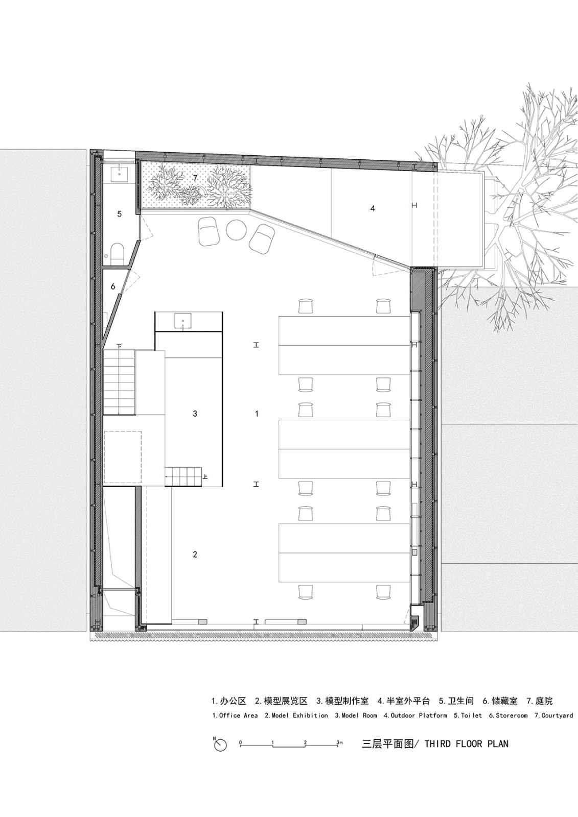
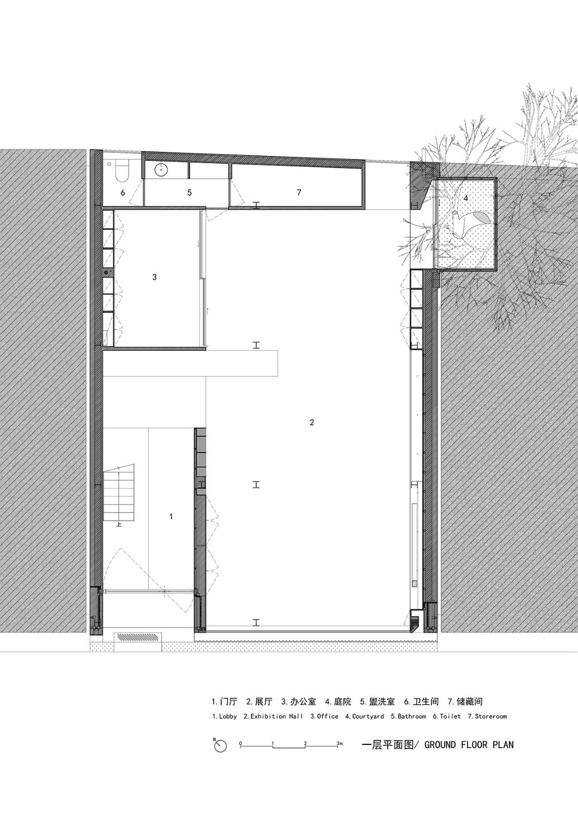
推开门的瞬间,挑空的楼梯间从一层直贯屋顶,将展示、会议与办公三个楼层垂直贯通。拾级而上,空间逐层收窄,西窗从地面缓缓上升,阳光随脚步变换着角度。二楼东墙彻底打开,延伸出半户外露台;三层则藏着一处微型露天庭院。

 

最动人的是东南角那棵大树——树干从一层小院伸展而出,在三楼垂下枝丫,阳台轻轻探入树冠之间。建筑与自然在此温柔相拥,让每一次抬头都能遇见摇曳的枝叶。这里小巧而优雅,在工业遗存的野性自由中,生长出一片明朗的呼吸之地。

 

面积:450m²

设计:TAOA 陶磊建筑

TAOA 798工作室

地址:北京市朝阳区七星中街361号陶磊建筑

看地图
收集
设计放心选,监督有保障
  • 更好设计

    这里汇聚顶端、前沿的设计团队与项目创意

  • 更多选择

    这里聚合更多国内外、全产业的服务与产品

  • 全面配套

    可需求发布、招标竞赛、咨询管理配套服务

  • 管控保障

    针对服务产品全程监督管控与质量跟踪评价

上设计加网,实现精益营销
  • 高质展示

    入驻企业专站在市场门户高质的展示传播

  • 精准客群

    几千团队、海量设计师、优质需求与客群

  • 全面营销

    企业推广、合作、招聘、企宣等一站到位

  • 顶层发展

    这里汇聚设计产业供需的顶端圈层共发展