设计加:顶端设计
摆岁Bersure博物馆海景酒店
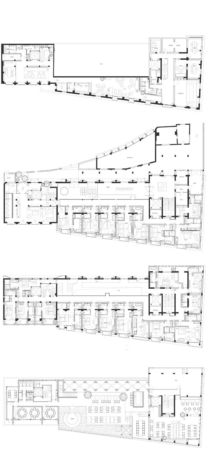
酒店坐落于东壁海岸的红砂岩崖壁之上,由旧三沙芭蕾舞厂改造而成。设计在充分保留原有建筑工业骨架与历史肌理的同时,以现代手法为其注入新生。

 

建筑外部延续了工厂的体量与秩序,并通过新的开口与造型形成古今对话。内部四层通高的中庭震撼呈现原有混凝土结构,其中悬挂约五万条本地竹片编织而成的“渔网”艺术装置,呼应闽南渔村文化,在粗犷与细腻、历史与当代之间构筑诗意联结。

 

酒店融合博物馆功能与居住体验,29间客房均享有开阔海景。公共空间通透流动,巧妙引入自然光与海风,屋顶餐厅“无尽日落”更拥有180度全景视野。材料上运用红砖、旧瓦、竹编等本土元素,使空间深深扎根于在地记忆。

 

这里不仅是栖息之所,更是一座关于光、海与时间的物质诗篇,让工业遗产在霞浦的海岸线上静谧焕发新生。

 

面积:室内5000㎡

设计:蜚声设计

摄影:欧阳云-隐象建筑摄影

摆岁Bersure博物馆海景酒店

地址:福建省霞浦县三沙街奇沙195号

电话:0593-8639333

看地图
收集
设计放心选,监督有保障
  • 更好设计

    这里汇聚顶端、前沿的设计团队与项目创意

  • 更多选择

    这里聚合更多国内外、全产业的服务与产品

  • 全面配套

    可需求发布、招标竞赛、咨询管理配套服务

  • 管控保障

    针对服务产品全程监督管控与质量跟踪评价

上设计加网,实现精益营销
  • 高质展示

    入驻企业专站在市场门户高质的展示传播

  • 精准客群

    几千团队、海量设计师、优质需求与客群

  • 全面营销

    企业推广、合作、招聘、企宣等一站到位

  • 顶层发展

    这里汇聚设计产业供需的顶端圈层共发展