设计加:顶端设计
爱的表达
家,作为生活的容器,是心灵的港湾,交织着爱与温暖。在这温馨的空间中,有一种爱是内敛的,深藏于心;有一种爱是无条件的,包容一切;有一种爱是温柔的,暖化心灵;还有一种爱是热情的,直白而真实。爱的表达没有固定的形式,设计师的追求是将这种爱转化为设计的能量。

 

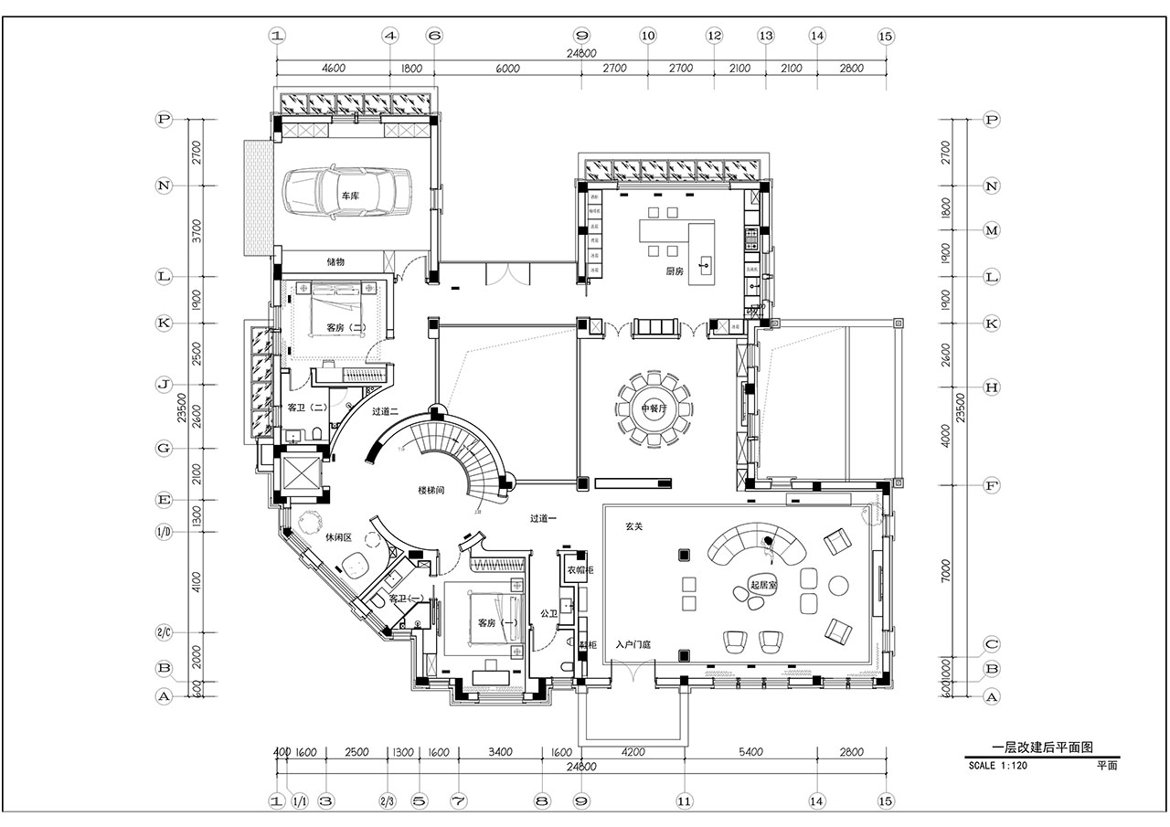
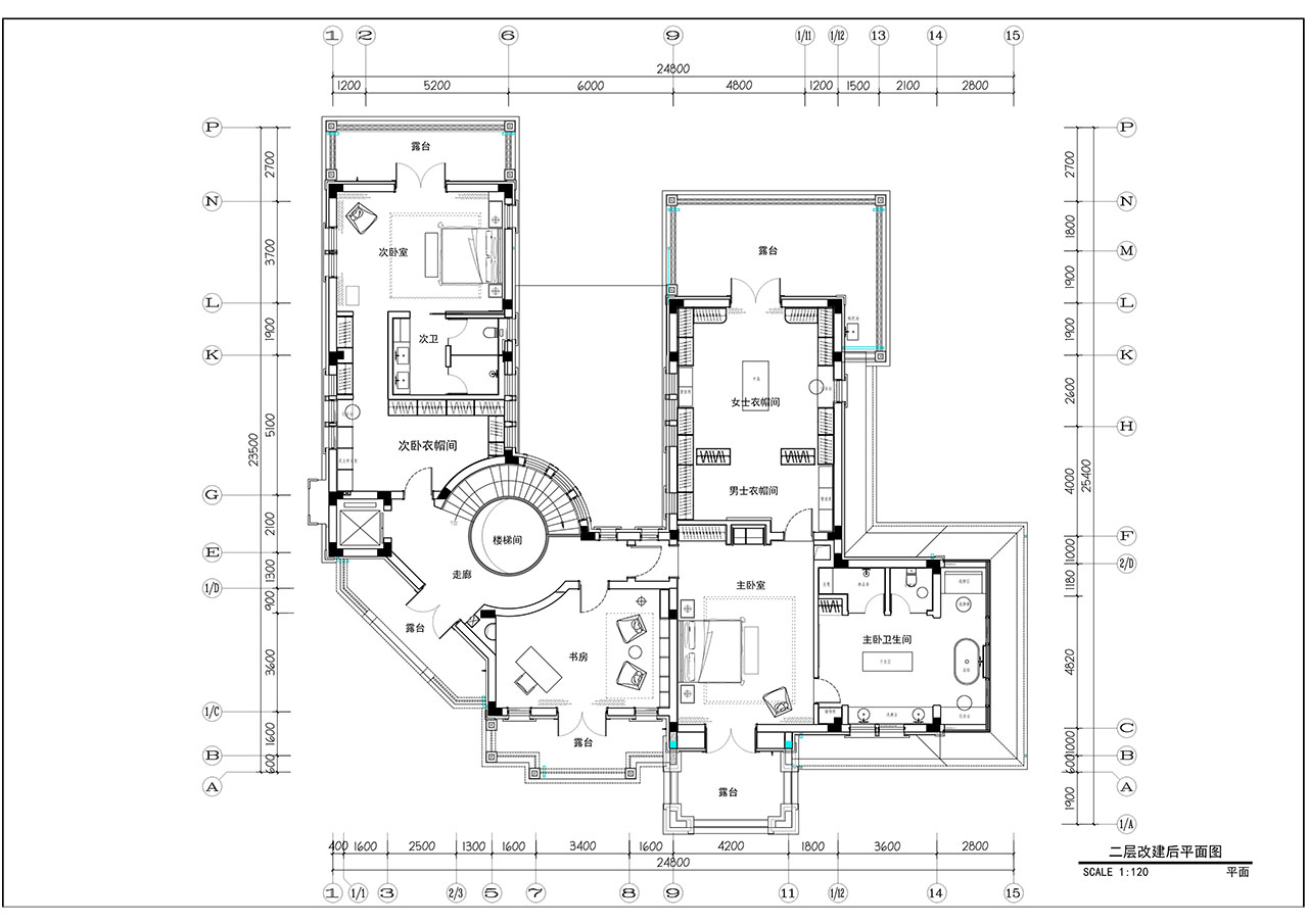
在改造前,地下室昏暗而不合理的布局让空间显得压抑。设计师通过梳理建筑空间,调整结构,巧妙地解决了地下室的采光与通风问题。别墅的设计中最引人注目的部分是中央的中庭。它不仅是光线与空间的交汇点,更是整个居住体验的灵魂所在。中庭的开放设计让阳光从上方洒下,形成一片片温暖的光斑,穿透到地下室和一层。这些光斑随着时间的推移而变化,犹如一幅动态的画卷,时刻在提醒着我们时间的流逝与生活的美好。

 

设计不仅仅是“设”和“计”的结合,更需要严谨的计算与细致的规划。全屋搭配采用全空气系统,通过BIM软件高效整合,设计师将给排水系统与隐蔽工程巧妙结合,确保每个细节的合理性与结构的安全性。针对地下室的潮湿问题,设计师提供了全面的解决方案,确保居住环境的健康与舒适。这些细致入微的设计,宛如一份无声的爱,是设计师为业主精心准备的健康礼物。

 

设计师以简约为设计思路,整体色彩以灰、米、咖为主,搭配绿色、藕粉色,线条利落流畅,存粹干净,无需复杂装饰,一眼感高级的质感,奠定品质家居生活的基调。

 

爱的表达需要发自内心去感悟和理解,遇见爱的承诺开始,相信在这座别墅中,将会慢慢添置各种生活的点滴,每个空间都会流淌着爱的温度,让每一次归属成为心灵的归宿。爱的表达,在空间中悄然绽放。

 
项目地址:浙江绍兴

项目面积:1000平方米

设计单位:芳菲室内设计工作室

主要材料:岩板、HV系统、本杰明涂料

项目摄影:刘鹰



收集
设计放心选,监督有保障
  • 更好设计

    这里汇聚顶端、前沿的设计团队与项目创意

  • 更多选择

    这里聚合更多国内外、全产业的服务与产品

  • 全面配套

    可需求发布、招标竞赛、咨询管理配套服务

  • 管控保障

    针对服务产品全程监督管控与质量跟踪评价

上设计加网,实现精益营销
  • 高质展示

    入驻企业专站在市场门户高质的展示传播

  • 精准客群

    几千团队、海量设计师、优质需求与客群

  • 全面营销

    企业推广、合作、招聘、企宣等一站到位

  • 顶层发展

    这里汇聚设计产业供需的顶端圈层共发展