设计加:顶端设计
Annn studio陶艺空间
缓坡屋顶如巨翼轻覆,十二米跨度下,光从三面涌入。北京顺义这座三百余平的老厂房,如今化作陶艺家小岸的日常诗篇。

 

清晨,南向的阳光洒进开放工作坊,泥土在指尖旋转;午后,西侧弧墙如温润的手掌,承接夕阳,让光影在混凝土地面缓缓游移。悬浮的聚酯波浪板将强光滤成漫射,整个空间如温室般弥漫着柔和的光晕。

 

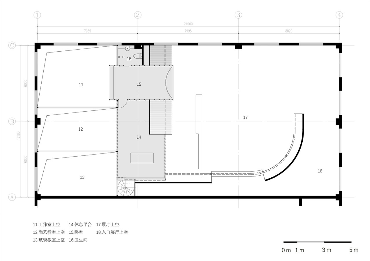
这是用预制镀锌钢、桦木多层板和聚酯板“搭建”而非“装修”出的世界——X型吊架可灵活悬挂展品,地台下的抽屉箱体收纳着泥胚与工具,拉开即成展台。动线在紧凑的功能体块间穿行:无需穿过教室便可抵达夹层起居,吧台的钢格栅让视线穿透无阻。

 

当暮色渐染,灯光亮起,弧墙化作发光体。这里允许虚度,允许独处,允许阳光与泥土的气味在缓坡屋顶下自由流淌。

 

面积:330平米

设计:KAI建筑工作室 Atelier KAI Architectes

摄影:金伟琦

收集
设计放心选,监督有保障
  • 更好设计

    这里汇聚顶端、前沿的设计团队与项目创意

  • 更多选择

    这里聚合更多国内外、全产业的服务与产品

  • 全面配套

    可需求发布、招标竞赛、咨询管理配套服务

  • 管控保障

    针对服务产品全程监督管控与质量跟踪评价

上设计加网,实现精益营销
  • 高质展示

    入驻企业专站在市场门户高质的展示传播

  • 精准客群

    几千团队、海量设计师、优质需求与客群

  • 全面营销

    企业推广、合作、招聘、企宣等一站到位

  • 顶层发展

    这里汇聚设计产业供需的顶端圈层共发展