设计加:顶端设计
一半之外
当空间学会了给生活让路,房子就真正变成了家

—— 之境内建筑

 

这是我们与业主一家的第二次筑家之旅,9年的时间,让我们与这个四口之家的羁绊早已超越了寻常的甲乙方。两次筑家间隔的岁月里,设计图纸与生活轨迹始终保持着微妙的共鸣,我们见证着他们对生活美学的觉醒,他们参与着我们对设计本质的思考。这种同频共振让重逢时的设计对话,如同老友重逢般自然流淌。

 

当毕业照拍摄那天,一家人的身影在新居中交织成温暖的光影,我们忽然懂得:所谓理想居所,不过是设计师将居住者的生命故事,编织成触手可及的温度。

 

01.重组与消融

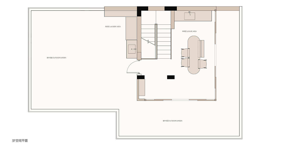
在当代人居语境下,自由克制的辩证关系始终是空间设计的核心命题。本案设计师以四川眉山220的三层跃层为实验场域,突破传统设计范式束缚,通过解构重组与边界消融,构筑出一座兼具自然诗性与实用主义的城市度假空间,在方圆取舍间,完成自然质朴美学的当代表达。

 

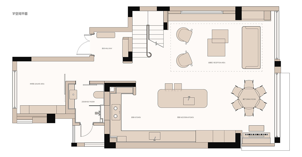
建筑原生的三层格局暗含挑战:单层面积局促导致空间功能割裂,空间个性趋于模糊,设计团队以功能重叠为设计思路,重构不同场域的空间秩序——将传统界限分明的客餐厅、中西厨转化为具有渗透性的复合空间系统,通过精细化的流线重组,实现功能模块既独立又交融的共生状态。这种去中心化的布局策略,不仅释放出超越物理面积的视觉张力,更赋予居住者自由定义场景的主动权。

 

空间戏剧性的高潮在二层挑空区完美绽放,设计师摒弃常规的回廊处理,以悬浮式空间廊桥串联开放式书房,构建出垂直纬度的叙事轴线,铁艺与原木的碰撞既延续美式乡村的质朴基因,又注入当代设计的轻盈质感,空间的仪式感与实用功能在此达成平衡。

 

02.自由生长的家

入户空间以东方美学为精神内核,巧妙植入美式乡村的质朴元素,构筑起关于家的初始感知。在衔接门厅与楼梯的过渡界面上,以黄金比例凿造透景窗洞,隔而不绝的设计哲学建立起空间对话的视觉通道,又借光影游移形成空间蒙太奇。百叶门鞋柜搭配古铜色拉手,与复古坐凳形成材质对话,墙面壁画灯与装饰画的装置,呼应整体空间的调性,在功能与意境的平衡中,完成归栖命题的完整表达。

 

为了消除传统廊道的封闭属性,设计团队突破性地重构了建筑的中轴动线,将入户玄关、楼梯、挑空客厅、餐厨空间以及多功能房串联形成有机的洄游体系。特别设计的悬浮式推拉门使多功能房灵活切换开放与封闭状态,当不期而至的访客——光,进入到空间内时,便可转化为通透的视觉通廊。

 

在客厅空间,设计团队通过围合式布局构建起具有呼吸感的社交场域,在亲生物设计理念的指引下,天然材质成为空间的叙事主线,木质元素自带着温润气质与粗砺的莱姆石地砖形成空间对话。留白让每个褶皱都暗藏生活的脚本——棉麻温柔的触感让沙发随时都有陷入的危险,手作陶花器静待新鲜的花枝,深色面的茶几像幕布一样上演着此刻的生活状态,所有物件都在等待故事的自然生长。

 

当然,作为空间最为独特的标志,空中廊桥如一道凝固的光束贯穿挑空区,廊桥打破了传统复式的视觉割裂,使上下层时刻保持视线与情感的连接。这也是我们与业主一拍即合的创意,在历经无数次精密计算和层层工艺的淬炼后,当它真正呈现在这个空间时,生活仪式感的具象表达和建造的终极浪漫在此诞生。

 

以中岛台作为空间重心重构的餐厨空间,对应了现代居家空间流动性的需求,在浅调空间里,深色橱柜的设计反而让空间有了视觉锚点。精准的柜体处理让收纳系统隐于无形,当视线穿过中岛台上方的线性吊灯,在台面上洒下的几何光晕,皆成为空间叙事的动态注脚,实用主义与诗意美学在烟火气中达成默契共生。

 

在餐厅空间的设计中,餐桌利用圆形玻璃台面悬浮于胡桃木基座之上,木质纹理与玻璃的通透感形成巧妙的平衡,当阳光穿过纱帘,在瑞士画家汉斯·埃蒙内格尔(Hans Emmenegger)的画作上跃动,与空间产生了奇妙共振。

 

楼梯的首阶踏面进行弧形延展,形成具有邀请意味的过渡空间。胡桃木踏板与铁艺扶手构成力学与美学的二重奏,风格统一且精致,同时,去踢脚线工艺使楼梯从视觉上更为轻盈。楼梯角落的梨形摆件作为视觉标点,其抛光面与踏面木纹形成材质共鸣。无论是材料收口的微妙处理,还是光影层次的渐进铺陈,含蓄之美在此转化为可感知的空间韵律。

 

03.当代自然质朴美学

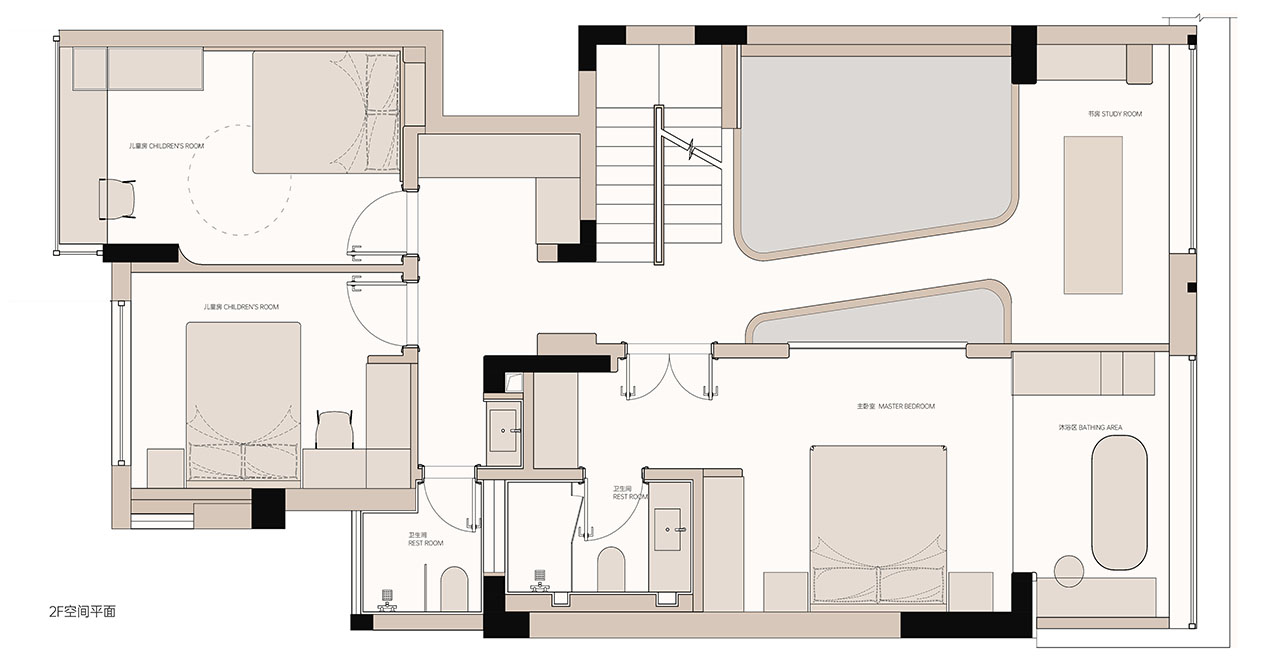
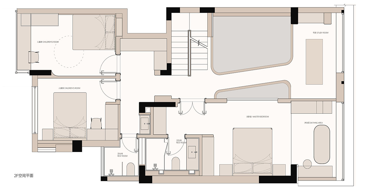
主卧以沉浸式休憩美学重新定义空间节奏,临窗区域通过抬升地台打造阶梯式空间层次,独立浴缸成为了景观容器,当夜幕降临时,氤氲水汽与城市灯火交相辉映。除此之外,隔断墙体我们采用智能雾化玻璃系统,通透模式下形成垂直维度的视觉延伸,可与一层的生活场域保持温暖互动;雾化模式开启时则化身光影幕布,在虚实变换中构筑起静谧的私人结界。

 

儿童房设计遵循成长型空间理念,以成长轨迹为创作蓝本,深度洞察小主人的性格和生活习惯,分别为兄妹两人打造不同风格的成长空间。针对女儿房采用浅蓝色艺术涂料铺陈基底,辅以立体石膏线装饰墙面,圆弧形天花吊顶弱化空间棱角,既满足儿童期的童话幻想,亦预留青春期功能迭代的接口;男孩房通过模块化设计实现功能整合,墙面通过打造壁龛造型破除单调感,定制悬浮书桌与柜体形成L型学习矩阵。

 

对于整体风格的把控,也是设计师对当代理想栖居的深度思考后的呈现。墙面阳角弧化处理塑造温润触感,原木梁架与铁艺楼梯的材质对话,隐藏式收纳系统的洁净界面,定制黄铜门把手的温度传递,让空间在粗犷与精致间找到平衡支点,恰如其分地烘托出松弛氛围,共同编织出去设计感的居住真意。顶层空间则完成室内外的终极对话,茶室借由阳光房的独到优势,与户外花园以折叠门形成连接,不同天气模式下切换使用场景。

 

当空间卸下形式主义的桎梏,居住者方能成为生活剧场的主角,这座跃层住宅最终呈现的不仅是物理容器的功能重组,更是对当代理想栖居的深度诠释——在秩序与自由之间,找到属于这个时代的居住答案。

 

项目名称:一半之外

项目类型:住宅空间

项目地址:四川眉山

项目面积:220平米

设计公司:之境内建筑

设计团队:廖志强、张静、李阳

设计内容:全案设计

施工单位:一恒筑造

项目摄影:季光

项目摄像:周一

收集
设计放心选,监督有保障
  • 更好设计

    这里汇聚顶端、前沿的设计团队与项目创意

  • 更多选择

    这里聚合更多国内外、全产业的服务与产品

  • 全面配套

    可需求发布、招标竞赛、咨询管理配套服务

  • 管控保障

    针对服务产品全程监督管控与质量跟踪评价

上设计加网,实现精益营销
  • 高质展示

    入驻企业专站在市场门户高质的展示传播

  • 精准客群

    几千团队、海量设计师、优质需求与客群

  • 全面营销

    企业推广、合作、招聘、企宣等一站到位

  • 顶层发展

    这里汇聚设计产业供需的顶端圈层共发展