流动、褶皱、拼接、重塑......有形的美学设计语言在空间中被赋予无限的想象空间。在这清新的、惬意的、渐进的时尚烘焙容器里,空间关系与场域秩序被重新定义。在充满韵律的治愈气息中,甜品的时尚美学与渐变的情绪价值一触即发。
流动的褶皱,营造出织物吹起轻盈的状态,同样也会引发对甜品制作过程中奶油形态的联想。捕捉时装剪裁和甜品制作过程中发生的形态,将其转化为空间设计元素。在发现与感知美学中,SLT与好利来品牌再度携手,突破时装与烘焙的美学界限,运用材质与色彩的组合变化,制造空间中的温度差;让温暖且具有流动感的线条表达触发店内体验的情绪渐变,收获渐至佳境的HOLILAND SELECT旗舰概念店。
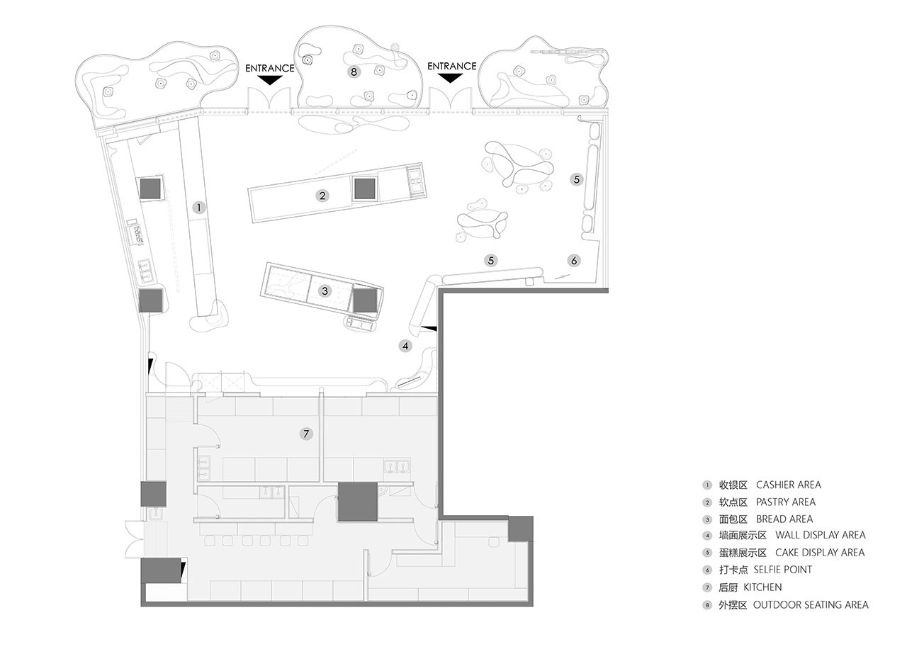
Holiland Select概念店坐落于武汉万象城一层,是SLT继Holiland Market市集概念店之后全新打造的时尚集合主题的概念店。Holiland Select以流动诠释精选,探寻甜品中的写意之美。以“渐境”为整体概念主题,解构甜品艺术,营造雅致氛围,通过温暖且具有流动感的线条表达拟化出不同层次质感的结构关系与空间秩序,与“未来主义”、“味觉交响”、“麦田意象”三大全新甜品系列一起,建构出专属于好利来的精品烘焙美学容器。
整个空间随意一瞥便是经典几何与美学构成的平衡之美,组成了一系列戏剧性的体验焦点“Special point”。中央区域,矩形柜体包裹着大面积有着流动视觉的编程灯膜,与直白的线性空间切割感形成强烈的场景体验,辅以灯光的点状与线条的铺陈,进一步将动态与静态带来的戏剧化冲突在中心强化。
富有肌理感的横向天然石材纹路和气孔还原了甜品烘焙过程中一系列物理和化学变化后形成的天然切面组织层次,保留了面团发酵过程的记忆;流动的形体延展逐步形成空间的边界,唤起打发奶油制作过程中不同形态变化的概念还原。天然纹路与利落的线条交融相生,细腻有型,诉说味觉叙事,克制中带有张力的甜品美学在这里被大胆描绘。
休息区,轻盈明快的色调、舒缓渐变的线条成为重塑时尚体验的美学符号,不同纬度的流动、褶皱的几何语言在整个空间中晕染无限想象。地面特殊树脂材料的使用,将这样清新的奶油质感混合叠加颜色和纹理,再次唤醒顾客探索甜品艺术的欲望与活力。
户外的外摆区作为室内体验的延伸,温和的流线组织和功能划分塑造了室外区域的轮廓,与参与其中的大家一同感知到无形的治愈气息。
捕捉当代时装剪裁流动的褶皱与织物轻盈的漂浮感。. 空间中自由舒展的曲线、淡雅轻快的色调,以沉浸式的体验诠释烘焙的多元之美。Holiland Select旗舰概念店成为一个启发性的容器,将人的甜蜜心境映入其中。
项目名称:Holiland Select-武汉好利来概念店
项目地址:湖北省武汉市江岸区万象城F1
建筑面积:286㎡+40㎡户外
品牌:Holiland好利来
设计方:SLT设计咨询有限公司
设计团队:凌晨,姜姗姗,蔡雅倩、郭莹、唐朝、曹成林、张倩、成希、付雨
施工方:上海缇琪Tiqi
材料:天然洞石、人造石、树脂、金属
完成年份:2022.05
空间摄影:Wen Studio

杭州观堂室内设计

上海筑寸空间设计

上海问和答

得德设计

质感建筑设计工作室

NONG STUDIO

明懿空间设计

福木设计

好似飞行

白菜设计

左山右川建筑

白菜设计

木石设计

不也设计工作室

无之设计

徽宗设计研究室

八点设计

甲板设计

徽宗设计研究室

小大建筑设计事务所

法居工程咨询

上海彦文建筑工作室

见筑未来设计工作室

民舍制作空间设计工作室

杭州不序建筑设计事务所

温度ONDO空间设计工作室

喜叻空间研究

开尺设计事务所

泥木建筑工作室

口口建筑设计事务所

知白设计

hcreates罕创室内设计

徽宗设计研究室

勉强设计事务所

Some Thoughts空间设计

构看建筑设计

发喜空间设计工作室

欧阳跳建筑设计

SLT设计咨询

平衡空间设计

巢羽建筑设计事务所

W SELECT DESIGN

或者设计