 
      
         
        保持内心平静是对喧嚣世界的精神和解。瑜伽修行者将身体、思想与灵魂结合,由内及外通过身体的舒展激活能量,同时身处的物理空间也对精神状态产生深刻影响。我们希望这个空间可以激发积极的情感体验和行为模式,内外兼修,从而消除坏的情绪和不适感。
门厅是由外及内的过度,木料的味道开始弥漫。大门留出横窗,透过玻璃窥探内部,却不是一目了然,反而激起探索的兴趣,给思绪的漫步留出空间。
我们相信,当人进入空间的同时,也正是某种仪式的开始。空间不是孤立存在,它与我们存在千丝万缕的联系。它是生活的容器,能够敏感地容纳地板上身体的碰触、精神的专注和内心的平静。
我们努力保持简单的姿态或纯粹的想法贯穿空间,让舒适、专注、平静尽可能的去回应人的行为、心理、情绪和感情。
宁静的大地色系,为瑜伽修行者提供向内的环境感受,柔软的空间氛围鼓励他们进入松弛状态。
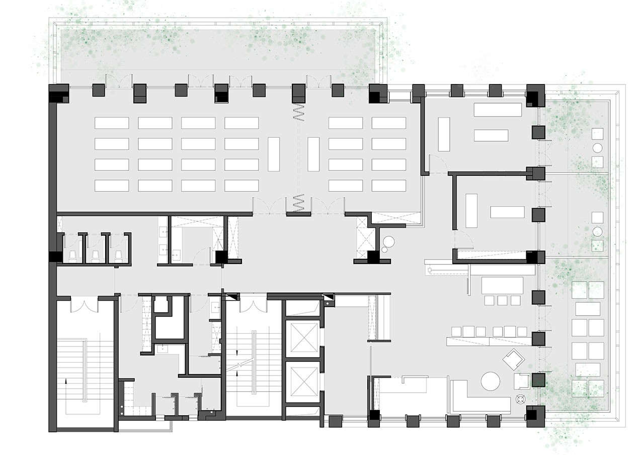
利用售卖区半实半虚的墙体作为隔断的方式分隔大厅和教室区域,同时又让两个不同功能空间相互渗透,亦增强了空间层次感。
公共教室和私人教室各自独立,隐私和隐蔽性增强心理上的安全感。
触摸的感觉可以使瑜伽修行者与环境产生更多的联系。自然材料的固有属性引起感官的注意,让人产生一种亲近自然的错觉,从而达到精神上的舒缓。木料、石材、砂岩等自然材料以其触觉和视觉特征承载着空间平和的性格。
朴实的设计手法,让空间退回到的最基本的形态。恰到好处的留白,拓宽了空间的层次布局,给瑜伽修习者留出遐想的余地,方寸之地亦显天地之宽。
简洁并不意味着抛弃复杂性,只是移除杂乱或许可以化繁为简。镜面隔断的开启闭合可以区分出大小教室,满足各种功能需求。
大面积的开窗把自然光引入室内,它在丰富空间语境的同时,也令视野更加开阔。半透质感纱帘遮挡了外界的干扰,留出绿意映入眼帘。
使人专注的空间为自我反思和意识建立创造条件。我们希望这里可以为瑜伽修习者提供能量,成为他们的疗愈之所。
项目名称:Hello White Yoga瑜伽馆
项目地址:重庆
建筑面积:400㎡
设计方:Geemo Design治木设计
项目设计 & 完成年份:2023
主创及设计团队:石朝思、易毅、李卓航
摄影版权:偏方摄影

goa大象设计

BOX盒子实践景观事务所

gad · Line+ Studio

昱道景观工作室

方楠设计顾问

丘建筑设计事务所

深度进化设计事务所

故事空间设计

头条计画

CC_LTD

大料建筑

清华大学简盟工作室

山水秀建筑事务所

雁飞建筑事务所

朴诗建筑

空间站建筑师事务所

空间站建筑师事务所

空间站建筑师事务所

+SONO STUDIO

里外工作室

白菜设计

芝作室

大台阶建筑

TAG建筑设计事务所

言昱室内设计

微筑设计工作室

意内雅空间设计

万华产品研发中心

杰奥斯建筑设计

DCDC DESIGN

四周建筑

得德设计

hcreates罕创室内设计

hcreates罕创室内设计

AWD反正设计事务所

木君建筑与室内设计事务所

鲸鱼建筑设计事务所

平介设计

平介设计

玖鹿设计

goa大象设计