01
城市未来
社区商业的生活提案
随着时代更迭,都市面貌的日新月异,人们的消费生活呈现多元发展的趋势。
基于华润置地对打造新型营销中心在「社区商业」和「居住体验」部分的全面关注,Informal异规设计对惠州本土文化、社区体验、人居空间进行深刻探索,以超脱于传统商业的商业设计激活二线城市的社区空间。将其与创新型营销中心相结合,打造未来社区的生活体验平台。
设计团队全面构思、重塑社区空间的商业价值,从项目选址开始、从零构建品牌、进行建筑改造、空间设计和品牌视觉设计,乃至后期的运营管理和供应链等维度提供一体化解决提案。
岘在NOWSEE,全新的社区商业空间由此孕育而出,位于惠州华润·曦江润府销售中心一侧。项目建成后,它既兼顾部分营销中心的职责,也将长期作为社区商业的重要组成部分。
02
向外探索
岘系生活方式
岘在被定义为采集多元生活的社交型零售空间,在都市的钢筋森林里,打破习以为常的「生活圈」,走进岘在生活,在日复一日的忙碌里,开始向外探索,向内丰盈。
这里打造以「葆有好奇心,看见新事物」为灵感的岘系生活方式。让城市探索的好奇心在
此发芽、生长,蔓延至「衣、⻝、展、物、行」的五感体验,让感官岘在苏醒。
区别于传统的商业空间,岘在带着友善的使命,承载着重要的⻆色。在城市与自然间,采集多元的社区生活方式,构建一个链接「邻里生活、零售美好、艺术展览、儿童友好」的社区型邻里空间,让「探索都市脉络,看见自然当下」渗透日常的每一天。
03
空间语言
向内丰盈的社区
岘在NOWSEE生长于社区街区的转⻆处,由五个相连的立面区块以外向的形态切入建筑体内。室内外一体的空间语言,从摇曳的绿植、灰色的路面、温暖的路灯、到随处可歇的窗台座位,顺着空旷的步行街道向内延展,街道式布局与公园式景观相结合。让街道般的开放式动线,从内到外淋漓尽致的诠释着城市街道的元素。
原有的外立面门窗宽厚笨重,造就了内部的暗淡无光。于是,设计团队选择拆除原始的门窗,装上了大而通透、可推拉的落地玻璃面,营造简洁统一的建筑外观;结合灯光呈现序列排布的社区橱窗,让外部光线得以进入空间内部,形成开阔明朗的室内环境。
开放的空间,模糊着社区、街道与城市的边界,柔和着回归日常生活的感性知觉。不同人群的聚集,衍生出多种可能的街区图景。无论是室内排布的桌椅,还是留置于窗台的座位,都成为供人们灵活自定义的多元场景。在这里,骑车的人、遛狗的人、路过的人都可以短暂歇脚,也可以疯跑嬉闹,甚至是约上三两好友的一场闲聊聚会。
04
空间基调
呼吸流动的轻盈
室内和谐而简约,氛围开放且灵活。以不规则的模块化单元布局,连同空间中的少量墙面和构造柱、低矮的展陈货架,构筑一个没有明显区隔的生活化场域,为身置于此的人们提供一个自由穿梭于层层构架的流动路径。
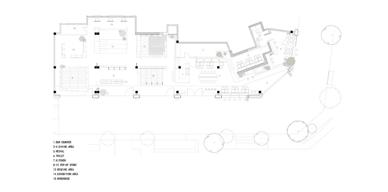
吧台作为空间中心点,向四周散射着品牌零售区、艺术展览区、阶梯阅读区、轻⻝简餐区、商务洽谈区等不同功能属性的单元被整合于统一的视觉结构中。其中,品牌零售区将以季节性更新,为岘在NOWSEE持续生成多元化的内容。
在空间改造和材质选择上,为了尽可能减少对原本建筑的损耗和未来再利用的可能性,设计团队保留了融于建筑本体的平整屋檐、水洗石和水泥内墙的最初状态。同时,采用更为简约的手法和天然朴素的材质,生成随和又亲近的空间基调。
空间地面选择了灰色系麻石与灰姑娘大理石,搭配原色海洋板和染色海洋板的墙面,带来沁透心灵的温润和暖意。大面积景观在空间中扎根生长,目之所及皆是永续不断的生命力,让空间多了一份轻盈、自在的呼吸感。
05
轻量改造
可持续化产品
面对空间的展陈需求进行轻量化改造,设计团队以预制化和模块化的产品思维,为岘在特别定制适用的空间桌椅,透明产品以及铝型材货架系列。
家具系列由桦木板和喷砂不锈钢板组成,建筑空间材质应用到家具产品,整体空间气质融合统一。透明系列由透明亚克力、磨砂亚克力、不锈钢板和不锈钢螺丝组装,产品内部构造被展现出来,营造精致的原始工业美感。货架系列由铝型材方管和不锈钢板组装而成,可调节陈列⻆度,并通过更换配件组合形式,产生丰富的陈列组合方式。
项目信息
项目名称:岘在 NOWSEE
项目地址:广东惠州
建筑面积:700㎡
项目业主:华润·曦江润府
项目类型:餐饮/零售/展览
设计公司:Informal异规设计
设计内容:品牌、视觉、空间、家具
空间设计:王盛、林树彬、王杰、沈弘涛
平面设计:郑晶、刘彦宏、符靖
品牌策划:sumi huang、黄文琪
项目设计:2023年3月-2023年5月
完成年份:2023年7月
施工单位:深圳市钜深建设有限公司
摄影版权:张超、夏同

hcreates罕创室内设计

宇合光年

纬图设计

峻佳设计

Wutopia Lab

利落建造

深圳超级平常设计

CATS顾问建筑师小组

小山丘舍设计工作室

厦门千树创新中心空间设计

若凡工作室

偏离设计

KiKi建筑设计事务所

本哲建筑

艾克建筑设计

即时设计研究所

予野设计

白菜设计

一介建筑工作室

启仓设计

文武空间设计顾问

众建筑

锐格建筑与室内设计事务所

archive

善祥建筑设计

云谷空间设计

余留地

余留地

余留地

B.L.U.E.建筑设计事务所

NormalBuild

WAY Studio

广州林墅设计有限公司

艾得设计事务所

Fei Design Studio

三渊空间

外物设计事务所

朗图设计

寻常设计事务所

有物设计顾问

风合睦晨空间设计

乾正设计

精成空间设计

无之设计

厦门开山设计顾问

究境建筑

哲本建筑设计事务所