有一种信念,
无关艺术,
一如花信,
滴落心头。
有一种期许,
透过夜色,
凝视火流星斗。
既自我寻觅,
又心心相守,
烙下印记,
还有对先贤的回眸。
—— 胡乾午
“厢式防水墙廊”是长江沿线防洪系统的最后一道关卡,其内部进深8m左右的长条形空间,被鼓励用做各类商业经营门面。然而,在我们印象中,这里更多的是会所、高端餐厅和茶室、豪车4S店,它们与江滩公园上奔跑放风筝、跳广场舞、遛狗散步的人们,形成了巨大的反差。这次的书店改造,兼具咖啡与展览,是该段落第一家真正打开大门,欢迎人们自由出入的日常空间。而另一方面,作为武汉建筑师,在江堤上做项目显得格外有意义,毕竟98年的洪水是我们最重要的童年记忆。
起坡
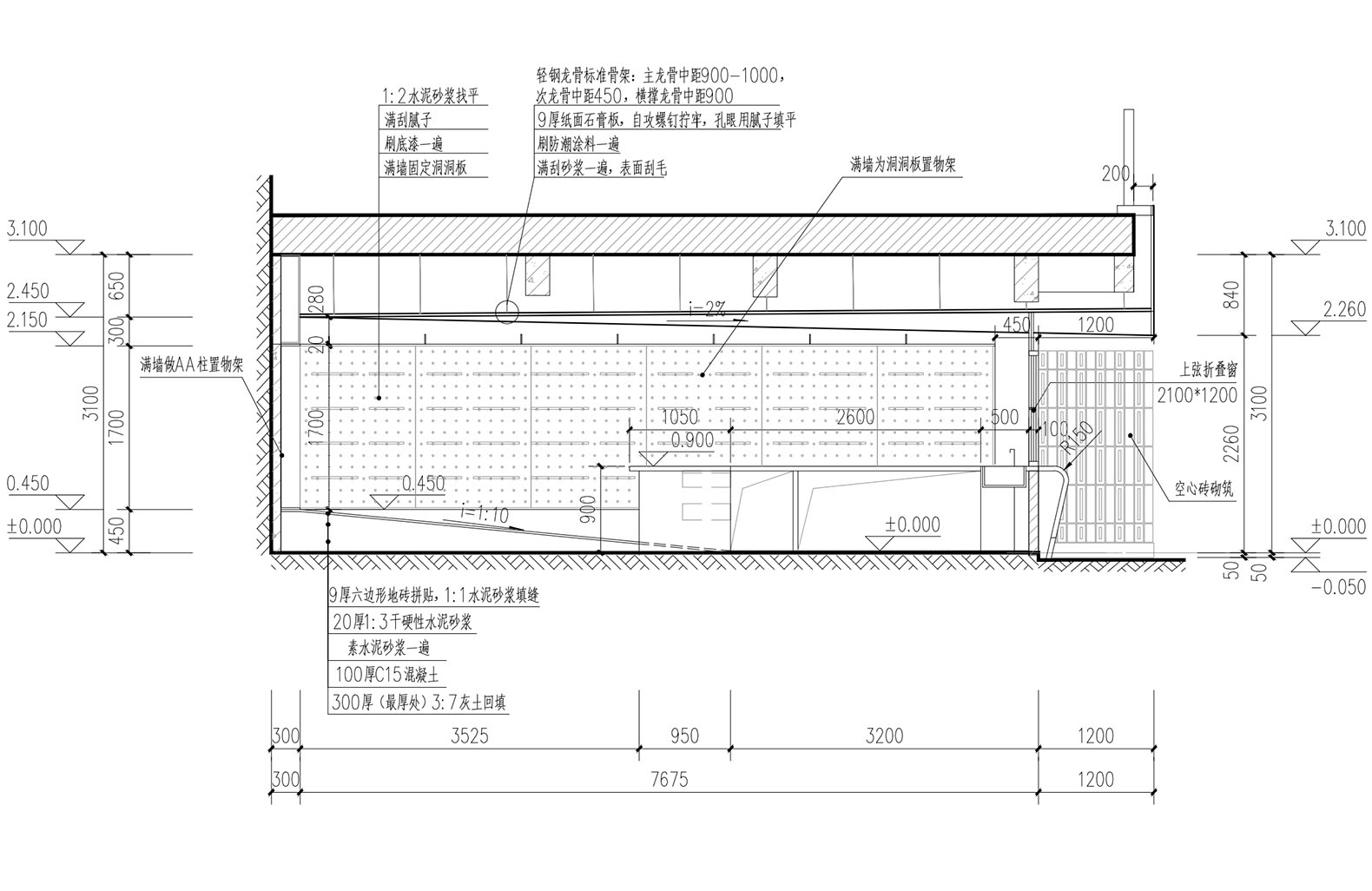
首要的问题是,作为防洪基础设施的一部分,这里每年汛期仍有被淹没的风险,因此我们的第一个决定就是室内地面以残疾人坡道的标准,整体按1:12的斜率找坡,方便淹水后,迅速排出。而这一脚下突发的变化,也试图起到调整注意力、拉长体验的效果,让人不至于觉得这小小的空间3秒钟就能够逛完。此外,以600mm为界,其上采用看上去“精贵”的材料,其下采用粗糙耐久的材料,可以泡在水里,我们甚至期待办一场打赤脚淌水进去看的“水上艺术展”。
身体
按最初的设计,我们打算让居中的咖啡岛台延伸至外部,并顺势落下成为一个高背椅,与对面的长廊形成呼应,充分的整合周边环境要素,为书店未来的公共活动提供拓展的空间。但江滩物业叫停了这一“占道”行为,我们需要当场修改方案,便画了个曲线,让已挑出的部分又落回到红线之内。而这一偶得的、身体般柔软的“突出部”,却在运营过程中显得十分讨喜,来往的人都忍不住去摸一摸、靠一靠。
轴线
我们热切的期望用最小的代价,给予这个迷你书店与艺术馆一种意料之外的“体面”。因此决定采用一种端庄的、古典的“正面性”与“一点透视”构图。但这个空间有一处先天不足,其正立面上的两个柱子(现被空心砖包裹,内为空调机位),与室内空间不对称。为了调和室内外错位的两跟轴线,我们做了一个连续拱的门头与室内吊顶。试图让内部一点透视的空间,从外面看,不至于歪在一边,无论看外面、还是被看,好像都是对称的。门头的连续拱,同时也是对“街坊们”的一种尊重:虽然自己希望能做出变化,但在交接处还是回到了和大家统一的高度上。“no art”的招牌被刻意地竖放,让门头很“自然”的被分成了两截儿,以便使用两块无缝的整版门头金属板。
项目名称:无艺术书店
项目地址:武汉市江岸区二七江滩
建筑面积 :45㎡
设计单位:青·微舍(武汉)工作室
设计团队:胡兴、刘常明、李哲、余凯、巢文琦、孟纪宇、宋振旭
建筑技术设计:得森设计
竣工时间:2022年5月
施工团队:糯米装饰
业主 :武汉在地文化旅游发展有限公司
摄影:赵奕龙,毕慧琳,SJ(壹阁&HeyWeGo)

Wutopia Lab

槃达建筑

大于建筑

平介设计

Wutopia Lab

慕达建筑

Wutopia Lab

摩致建筑设计

Mur Mur Lab

a9a建筑设计事务所

日清景观

玳山设计

峻佳设计

朱志康设计谘询

唯想国际

思作设计工作室

未来以北工作室

恒田设计

殊至建筑

米凹工作室

伊塔诺建筑设计

尌林建筑设计事务所

門觉建筑

MOC DESIGN OFFICE

介介工作室

伊塔诺建筑设计

Wutopia Lab

悠作设计室

直距建筑设计

青天制作所

间睦设计

已知建筑

水木言设计机构

吾界空间设计

Wutopia Lab

MOC DESIGN OFFICE

Wutopia Lab

植田建筑室内设计

峻佳设计

万境设计

Wutopia Lab

Wutopia Lab

峻佳设计

Wutopia Lab

O筑设计