景德镇作为中国的“瓷都”,有着1000多年制作瓷器的历史。本项目为景德镇御窑厂片区杨华弄院落的更新改造,采用“插建/件”的方法为指导,在尊重原有地段历史特色的基础上,进行新建建筑的“插建”和旧有建筑内部的“插件”设计,来达到新功能的置入,以及场地的活化更新。
场地
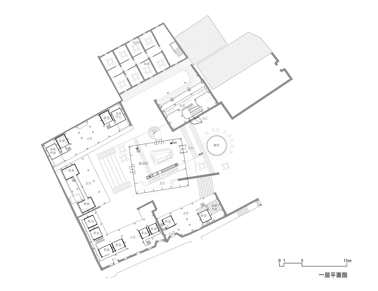
杨华弄院落位于御窑厂片区的中心位置,紧邻西侧的御窑博物馆和御窑厂遗址,以及北侧的徐家窑。院落东南角为烟筒广场,是该区域较为重要的开放空间节点,连接各方巷道;南侧的杨华弄巷道很窄,但很好的保持了历史原貌。
策略
院落改造的插建最重要的是烟筒咖啡厅的置入。一座三层的双坡顶玻璃建筑,包含展览和咖啡空间,在形成标志性的同时,与周边历史环境无缝融合,成为公共空间的重要锚点。玻璃外立面的透明性彰显了一种开放性,与周边坚固的传统砖墙建筑形成鲜明的对比。对角双坡的屋顶采用传统青瓦做法,犹如漂浮的大伞一般。屋顶之下的透明空间,连接了院落内外,是烟筒广场公共空间的一种积极延展。
从远处看,烟筒咖啡厅的屋顶从层层叠叠的坡屋顶中凸显出来,与周边传统建筑进行着形式上的对话。公共广场的砖砌地面延伸进入烟筒咖啡厅室内,再转化成大台阶进入内庭院,增强了室内外空间的联系。砖砌铺地成为一种清晰而丰富的台阶景观,不仅可以作为座椅使用,也很好的解决了广场和庭院之间的高差。
咖啡厅地下一层为砖砌基座,落位于原有建筑基底之上,延续了原有的空间肌理。基座采用砖拱立面和大台阶的做法,是烟筒广场向内院的延伸。同时二层的橙色夹层往烟囱延伸形成室外平台,完成了新建建筑与现有场地完整的锚固。该设计巧妙的融合了新旧元素,在尊重历史环境的同时创造了一个独特而现代的空间地标。
围绕咖啡厅透明立面周边的是原有的坯房建筑,采用插件家的方式改造为陶瓷艺术家工作坊。原有的砖墙和木结构保存完好,在木结构之间插入预制的功能模块,来满足艺术家的使用需求。卧室、工作室、厨房和卫生间模块增加了新的功能。楼梯和走道也被插入其中,通过连接使空间利用最大化。新的插件与原有建筑风格迥异,但很好的整合了空间和功能。
原有场地为两个较为封闭的院落,设计将其中一个坯房建筑旋转,将院落空间进行连通。整合后的院落可以从咖啡厅的透明空间进入,也可以通过多处公共通道进入,成为一个有较强开放性的新型公共空间。
院落原有建筑类型较为多样,有传统木构的坯房和居住建筑、砖混建筑以及混凝土加木构建筑。改造只拆除少量的后期建设建筑,并在部分拆除建筑的地基上新建建筑。梳理后的院落布局延续了原有院落的肌理关系、保留了原有建筑丰富的多样性,也增加了院落的开放性。
咖啡厅、餐厅以及陶瓷艺术家工作室三种新的业态功能既有一定分区,又相互混合。这种布局方式有助于搭建新型的公共社群。
插建/件
“插建/件” 式改造通过插漏补缺的方式,不仅延续了原有院落的空间关系,也最大限度的保留了原有传统建筑的特色,新旧建筑相得益彰。
—烟筒咖啡厅
咖啡厅为三层建筑,整体构成包括砖砌的底座、双坡大屋顶,以及夹在之间的通高砖墙和橙色结构体。
一层咖啡厅为主要入口空间,有一个回形吧台,三面为通透的玻璃幕墙,有着绝佳的视线,一面为砖墙设计有多个展示窗口。北侧有室外螺旋楼梯可通至二层。
砖砌的厚墙北侧为联系上下的直跑梯,踏步由厚墙直接悬挑出来。砖墙与玻璃幕墙围合出一个三角侧厅,三层通高,用于布置临时展览。
二层为手冲咖啡区和一个有着三角天窗的玻璃包间。朝向西侧的挑空处设有通长吧台,可远眺内院以及远处连绵的坡屋顶。
地下一层布置有三个拱形空间,是三个不同进深的包间,可容纳不同的活动需求。
咖啡厅的对角双坡屋顶约15x12米见方,最大出挑超过9米,仅落于3颗钢柱顶。屋面结构类似伞形结构,采用围绕钢柱布置环桁架的方式,环桁架周边有伸臂桁架出挑。屋面桁架采用圆管相贯焊的方式连接,并采用球铰支座落于钢柱顶。
大屋顶同时覆盖了室内和室外的公共空间,并通过大悬挑强化了视觉的漂浮感。
—餐厅
餐厅院落的三栋原有建筑各有特色,紧挨广场的是一栋歇山顶木构建筑,北侧是一栋两层高的双坡砖混建筑,转角是一栋方形双坡木构建筑。设计通过“插建”一个U型连廊连接三个原有建筑,并在原有建筑内部置入蓝绿色入口及楼梯系统,将人流引入一层主体餐饮空间。转角建筑则插入了新的蓝绿色门窗系统,以增强室内外的联系。
新增的蓝绿色楼梯及夹层系统与原有木屋架完全脱开,有自己的结构体系,并在效果上与原有木屋架形成较大差别,来突出可逆性改造的设计策略。
—陶瓷艺术家工作坊
院落西侧为陶瓷艺术家工作室,采用“插件家”的预制化方式进行改造。原有木屋架完全不动,在一层布置工作+卫生间模块和厨房模块,在高处布置卧室模块,工作模块上方设置木平台作为茶室空间。
预制模块有清晰的气候边界,有着良好的保温性和密闭性,有独立的空调系统,可以在景德镇冬天极冷、夏天极热的气候下提供较为舒适的室内环境。
小结
御窑厂的杨华弄院落更新在延续原有空间肌理、保留原有传统建筑的基础上,通过“插建/件”式的方法,将封闭的院落空间进行重构和激活,来匹配新的功能业态和使用方式,是一种联结历史和未来、可持续的历史街区更新方法。
项目名称:烟筒插建院—景德镇杨华弄院落更新
项目地点:景德镇御窑厂片区
客户单位:景德镇陶文旅集团
设计公司:刘克成设计工作室 + 众建筑
设计主持(刘克成设计工作室):刘克成,肖莉
设计主持(众建筑):何哲,沈海恩(James Shen),臧峰
项目负责:袁樱子,张萌
项目团队:杨全越,杨茜,黄俐颖,张梦媛,周时敏,韩笑,刘一新,王赫,温皓,蒋颖,刘伊丰
结构设计:刘粟/北京首昂建筑结构工作室
设备设计:西安新会众建筑工程设计咨询有限公司
图纸绘制:张萌,袁子书
摄影:朱雨蒙,众建筑

hcreates罕创室内设计

宇合光年

异规设计

纬图设计

峻佳设计

Wutopia Lab

利落建造

深圳超级平常设计

CATS顾问建筑师小组

小山丘舍设计工作室

厦门千树创新中心空间设计

若凡工作室

偏离设计

KiKi建筑设计事务所

本哲建筑

艾克建筑设计

即时设计研究所

予野设计

白菜设计

一介建筑工作室

启仓设计

文武空间设计顾问

锐格建筑与室内设计事务所

archive

善祥建筑设计

云谷空间设计

余留地

余留地

余留地

B.L.U.E.建筑设计事务所

NormalBuild

WAY Studio

广州林墅设计有限公司

艾得设计事务所

Fei Design Studio

三渊空间

外物设计事务所

朗图设计

寻常设计事务所

有物设计顾问

风合睦晨空间设计

乾正设计

精成空间设计

无之设计

厦门开山设计顾问

究境建筑

哲本建筑设计事务所