设计加:顶端设计
隆源紫砂
江苏 收集
 

宜兴陶瓷中心是一个为家族企业提供展厅、工作室和办公空间的私人开发项目。作为历史悠久的紫砂陶瓷制造基地,宜兴市为这座独特的建筑提供了丰富的文化背景。

 

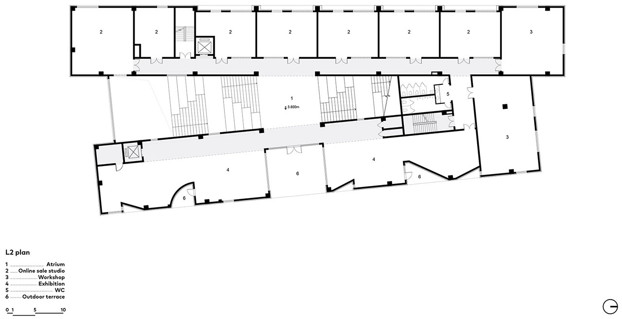
为了应对场地的限制和项目要求,设计采用了三个线性体块的构成形式 两个外翼和一个中央中庭空间。两个翼中的每一个都包含了大部分业主的使用空间,沿街一侧的体块容纳了公共定位的空间,如展览画廊和咖啡厅,而背街体块则包含了相对私人的空间,如销售和办公空间。两个翼之间由一个宽敞明亮的中庭分隔,为整个发展项目注入了开放空间。

 

建筑的内部特点主要由中庭内的大型楼梯定义,该楼梯是一个灵活的展示空间。展示区域、种植区和休息区被整合到楼梯设计中,使客户能够在这个宁静的环境中向客户展示作品,同时轻松地引导他们到达上层。

 

设计中采用了两面功能墙作为服务空间,无缝地连接了三个区域之间的水平和垂直通道。这些区域还被战略性地赋予了管理和满足大部分建筑机电工程需求,实现了简单而有效的功能整合。

 

为了向茶壶制造这一复杂而精致的工艺致敬,建筑立面采用了雕塑式的设计语言,外部露台被刻入建筑之中。由概念为起点的同时,这种做法也通过增加自然光和通风来为室内注入自然活力。由此产生的建筑形态唤起了一种优雅而精湛工艺感 这同时是对建筑用途的恰当致敬。

 

项目名称:隆源紫砂

项目类型:办公+展览空间
地点:中国江苏省宜兴市

面积:4500平方米
建筑设计:聚合灵思建筑设计咨询有限公司
客户:江苏隆源陶艺有限公司
施工工程师:江苏全丰建筑工程有限公司
竣工年份:2024

摄影:王鹏

推荐

大海小燕设计工作室新办公室

大海小燕设计工作室

诗人工作室

诗墅设计

QI STUDIO

大器空间

祺曜互动娱乐有限公司办公空间

做好建筑设计

CY-诚远制衣

正方良行设计公司

“The Arcade”办公空间

Atelier Zerebecky

CAIUS办公室

Studio Glume

树院

兼建筑

煤院新生

临界工作室

合木建筑新工作室

合木建筑工作室

即作建筑工作室改造

即作建筑

北京100001办公室

O architecture

MaoHaus

非静止建筑

屋上三间

致正建筑工作室

原世博会案例联合馆3顶层空间改造

杜兹设计

“申申的园”会馆

予舍予筑

橙果传媒办公楼

间外建筑工作室

北京CUN寸DESIGN工作室 - 顺应与干预

CUN寸DESIGN

悬崖上的工作室

有种建筑

MAGIC PLACE:竹之翼定义未来办公

CUN寸DESIGN

垣宅艺术家工作室

焉尘建筑设计工作室

33号院 如果时间有刻度

自在设计

静安商楼建筑更新

一栋设计工作室

单复 – 术木融合空间

单复建筑设计

猿厂营造办公楼建筑改造

之行建筑事务所

思摩尔(SMOORE)办公楼空间改造

超级番茄设计

下浩老街旧建筑更新 - 星环诞生记

空气墙建筑工作室

福州中平路53-59号改造

尚恩设计

墟岫园

之间建筑

日晷办公楼

ACME木及设计

建筑与艺术创新实验室

合造社建筑设计事务所

优选控股办公综合体

中德行建筑设计

东风三号院

中德行建筑设计

工业厂房遭遇鬼马前卫广告人\WMY办公空间

里外工作室

桥亭

空间站建筑师事务所

景德镇三宝蓬陶瓷设计中心

曼景建筑

CUN寸DESIGN办公室

CUN寸DESIGN

设计放心选,监督有保障
  • 更好设计

    这里汇聚顶端、前沿的设计团队与项目创意

  • 更多选择

    这里聚合更多国内外、全产业的服务与产品

  • 全面配套

    可需求发布、招标竞赛、咨询管理配套服务

  • 管控保障

    针对服务产品全程监督管控与质量跟踪评价

上设计加网,实现精益营销
  • 高质展示

    入驻企业专站在市场门户高质的展示传播

  • 精准客群

    几千团队、海量设计师、优质需求与客群

  • 全面营销

    企业推广、合作、招聘、企宣等一站到位

  • 顶层发展

    这里汇聚设计产业供需的顶端圈层共发展