 
      
         
        功能
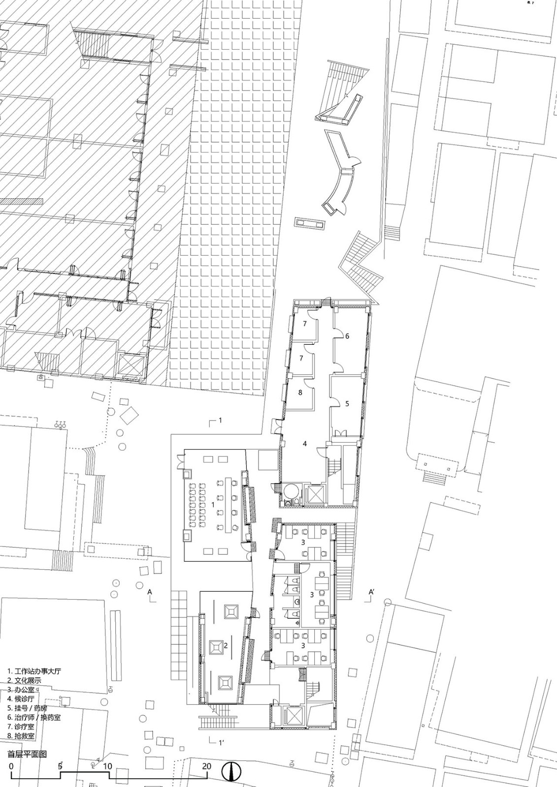
南头城社区中心原址为社区健康服务中心和党群服务中心,楼上为居民自住。改造后,建筑功能将包括社区医院、社区办公、党群办事处、文化展示、教室、会议等,提供行政办公空间、为南头居民的生活提供便利、为居民健康提供医疗卫生服务。
策略
开放性和杂质性是设计的两个关键词。建筑功能复杂性、体量、形式、材料的多变,形成一栋杂合建筑,加上丰富多样的开放空间,使建筑带上鲜明的城市特征。
重建设计结合多样的功能需求,以城中村建筑尺度为参照,将建筑体量打散、划分为四个体量,并在各自的功能、流线逻辑中发生形体变化,产生了复杂、多变的混合体量。
设计者希望公共空间能在垂直方向上继续发展。穿插在建筑体量之间的各个楼层的开放走廊成为巷道网络的一部分,作为对场地的织补和完善,将周边巷道整合在立体街道系统之中。
与此同时,外部开放楼梯在垂直方向连接各层的“巷道”。楼梯及平台穿插在建筑体量之间,形成活跃建筑体量的灵动因素;其自身也具备公共性与可用性,成为活动、停留、休憩的场所,成为周边居民日常生活不可或缺的公共生活发生地。
材料
材料上采用以不同比例混合的青、红砖建造立面,各栋建筑体量呈现不同立面特征,在变化的同时平衡统一性。建筑门窗构件也根据建筑体量特征和功能需求而变。所有这些元素汇合成一个“杂质空间”。
南头城社区中心将以自身独特的建筑语言在南头古城的基地中阐释出开放、多元、包容的深圳城市文化内涵。
项目信息
项目名称:南头城社区中心
项目地点:深圳市南山区南头古城
基底面积:837㎡
客户:万城城市设计研究(深圳)有限公司
设计机构:非常建筑
项目团队:何泽林,梁小宁,郭庆民 
施工图设计:深圳市博万建筑设计事务所

艾恩建築設計

集合设计

10 Design

刘宇扬建筑事务所

同济四时方院设计研究中心

BAU建筑城市设计事务所

朱小地建筑设计事务所

十拓建筑规划设计事务所

张·雷设计研究