“有活动发生是因为有活动可以发生”
——杨·盖尔《交往与空间》,关于驻足节点的设计。
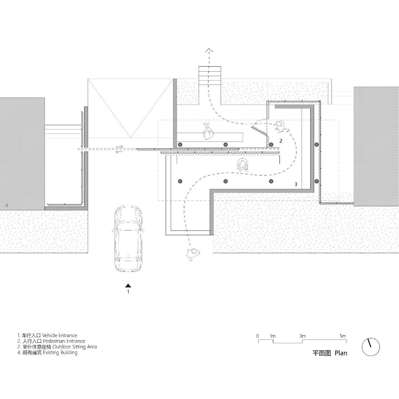
场地原为一所闲置的小学教舍,被改做乡村研学中心。业主希望对现有入口大门进行改造,给将来的研学中心一个有别于昔日的新形象。校舍原有入口是南侧两座门房之间的一扇铁栅栏门。大门平日关闭,防范小偷小摸的同时也拒绝了其他人接近它的可能。它的空间形象是杂乱消极的,功能类似闸门,只可开合。我们希望在回应使用者对于入口新形象的期待同时,不是去雕塑一个标志化的造型,而是通过重新建立人与入口空间的联系,让大门成为人停留和使用的真正空间。
>入口空间被忽视的公共属性
大门是街道空间的延续,它不只是薄薄的门板,也是具有厚度的公共空间。在传统建筑中,大门往往以入口建筑的形式存在,门扇后退让出一部分面向街道的檐下空间,供人停留。主人送客出门时在此寒暄送别,大雨倾盆时路人借此避雨。大门自古虽有彰显自家身份地位的用途,但也是具有社交温度的空间。胡同里大门口的檐下空间,就承载着邻里间闲谈、纳凉、游戏的公共交往属性。
我们设置了一个板柱结构的小亭作为入口建筑,它以最基本的结构和材料建造:两排圆柱支撑一片平屋面板,创造出挡雨遮阳的檐下空间,地面用两步高差的抬升来界定入口可停留的区域,亭下设置三张混凝土长凳,让进出的师生和过往的路人在此小憩或交谈。地面砌筑空心砖矮折墙,引导人走入亭内。竖向支撑均使用圆柱,增强了空间的流动性。
>还原人的尺度
原入口两侧的门房间距接近二十米,有两扇分别给人车出入的铁门,其余界面都是不可开启的铁栅栏围墙。人和车一样均通过铁栅栏门进出,人的行为模式不同于机械的汽车,却和汽车同等对待,这样营造出的空间是缺乏人情味的。因此我们给人车设置了不同模式的入口:划出6米宽的车道给小汽车进出,一扇机械电动滑门控制其开合,汽车可径直驶入内部,其余宽度最大化的还给行人使用,人从另一侧的亭下漫步进入内院。人和车各行其道,彼此都得到了尊重。
>“内”与“外”柔化的边界
大门的竖向围合由钢管框架作为支撑,表面覆半透明的波浪树脂瓦作为界面。平面呈几段转折,像一层轻盈的羽衣包裹住入口,比墙柔软,比铁栏杆更富有温度。半透明材料呈现出的质感模糊了“内”与“外”的边界,在空间上它阻隔了外界的进入,在视线上允许光线和色彩穿透,但模糊了形状和深度,形成一层暧昧的遮罩。大门横向延伸至亭内,将亭下空间对分为内外两个朝向,对街道和内院均做出回应。这段界面也如同影壁,将入口流线纵向拉长,使人在漫步中完成空间转换的过渡。相比于开门见山式的叙述,这样的入口空间更具仪式感。
我们在波浪树脂瓦后的钢管框架上设置了斜向的灯管照明,夜幕下,一道道暖色调的光带跳脱出主体结构的水平和垂直,打破了大门理应严肃端庄的刻板印象,也为平日习以为常的街道景观增添了一点活泼的气氛。
我们的传统中一直都存在“大门”文化,对“门面”的强调比比皆是,带来一座座标志性气息浓厚的形式主义雕塑,其他更多的是被一笔带过的“普通”大门,他们往往被简化成一道仅具防护作用的围栏,作为使用者的人的存在被忽略了。而大门作为连接内外的空间,人和人必然会在此相遇。我们所做的,便是重建一个可以承载人和人交流的空间。进出之间,人们在此相遇,可以从容的打个招呼,交谈片刻。这也是我们希望这个小小入口能带来的空间温度。
项目信息:
项目名称:安徽霍山县牛角冲乡村研学中心大门
项目地点:安徽省六安市霍山县
项目面积:180平米
设计时间:2021.6
完工时间:2022.1
主创设计师:傅英斌
团队:赵思媛、官苗苗、宋嘉
摄影:傅英斌工作室

竖梁社

尌林建筑设计事务所

傅英斌工作室

傅英斌工作室

中国乡建院适用建筑工作室

DnA建筑事务所

罗宇杰工作室

傅英斌工作室

成为建筑

尌林建筑设计事务所

锋茂建筑

青微舍工作室

在行建筑设计

在行建筑设计