对于科技企业而言,理想的办公空间应为企业成员提供一种自主、自由的体验——以开放的氛围激发真正的创造力。
——陈斌鑫 goa大象设计总建筑师
作为时代的弄潮儿,科技企业是人类未来的探索者,科技企业的总部大楼亦成为展现办公建筑前沿趋势的载体。
宇视科技是中国视频监控行业的领导者,在视频监控领域的市场占有量位居全国前三。goa大象设计于2017年承接宇视科技新总部大楼的设计任务,目标是完成一座“科研生产综合体”,为宇视杭州研究所和试制中心创造最优越的开发条件,助力企业登上新的研创高地。
拥抱公园
项目场地位于杭州市滨江区钱塘江南畔的滨江物联网产业园内,西侧紧邻产业园景观绿轴南端的城市公园。
公园形态近乎圆形,设计以流畅的大弧线与之呼应。建筑没有简单采用高层塔楼的常规形制,而是采用“一横、一竖、一基座”的体量组合,与城市公园取得积极的对话关系。水平展开的弧形界面向城市公园呈现出环抱的姿态。
建筑与公园之间设置半月形广场,既为企业员工提供了连续的日常散步路线,也塑造了更具整体性的城市关系。裙房以框景的方式引入公园景观,一道弧形架空长廊构建了内外交融的界面,使得建筑与绿色互相渗透。
微型城市
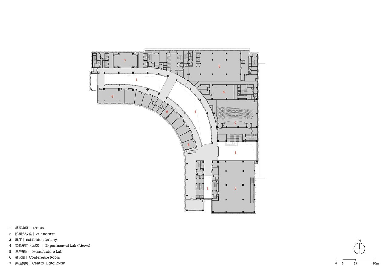
“一横、一竖、一基座”分别对应22层的行政办公塔楼、8层的研发中心及底部的生活服务带。设计参考宇视科技的功能使用需求及分级管控规则,以“模块集成”的手法将多样的空间模块聚合为一座有机而高效的综合体。
总部中设置大量的共享空间,为约5000名宇视员工提供开放的交流氛围与多元化的日常体验。长廊、中庭如同城市的街道,串联研发、生产、会议、培训等工作场景,为紧张而高效的工作日常提供舒缓的间奏;在企业管控范围以外,大部分共享空间可面向公众开放。功能的复合性与公共性使得总部建筑如同一座有机的微缩城市——自成一体而内外交融。
超级动脉
作为一座高密度建筑,如何提升大规模人群的移动效率与移动体验是一项重要课题。建筑基座设置由架空长廊及共享中庭组成的带状步行系统,这一系统宛如建筑的“超级动脉”,极大程度提升了建筑各部位之间的通行效率。
“超级动脉”中,长约120m、宽约7m的弧形架空长廊衔接着研发区的各级出入口,方便员工和访客快速前往建筑的各个部位,也为人们午间饭后悠然漫步至户外广场提供通道。长廊本身亦是供人等候、停留的宜人灰空间。
共享中庭呈带状,从地下一层一直贯通至地上三层。它联通着健身房、图书馆、咖啡馆、便利型商业、食堂及地下车库,以四通八达的步行路径缓解午餐高峰期及上下班高峰期的通行压力。
该中庭也是整座总部大楼中最具生活气息的区域。建筑师采用一系列手法营造自由而放松的氛围:顶部采用大面积带状天窗引入自然光;两端设置开放楼梯,为空间带来上上下下的活跃场景;周遭以通透界面保证人们视线交流的可能性。
创新培养皿
创新来源于思想碰撞。研发中心的单层面积达到5000㎡,为企业研发人才提供开放、灵活的研发环境。一个月牙形的中庭将阳光与景观引入,围绕中庭的Z字形楼梯保证了各层之间的上下往来,也塑造了研发中心鼓励交流与碰撞的工作氛围。
高约28m的钢结构柱与采光顶杆件一体联通,增强了空间的纯净感。玻璃幕墙杆件采用与钢结构一致的900mm模数,保证了立面的简洁性与连贯性。
宇视科技的新形象
朝向不同的城市界面,总部建筑展示形象各不相同。建筑的南面及东面面向城市主要道路,以规整的方盒子形态回应城市界面的连续性,而面向公园的西侧则以层层叠叠的大弧线打造富有动感的形象。整座大楼的构图充满几何形态的组合意趣,细部则呈现理性、简洁、严谨之美。
全新的总部大楼在为宇视科技提供优质办公环境的同时,也为杭州这座蓬勃发展的城市再添一处科技创新的阵地。
项目信息
项目名称:宇视科技总部
项目地点:浙江省杭州市
业主:浙江宇视科技有限公司
建筑设计:goa大象设计
设计/竣工:2017 / 2023
建筑面积:136,700㎡
图片版权:RudyKu、goa大象设计

丹尼尔斯坦森建筑事务所

胡越工作室

都市物语

悉地国际-东西影工作室

中联·左右建筑

司格国际

潘冀联合建筑师事务所

美国WoWA建筑设计事务所

逸竞建筑规划设计

半场半地建筑设计

浙江大学建筑设计研究院

Aedas

潘冀联合建筑师事务所

行之建筑设计事务所

GENSLER

骏地建筑设计事务所

零壹城市

GENSLER

零壹城市

超城建筑事务所

壹所设计工作室

朱小地建筑设计事务所

米丈建筑设计事务所

大犬建筑

米丈建筑设计事务所

零壹城市