 
      
         
        日本料理中有对食材与味觉的至高追求,饮食的体验亦成为日本美学重要组成部分,有关食物的最高享受以视觉的画面交换味觉的触感,人们吃到的味道,看到的颜色都构成了生活美学中永恒的主题。
傲鳗作为京城中首屈一指的鳗鱼饭,师从日本三重县烤蟹大师伊藤忠,从创立之初,一直遵从关西传统烤鳗技法,强调对于食材的极致鲜美追求与味觉的精细演绎。设计师希望以空间制造一个此时此地的“境”,让食客不仅仅可以品尝最正宗的珍馐之味,更若身临其境一般沉浸感受着原汁原味的风土人文。
正是以此为出发点,一路溯源至关西的文化重镇——京都。在这座千年古都的神社、佛阁、庭院、绘画中,汲取了诸多意象,结合对傲鳗品牌精神的理解,从空间的结构、材质,到场景的塑造,将美食、文化、设计恰如其分的融合,形成了独有的空间体验。
情境
为了让食客全身心的享受这份与时间有关的烹饪艺术,设计师将日本传统建筑理念“Teioku ichinyo 庭屋一如”的概念运用在了公共空间的造景之中,庭院与建筑之间的绝妙平衡的比例关系被置换,观者与被观物的关系成为了主要的空间线索,串联起流动的体验。
食客穿行至开阔的大堂之处,从天花上悬挂下来的金色装置映入眼帘,仿佛如初见水中倒映的金阁寺一般。装置来自京都传统的锻金工艺精心制作而成,自然的纹理赋予了其古朴的质地,又非一味的文化符号挪用,仅以简约的线条抽象描摹,强调出现代性的轮廓感,寥寥数笔就将这静谧与遁世离俗的气质渲染,仿佛有来自原野的风、摇曳的枝叶和湿润苔藓的气息都刹那间涌了进来。
而在与大堂平行并置的另一端明厨空间内,可近距离欣赏厨师炙烤鳗鱼和端炉烧的烹饪过程,与大堂空间中悬挂的艺术装置形成了有趣的互文关系——匠人们以火为主要方式淬炼出顶级料理的口感,与浴火再生的金阁寺复现之美,此时此地,发生碰撞,对话,并盘旋上升,最终得以在整个空间回荡。
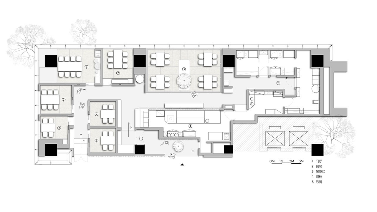
物境
整个空间以京都阡陌交错的街巷格局为空间参照范本,整体以交通空间为串联起或开放或私密的用餐场景,也让空间有了张弛的节奏,时而是轻快,时而舒展。走道的宽度被精细的控制到恰好适宜一人自由穿行,二人并肩拥挤的尺度之内,致敬暧昧模糊的“幽玄”之美。
坐落在北京国贸CBD的用餐空间以竹林为屏障,被营造成为一个与外界暂时“断联”的场域空间。车水马龙的喧嚣留在了庭院之外,在屋内的暧昧与阴翳之中,精心炙烤的顶级食材,搭配秘制的蘸汁,在口腔中肆意的奔腾,带领饕客翻越地理与边界的藩篱,达到味觉的至高国度。
意境
在空间装饰上,设计师没有直接对日式传统民居建筑语言进行的1:1转述复刻,而是尝试化繁为简,以更为现代的设计语言传递传统日式美学精神。阵列式的门头和内部垂直向的木格栅都是如此。
点缀在空间中的雕塑是设计师克制之外流露闪烁的意趣的体现——五只叠放的达摩不倒翁成为走道尽头的端景,达摩作为日本最为受欢迎的吉祥物形象,憨态可掬,如同酒醉后颠倒的不规整形态,打破了走道平淡与严肃的框架,如同吹拂而过的清风为空间带来了一丝放松。
由艺术家为包厢空间量身打造的雕塑,就仿佛出现在关西的田园地头喝酒嬉笑的猫咪,以童趣与质朴穿越空间与时间,一下将人们从高级料理的餐厅回归到朴实又细碎的日与夜中。
空间中还有很多与“纸”相关的元素让立面有了生机和呼吸感。大厅中设计师基于对传统和风纹饰的吸收而原创的壁纸也恰到好处的为整体氛围铺陈。包厢中透光的杜邦纸搭配前方的植物,更有如山本梅逸的纯墨色卷轴画一般的风骨。一窗之隔的室外是车水马龙,室内幽篁疏影,在方寸之间就能有了自然转换的远近空间与细腻有致的层次布局。
作为日本美学的核心思想之一,“物哀”的理念是由日本国江户时代国学大家本居宣长为《源氏物语》所著的注释书《源氏物语玉の小栉》中所提出的。他认为,所谓的“物哀”,即是“真情流露”,当人心接触到外部世界时,触景生情,心便为之所动,并有所感触。
在这里,人们经由眼前客观之物得以与对大千世界的万事万物的感悟相连,在时间的流逝中,真正的欣赏空间之美、感叹纯粹的食物之灵,这也这正是设计师希望在傲鳗的空间中传递的场所精神所在。
项目名称|傲鳗·日本料理
项目地点|建国门外大街IFC国际财源中心B座一层
项目面积|292㎡
设计时间|2022年7月
完工时间|2023年5月
设计公司|FUNUN LAB设计研究室
主设计师|范杰
设计团队|杜晓波、关启家、王侬
照明设计|元入科技 Uniimport
施工单位|华装兄弟(北京)装饰工程有限公司
项目摄影|ICY CYWORKS

本至设计事务所

Say Architects

发喜空间设计工作室

杭州观堂室内设计

芒果建筑设计

PIG DESIGN

堤由匡建筑设计工作室

Super Fan Interior Design

odd

odd

odd

帕姆建筑

PLAT ASIA

索拉设计

刘道华建筑设计事务所

杭州慢珊瑚设计

黄锋室内设计

徽宗设计研究室

实在建筑

堤由匡建筑设计工作室

本至设计事务所

壹舍室内设计

之见空间设计

设谷空间设计

黑泡泡建筑装饰设计

合作舍建筑事务所