 
      
         
        绫致时装杭州直播空间位于浙江杭州滨江的一个双碳技术科创园区内,由两幢三层的裙楼组成,拥有面向街区和内院的三面落地玻璃,明亮通透,且每层均有露台,呈现向城市开放的特征。
A3 VISION 艾舍尔设计回应绫致时装提出的“打破传统型办公模式、注重员工体验”诉求,双方共同创造一个面向未来,促进团队协作,以幸福体验为驱动力的工作场所。
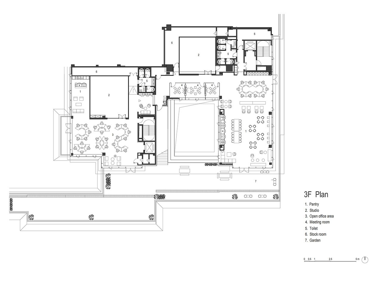
01
交通动线
原本两个独立的单元互不相通,在空间使用上非常不便利,在规划楼层动线时,首先将两幢楼打通,在水平交通上建立了连接,再与垂直的电梯、步行楼梯构成立体交通网格,让各楼层之间的协作变得更通畅,促进团队和跨团队协作。
02
直播间
每层的直播间分布在楼层的角落和边缘,其他协同业务位于楼层中心视线最佳位置。直播间以一个个独立的盒子来呈现,外部由U型发光玻璃、氧化铝、木三种不同的材质组成,在整个空间内表现得醒目且不单调。直播间面向街道的立面以发光玻璃呈现,在视觉上保持项目整体的开放与透明性。
03
混合工作模式
新工作场所可容纳约200名员工,采用工作区、茶水区和休息区混合布局模式,动态的工作环境为员工提供了各种灵活的办公形态,使员工能够创造性地、流畅地工作。直播间和会议室因为工作性质需要独立外,其他均为开放式空间,这样的设计除了提升沟通效率外,也能将更多的空间释放出来提升工作的舒适度,成为一个引人入胜的空间,塑造未来理想的工作环境。
1F入口取消了传统的接待台和访客等候区,设计成开放式的茶水区,让整个氛围更加轻松与自在。3F咖啡混合办公区非常具有视觉美感,纯黑色系的木质咖啡桌椅,与冰雕一般的磨砂树脂玻璃格栅天花结合,营造出一种轻盈冷静的美感,多元的座位组合模式,满足各种社交活动和工作场景需求。与我们习惯的典型企业办公室美学不同,促进幸福感的活动是员工体验不可或缺的一部分。
04
自由组合的工作站模块
为了满足绫致时装的工作文化和实际运营需求,A3 VISION 艾舍尔设计为此项目设计了梯形工作站模块,可以根据需要自由组合出不同的形态,以满足各种协同办公的需求。
项目信息
项目名称:绫致时装杭州直播空间
项目地点:浙江省杭州市滨江区聚业路兴耀科创城V5+V6
建筑面积:33,00平方米
项目业主:绫致时装(天津)有限公司
项目时间:2023年
设计公司:A3 VISION 艾舍尔设计
创意总监:王志峰
执行总监:范进
设计团队:谢佳秀、易媛、丁愈杰、孙韬、朱兴平
合作设计:Bestseller
合作设计团队:朱顺麒(负责人)、程金锋、刘斯滕、李爽
主要材料:氧化铝板、U型玻璃、橡木、水磨石
家具品牌:HAY、&Tradition、FLOKK
灯光顾问:彩曦照明设计(上海)有限公司
施工总包:北京格林贝斯装饰工程有限公司
摄影摄像:是然建筑摄 影Schranimage
影Schranimage

袈蓝建筑

CUN寸DESIGN

森上建筑

米思建筑

艾迪尔

众舍设计事务所

道胜设计

壹席设计事务所

GENSLER

伊波莱茨建筑咨询

GENSLER

星球建筑事务所

向限建筑设计

吾好空间设计

青坞建筑设计

本末设计

锦禾设计机构

門觉建筑

卓汉苏文建筑事务所

借光建筑空间设计

Say Architects

郦文曦建筑事务所

BNJN 本真设计事务所

优景室内设计

清石设计事务所