 
      
         
        清华园社区中心坐落于河南省鹤壁市淇滨区清华园社区,社区内常住人口1.2万人,其中老人与儿童占比超过三分之一,是一个人口密集且老幼比例相对较高的居住型社区。
改造之前,原有社区综合服务建筑被切分成社区党群服务中心和幼儿园两个独立管理运营的单体,分别面向社区居民和幼儿开放。如此的空间分割造成了两个部分各自空间功能单一、使用面积不足,但部分功能设置又存在重复的情况——例如图书阅览室、多功能活动室等。同时,社区整体缺少老年人的日托设施,以及供各年龄层的人群互动交往、共同参与社区活动的空间。
借鉴当今前沿的混合型养老托育一体化模式及理念,本次改造设计项目力图将社区综合服务、养老日托服务与幼儿园托育功能相结合,以共享互助的方式重组空间模式,实现全年龄段居民互助互敬、共融共生的生活场景,并创建“15分钟生活圈”的社区功能复合范例。
老幼一体、分时共享
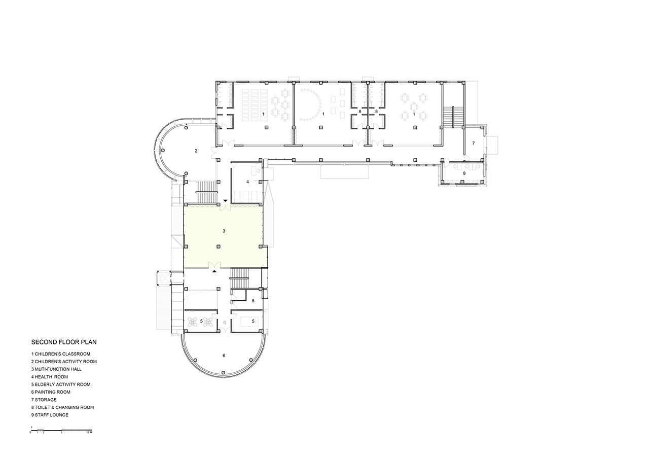
建筑改造设计的重点之一是在内部创造出一个交互区域,将作为居民代际交往核心场所的公共空间(图书馆、多功能厅)架构在幼儿园和社区中心之间,实现空间的灵活管理和运营模式的切换——既可以在不同时段向两侧的使用者单独开放以确保安全,也可以在节庆等特殊时间向所有人群开放,营造老幼联谊、相互照看等共享使用的活动场景。而平时幼儿园放学时如家长没有及时接,也可以到阅览室看书,由社区管理员帮助看护孩子。
幼儿园的操场也可以在放学后及节假日时间向社区中心开放,提供社区居民运动健身的活动场地,实现空间资源的分时共享利用,提高社区室外活动空间的使用效率。
全龄交互的日常运营
新增设的电梯连通社区中心的每个楼层,方便老幼及行动不便的居民到达位于不同楼层的服务功能。入口大厅则以通高的社区客厅形式,增加不同年龄人群的视觉互动,进而激发社区居民对于彼此分享、互相照看的共同行为意识。
社区与社会力量联合参与到建筑功能的日常运营,在日间照料、儿童活动和卫生健康咨询等领域引进专业化社会团队进行服务。其中面向老年居民群体,引进第三方养老机构,打造社区、机构、居家有机融合的社区养老模式、并设立老年大学教学点、社区食堂、适老化健身室、棋牌室、心理咨询等丰富老人生活。多功能教室更是在周一至周五排满了乐器、舞蹈、合唱、书画、手工等不同团课供居民参加学习。
首层增设青创中心功能,引进青年创业团队参与到儿童教育等创业项目,而社区也将反向提供给青年创业团队政策扶持,帮助青年创业与社区服务的互助成长。
活泼明亮的绿房子
原有建筑立面样式芜杂而冷峻,本次建筑改造设计则选择将社区中心立面以浅绿色金属网板整体包裹、期望未来辅以绿植藤蔓,形成青葱盎然的活力形象。而内部重要公共空间将以木色饰面与白色墙面搭配,体现出轻松温暖的颜色与质感,在夜晚灯光亮起时将社区中心内部空间活力多彩的使用氛围呈现在外立面展示给社区,成为凝聚清华园居民的社区归属感、象征清华园社区互助精神的一座明亮的社区客厅。
项目名称:鹤壁市淇滨区清华园老幼一体社区中心改造设计
项目地址:河南省鹤壁市
改造面积:2000平米
项目委托方:河南省鹤壁市淇滨区泰山街道清华园社区
建筑方案设计:一树建筑工作室
主创建筑师:陈曦
设计团队:黄圳锋、叶方南、吴晖阳、翁策楷、朱静、林子雅
养老服务设计顾问:同济大学司马蕾副教授
施工团队:鹏森建设
建成时间:2023.3
摄影师: 张超

水石设计

Wutopia Lab

燕语堂

善祥建筑设计

天元建筑设计

LEL DESIGN STUDIO

方未建筑

凹叵建筑

一介建筑工作室

米凹工作室

方未建筑

维亚景观

梓耘斋建筑