 
      
         
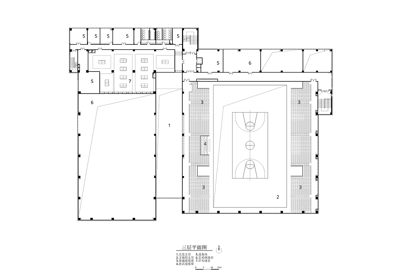
        新北京理工大学体育中心位于北京卫星城良乡,连同新的体育馆,二者一起构筑了新校区的入口。体育中心为学校增添了约15700㎡的运动空间,包括3000个座位的篮球场、10条泳道的游泳馆、健身房、武术空间以及拳击室、跆拳道、乒乓球活动空间等。
北京理工大学是一所长期专注于军事科学的大学,在这个项目中,我们从莱奥纳多·达·芬奇的飞行器以及军事科学中广泛应用的抛物线中汲取灵感,延续了达·芬奇关于科学、建筑和艺术之间的跨学科对话:在研究了相关学科的艺术和科学史之后,创造了三个漂浮在空中的相关联的表面作为建筑物的屋顶,空间网架结构支撑起这些曲面构成的拓扑关联体的屋面,直立锁边的金属屋面系统和幕墙体系覆盖整个屋面和立面。金属铝大量使用于屋顶、天花板和立面上使建筑具有统一的金属色调,呼应了军事领域中的工业美学。
正如达·芬奇所倡导的“文艺复兴人”一样,个体应该在身体和心智方面都表现出强大的优势。北京理工大学体育中心旨在建立一个多维的开放的校园,同时培养学生的心智与身体,鼓励学生的在校际之间开展对话。我们在城市、建筑两个维度上希望能够传达出对话空间可能,主要是通过平面和剖面两个层面上创造出空间的渗透性,在城市维度上:篮球馆位于建筑的东南角,将体育馆与校园主要交通流线和街道生活融为一体;而西部的游泳池则与校园中心广场相连。在建筑尺度上:由于篮球馆的座位被抬高了一层,下方的空间在首层都是相通的,因而室内与室外也形成了很好的联系——从街道到校园,在首层建立了一个新的地平线和视觉渗透;一条内置的入口长廊置于游泳池和篮球馆之间,其南北两个出口正好连接了此前分割的南北校区;在三楼的篮球座位顶部,有一个大窗户,可以俯瞰入口长廊、大厅对面的游泳池以及游泳池一侧的校园;在二楼、三楼和四楼,游泳池后面的运动室——跆拳道、乒乓球和测试中心——都有不同的路径进入游泳池,并且共享来自游泳上方的天窗。由于拥有透明的空间界面,垂直的空间穿透是通过剖面上相互嵌套的功能得以实现。
项目名称:北京理工大学良乡校区文化体育中心
项目位置:北京
项目造价:1.52亿人民币
项目面积:15692平方米
项目竣工: 2019
业主单位:北京理工大学
建筑方案主创与室内设计:Atelier Alter Architects时境建筑
设计总包:中国中元国际工程有限公司
设计咨询:北京汉华建筑设计有限公司
主创设计师:张继元,卜骁骏
建筑设计团队:李振伟,覃凯,蒋萍,黄玮,刘同伟,杜德虎,张家赫,颜然,郑来荣,梅家铭,宋利东,赵潇潇,张晶石,韦必达,熊伟,陈威狄,郭晓晴,达雪芸,黄博,马磊磊,曹辉
结构:中国中元国际工程有限公司
机电:中国中元国际工程有限公司
室内设计:Atelier Alter Architects时境建筑
景观设计:中国中元国际工程有限公司
幕墙顾问:深圳朋格幕墙设计咨询有限公司
灯光顾问:京运佑锦照明设计,ZDP中辰远瞻 韩文晶工作室
声学顾问:中国中元国际工程有限公司
建设方:北京建工集团有限责任公司
幕墙施工:山东天幕集团总公司
摄影师:金伟琦,Highlite Images (亮点影像),Atelier Alter Architects时境建筑
图片版权: Atelier Alter Architects时境建筑

中国建筑设计研究院

CCDI

柏涛设计

Found Projects

天元建筑设计

山鼎设计

洲宇设计集团

三益建筑设计

朱小地建筑设计事务所

周琦建筑工作室

浙江大学建筑设计研究院

柏涛设计

goa大象设计