 
      
         
        项目是坐落湖边的新时沏品牌master店,建筑本体简约利落,外围条件优越。
本案以“虫洞”为概念原型展开设计篇章,同时又打破“虫洞”原有的神秘轨迹,尝试建立时间与空间在建筑内外的对话。设计团队在室内塑造上以雕塑的手法贯穿全场,室内斜向长墙的纵深感和玻璃幕墙带来了对立而延续的视觉导向。
景致和光线在同一时间轴上呈现不同的画面感:阳光与内景、热情与冷静、开放与紧致、社交与艺术等等双重空间表达。且两个界面并非孤立,通过孔洞式的造型达成空间对话,穿插于其中的灯带及吧台链接内外关系,制造虫洞般的联想。新时沏品牌有着“sometimes”的延伸含义,沏泡的不止是饮品而是放慢的时光。设计团队运用水洗石和乱纹不锈钢制造这一层意境,原创的长桌将日出日落的具象透过渐变玻璃形成幻象。
虽为室内空间设计,但考虑更多的是内与外、人与景、光与影、过去与现在之间的相互作用相互美好,这一种关联在本案归纳成:互为镜像。
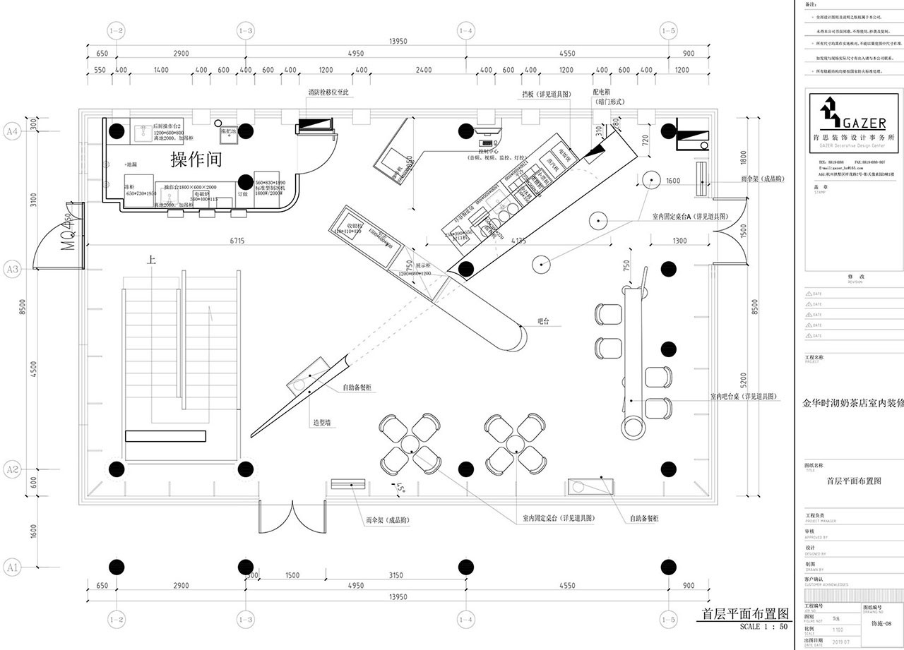
项目名称:Sometimes – 新时沏概念奶茶店
项目地址:浙江金华市湖海塘
建筑面积:120平方
设计方:肯思GAZER设计事务所
概念策划 :林森
主创:邬逸冬
设计执行:周彬、高旭、朱逸飞
主要材料:水磨石、水洗石、艺术涂料、乱纹不锈钢、有色玻璃、有色金属
竣工时间:2019年10月28日
摄影:salome

触觉设计

欧阳跳建筑设计

蘑菇云设计工作室

立品设计

三品空间设计事务所

A.A.N建筑设计事务所

A.A.N建筑设计事务所

绽放设计

马霄龙设计工作室

构造空间设计

深凡设计

马霄龙设计工作室

Z.H.D.I

欧阳跳建筑设计

HELLO设计研究所

A.A.N建筑设计事务所

一直空间设计

nota建筑设计工作室

JK DESIGN STUDIO