基地概况
苏北地区位置独特,湖泊和水系众多,形成了独具特色的水文化。
李口镇卢塘村,西侧黄河故道穿流而过,东侧紧邻千亩鱼塘和宁静的运河,水资源丰富。水,是这片土地的灵魂。临水而居,择水而憩,自古就是人类亲近自然的本性。卢塘村党群服务中心位于黄河故道大堤旁,面朝千亩鱼塘,风光壮丽景色优美。因此,充分发挥景观优势,合理利用原始地形,处理好建筑与自然的关系成为设计的重点。
氛围营造
中国传统建筑文化强调面对自然的谦卑,当代乡村建筑应以遵循“自然之道”的态度来构想、建造与存在,顺应自然地形,融于自然山水。
卢塘村分布着茂密的杨树林,村庄掩映其间,树林成为场地的主角。卢塘村党群服务中心的建设需要尊重村庄已经形成的人与树的亲密关系,使人亲近自然、敬畏自然。基地选择相对开阔之处,珍惜并尽可能保护场地周边的树木,减少对树林的扰动。建筑作为沟通人与自然的载体,不仅仅创造一座功能性建筑场所,更是创造与周围自然景观融合的诗意意境,重塑村民回归自然、参与自然、感知自然的传统村落空间。
高程处理
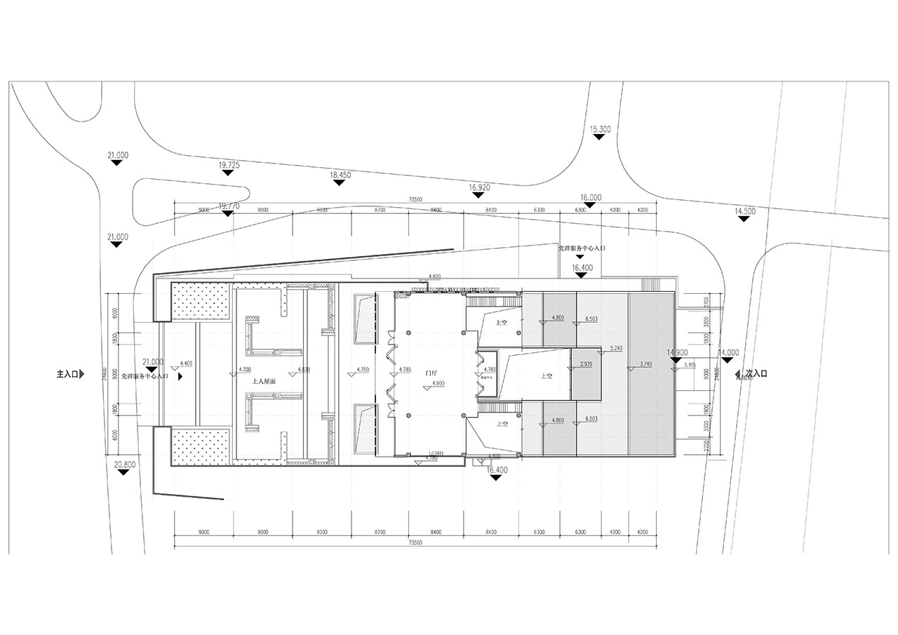
卢塘村对外交通主要利用西侧的黄河故道河堤,东侧沿河小路为村庄内部步行小道。现状地形西高东低,黄河故道河堤标高21.00,场地内标高从西到东从16.50至东侧沿河小路14.00,黄河故道河堤与沿河小路高差7米,现状村庄农房位于16.50标高,与河堤和盐和小路联系薄弱,对外交通很不方便。
设计充分利用地形高差,依势而建形成错落有致的空间层次,使建筑与基地自然相融。为解决对外交通的问题,党群服务中心设计还在北侧开辟连接河堤和村庄的车行道。建筑采用错层设计,办公区设于 16.50 标高(河堤之下),上部 21.00 标高设主入口广场,与河堤齐平。村民从主门厅进入,经两处楼梯可达沿河小路,形成连续活动空间。建筑体量呼应原始地形起伏,大幅减少土方量。
功能分区
建筑功能分为两大部分,包括党群服务中心的办公区,和村民活动中心的活动空间。党群服务中心办公区包括办公室、卫生室、物业服务办公室、新时代文明实践站、社区综治中心、康养服务中心等功能;村民的活动中心包括便民服务中心、红白理事堂、乡情馆、电商服务中心、多功能活动室等功能。
流动空间营造
建筑镶嵌于树林之中,建筑界面与树林层层叠叠、纵向延伸。设计打破楼层界限,连续变化的剖面高度,使人感知一系列空间尺度的变化,暗喻在密林中穿越的空间特质。因基地南为树林、北为新建农房,内部空间东西开敞、南北相对封闭,引导人们探索从黄河故道大堤到千亩鱼塘的景观通廊。
从室外的河堤迈入入口休闲广场,这个广场不仅是建筑的引导入口,也是居民们轻松聚会、休闲放松的室外场所。穿过主广场旁的灰空间进入主门厅,室内如逐步展开的画廊,呈现多层次美景。流畅设计模糊室内外界限,使自然与建筑、各功能空间相互交融。
建筑中央为内向开敞的庭院。穿过门厅豁然开朗,内院上层观景平台可眺望远方,越过起伏屋顶欣赏水天一色。从观景平台通过楼梯踏入庭院,此处植被错落、小径蜿蜒,是村民放松交流的理想休憩空间。
中央庭院东端的多功能活动室是室内空间高潮,功能灵活多变,可作为图书室、文化交流场所及各类社区活动场地。面向千亩鱼塘的通高落地玻璃窗提供宽阔视野,实现室内外空间融合,让村民在活动中尽享美景。
一系列共享空间构建出丰富多彩、流动变幻的建筑环境,为村民提供多元社区体验。建筑隐于杨树林中,如隐秘居所与自然共同勾勒出层次丰富的画卷。傍晚立于观景平台,远眺水天相接,渔灯点点如星光闪烁。
地域特色塑造
传统乡村建筑蕴含丰富的地域文化特征,不同地域的乡村建筑在形式、风格和建筑材料上呈现出鲜明的特点。现代乡村建筑设计应在空间布局、建筑形式、材料应用和技术手段等方面,寻求传统文化与现代建造的有机融合,创造出具有地域特色和现代特征的乡村建筑,满足现代人们对生活品质、舒适度和文化价值的需求。
卢塘村所在的苏北地区是古代汉文化核心,传统民居受南北文化影响,兼具南方建筑的温婉活泼与北方建筑的浑厚稳重。传统院落主房在前、辅房在后、两侧厢房,既保留北方四合院的封闭性,又融入江南民居与徽派建筑特色。
卢塘村党群服务中心设计采用现代的结构和材料,通过创设情景性、故事性、象征性表达,从而创造出简约而又具备浓郁地域特色的空间形态,建立乡愁情感的共鸣。
建筑为院落式布局,四面围合形成私密内院,南北立面相对封闭,东西侧采用通透大玻璃,兼顾现代功能与观景需求。立面延续当地传统面阔三开间、两坡屋顶及 “硬山造” 设计,经优化形成连续坡屋顶,兼具实用性与地域辨识度。
建筑南北立面以实墙为主,不规则排列大小各异的窗户。夜幕降临时,窗内灯光与远处鱼塘渔灯交相辉映,构成 “渔舟唱晚” 的诗意画面。局部采用金属网装饰,暗喻当地特色渔网元素。
项目名称:卢塘村党群服务中心——李口渔灯,水畔客厅
项目地址:宿迁市泗阳县李口镇卢塘村
项目类型:办公建筑
建筑面积:1978.09㎡
建设单位:泗阳县李口镇人民政府
设计单位: 江苏省建筑设计研究院股份有限公司
设计领衔: 刘志军
方案设计: 刘志军、张飞
设计团队:张飞、吴丹丹、王端、刘畅然、梁超凡、徐义飞、袁雷、陈曦、伏文静、韩旭
竣工时间:2023年10月
材料:金属网 混凝土 涂料 玻璃
摄影版权:高峰

米思建筑

慕达建筑

时地建筑工作室

原筑景观

房木生设计事务所

傅英斌工作室

素朴建筑工作室

原本营造

中国乡建院适用建筑工作室

垣建筑设计工作室

郭廖辉工作室

原初建筑事务所

无设建筑

有限设计工作室

集良建筑事务所

YFS易建筑工作室

个别建筑设计事务所

Studio 10

Studio 10

Studio 10

意匠研究室

方夏设计

趣城工作室

山东城乡规划设计研究院建筑创作中心

午璞建筑设计

众建筑

筑象建筑设计工作室

DnA建筑事务所

DnA建筑事务所

DnA建筑事务所

llLab.

随坪一里建筑设计

土上工作室

河南在地建筑设计事务所

繁星建筑工作室

尌林建筑设计事务所

三文建筑 – 何崴工作室

观筑设计

园·舍建筑景观

造作建筑工作室

郦文曦建筑事务所