World Super Market位于苏州美罗百货新区店地下一层,由连续的铺位构成。业主将旗下美罗无界小奢的多国品牌资源在此处集中呈现,构建出一个兼具全球视野与日常温度的商业场景。KiKi建筑设计事务所主持建筑师关佳彦,以 “色彩图谱”为灵感,将色彩与肌理统一为编织空间的视觉韵律,通过流动的色彩线索,展开一场关于材质与色彩的体验式商业叙事。
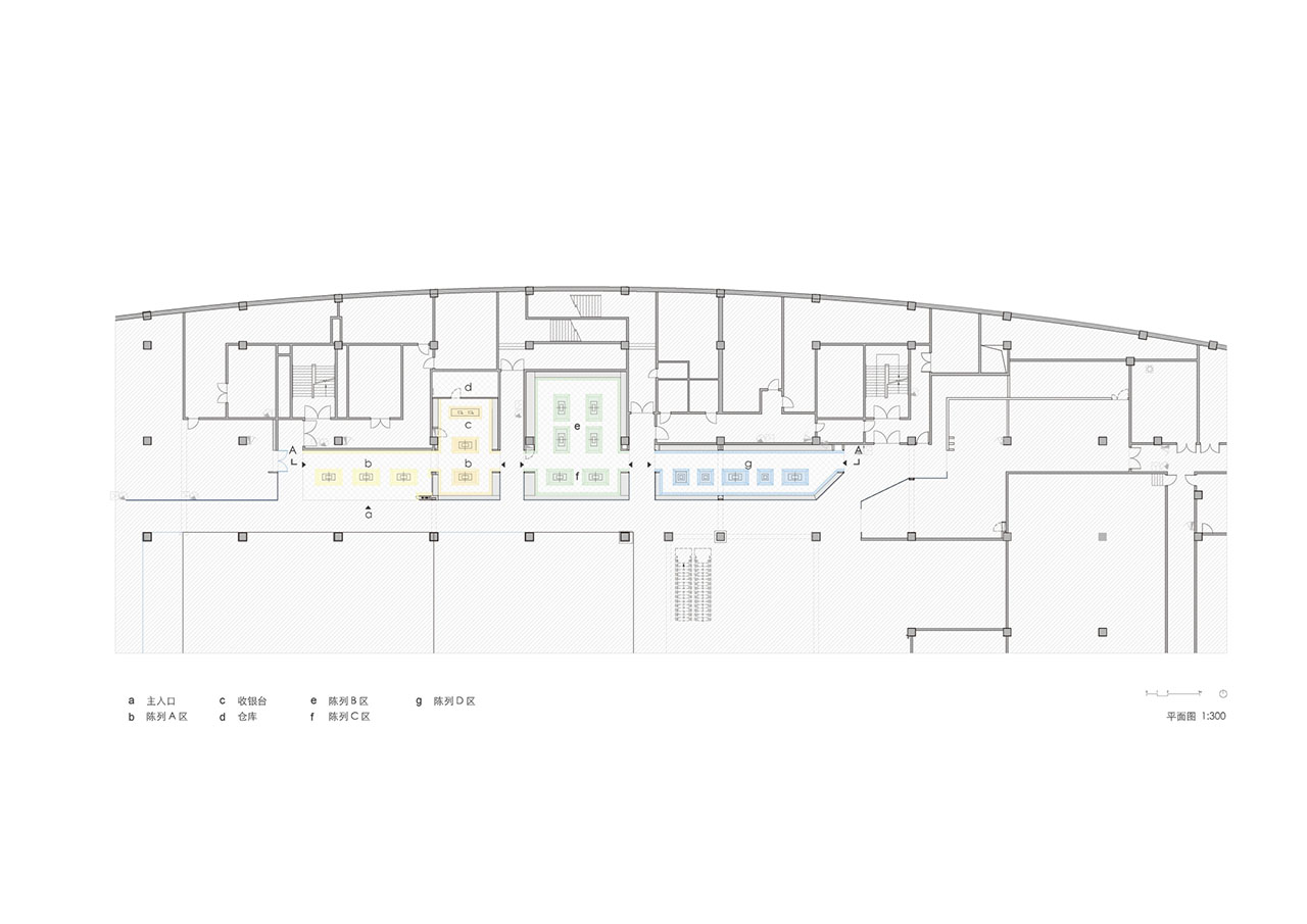
设计从周边环境出发,项目(World Super Market)入口左侧是原有的超市(Market),空间基调为温暖的黄色。设计师延续这份熟悉的视觉记忆,首先将主入口处陈列区设定为黄色,以相近的色调自然衔接项目与周边的视觉感官。原有通道将连续铺位分隔出近2米的距离,这一“断裂”被转化为新的节奏。设计师以隔断为媒介,在空间中植入多样性;沿着色彩图谱,黄色渐次延伸出绿色与蓝色,不同陈列区因此拥有了独立而连贯的主色调,完整的空间视觉轴线得以形成。这些易于识别的颜色,在空间中自内而外流动,让人们能以最直观的方式感受到“同一店铺”的整体性与“不同产品”的差异性,一体与多元在此和谐共生。
空间材质的选择极为简洁,涵盖天花铝板,小块瓷砖与幕墙玻璃等。几种日常而朴实的材料,通过比例与组合的控制,生成了细腻的触感与层次。设计师将统一的系统逻辑贯穿于天花、墙面、地面与陈列道具四个主要空间元素,并为其赋予相应的色彩。由于各陈列区间距仅2米且呈串联布局,色彩的过渡被处理得如同水彩晕染——饱和度被适度收敛,使色调在不同材质与界面间自然流淌。即便是同一色系,亦能展现丰富的层次与呼吸感。
空间的细节层层递进。两种灰度的同色天花铝板在纵深方向上次第重叠,重叠处恰对应地面原色砖区域与通道开口,营造出舒适而有节奏的视觉对称。墙面与核心陈列装置采用小块瓷砖铺设,色调呼应区域主色;与地面衔接处的细节处理,则以材质的连续与转折,带出包裹感与光影投射的微妙质感。墙体展架与道具高处则回归简单的白,使不同的色彩区域在视觉上被柔和地串联,也为色系内部的层次变化带来平衡与宁静。
World Super Market呈现出一种极度克制的丰盈感——在“单纯”的逻辑中追求细节的极致。从色彩过渡到材质衔接,从视觉轴线到陈列层次,人们行走其中,不仅是在浏览商品,更是在体验一种被精心编织的感官秩序:清晰、流动、柔和,却又饱含力量。
项目名称:琳琅串联:美罗无界集市
项目类型:零售,展示空间
项目位置:苏州,江苏,中国
项目面积:336㎡
完成日期:2025.08
设计公司:KiKi建筑设计事务所
主持设计师:关佳彦
设计团队:穐吉彩加,车泽彧, 林思闽,柳生田昂仁
施工公司:苏州海亿达建筑装饰有限公司
材料与品牌:
彩色瓷砖:广东卡硕陶瓷科技有限公司
彩色铝板:苏州海亿达建筑装饰有限公司
玻璃:上海福耀汽车玻璃有限公司
项目摄影:锐景摄影

a9a建筑设计事务所

乾正设计

芝作室

一本造建筑工作室

芝作室

空间站建筑师事务所

直距建筑设计

Also Architects

MEEM HOUSE

植入设计

四周建筑

不也设计工作室

Studio 10

TUW建筑设计事务所

帕奇设计

大星吉子设计工作室

F.O.G.建筑事务所

余留地

多重建筑

MUTUAL LAB

向生设计事务所

FLIP设计工作室

瑞拓设计

班得建筑