在2020年9月,我们第一次探访郎酒集团位于二郎镇的总部。刚从高速驶下,就被整个赤水河谷雄浑的景观、暗调的色彩,和强烈的地势变化所震撼。跨过赤水河时,湿润的空气裹挟着浓烈的酒香扑面而来,湿度与气味的叠加,仿佛让身体直接感知此地之风土。二郎镇临河而建,人们想尽办法压榨土地的使用,多年来,整个河谷慢慢转变为一种生产和劳作浑然一体的景观。
我们的基地位于公路转角,废旧的民房紧贴公路,形成逼仄的城市空间,然而民房的背后一侧是悬崖,有着三十米的高差,河谷景观一览无余。自然之力雄浑强大,然而人们劳作的力量更为持久,双方的对比仿佛锐利的黑白照片。
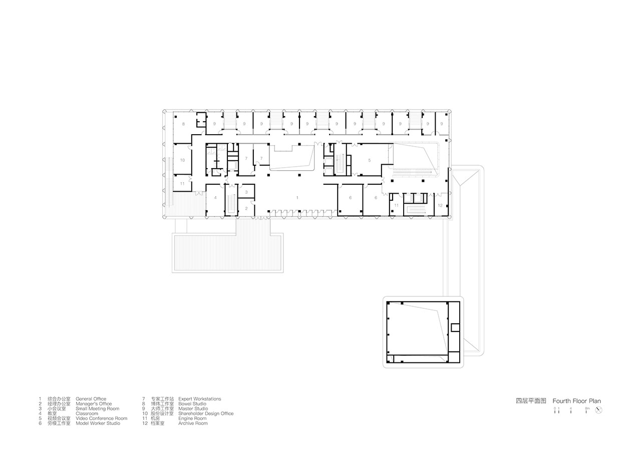
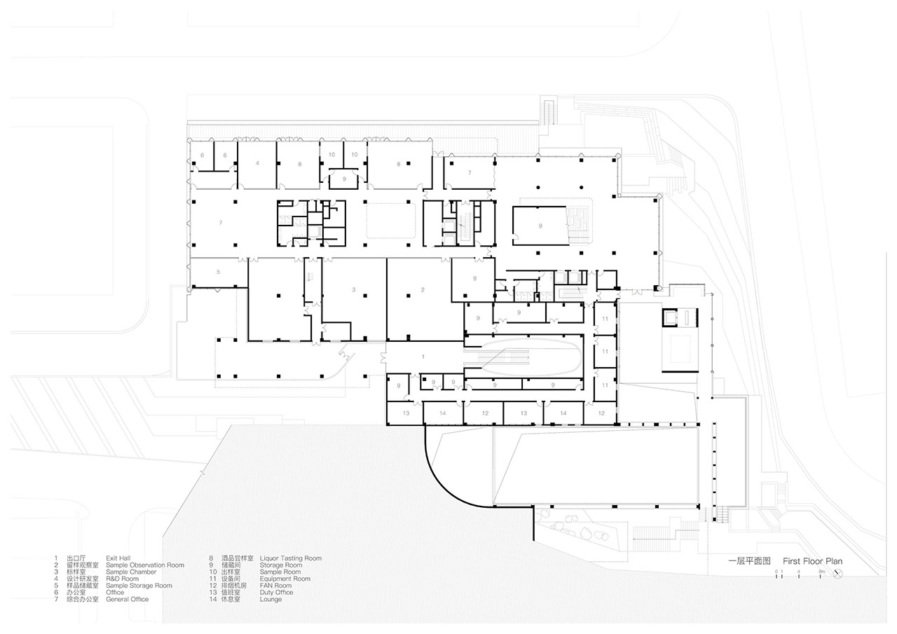
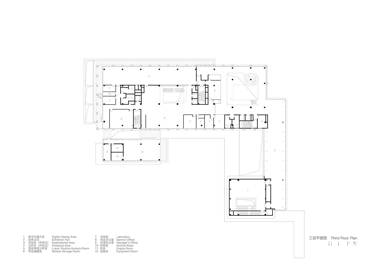
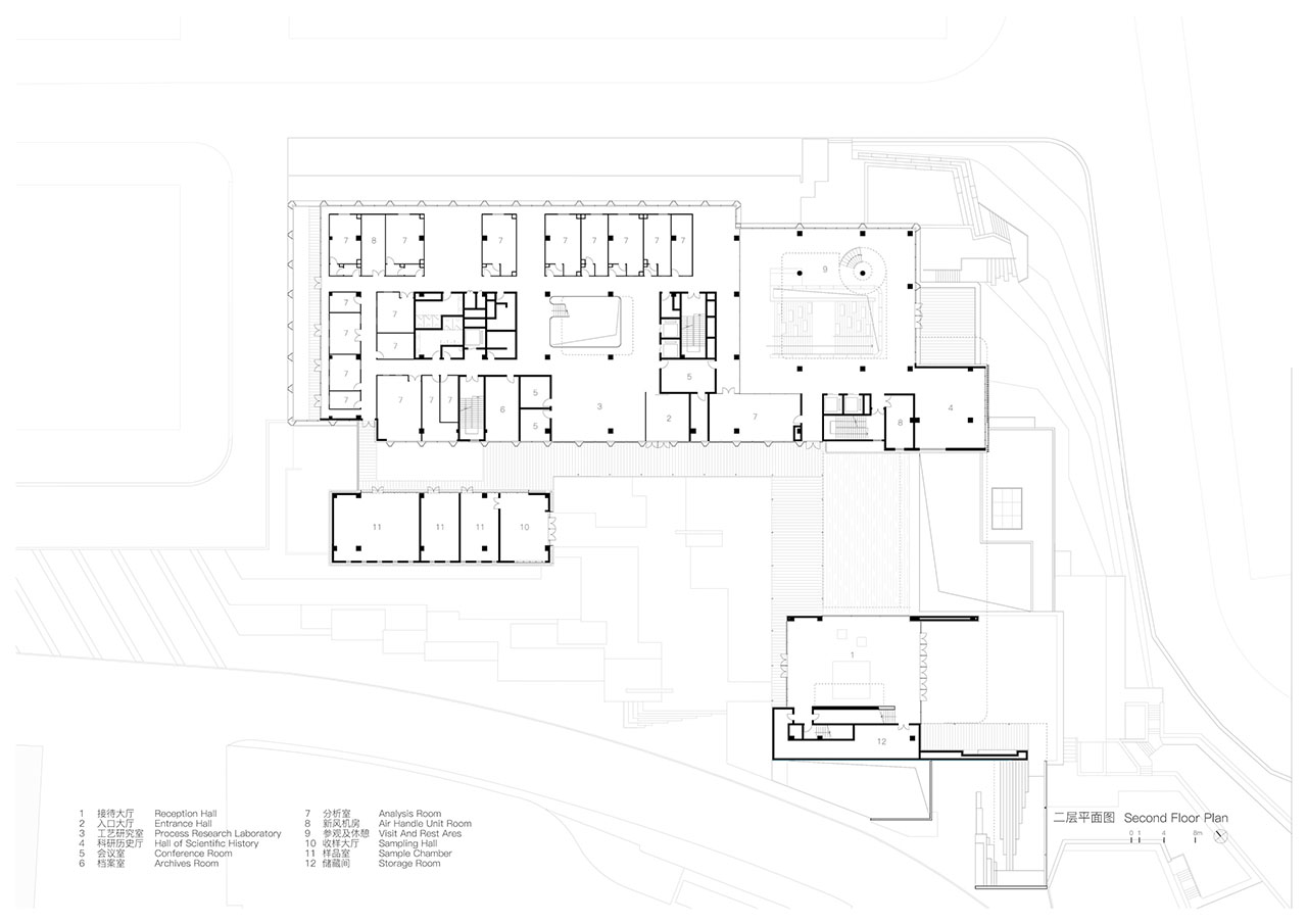
业主希望在此建造一栋包含研发、检测、一个国家级实验室和生产小试区的综合大楼。并且他们希望每个部分都可以为人所参观但不影响研究院的内部运行:这个在上述场地的复杂性上再增加一个维度。
我们的设计起始于如何强化这个场地的特征。我们选择把建设用地的四分之一作为城市公园使用。在道路一侧形成城市级的退让。这是一个冒险的策略,但可以呈现一种独特的城市景观 :让无声的酿酒过程在城市一隅开放性的呈现。从高粱的种植收获、制曲下沙、九蒸九晒,到高温馏酒,甚至保存和陈化的过程都可以向公园打开,让劳作与自然的联系成为城市生活的一部分。
为了消解集中在一起的巨大体量,公园在尽头和层叠分台的建筑融为一体。高差可以让人从建筑的中间层进入,并引入九个大小不一的庭院来改善采光和通风。这些庭院还有独特的意图,其交替出现可以让使用者和参观者感受室内外的变化,进而感知到也许习以为常的自然的力量——空气、湿度、气味在空间中流动。
连桥、飞廊与檐口,这些传统的建筑形式用现代的做法呈现在山地之间,形成庭院的同时又裁切景观。让到访者在不经意间与赤水河谷的四季变化对话。建筑不再是单纯的形态,如美酒琼浆不是简单的水和酒精 :它尝试提供更多的维度——让人们重新发现那些被忽视的自然细节,唤起对这片土地深深的认同。
项目名称: 郎酒集团品质研究院
项目地址: 中国泸州古蔺二郎镇南侧
建筑面积 :19 425 M2
基地面积 :13 064 M2
委托方: 四川省古蔺郎酒厂有限公司
项目完成年份: 2024年1月
设计单位: 天仝建筑 | TEKTONN ARCHITECTS
施工图设计:中其建筑规划设计有限公司
主创设计师(人名):王翔、田文沐
设计团队(人名): 齐然、倪燕,叶兆丹等
摄影师: 存在建筑摄影

UUA建筑师事务所

领筑智造

木君建筑与室内设计事务所

边缘计划建筑工作室

加减智库设计事务所

weico建筑事务所

天华建筑设计

goa大象设计

都市游牧

goa大象设计

合尘建筑

张朋千建筑设计谘询

矶崎新+胡倩上海工作室

摩致建筑设计

NAN建筑事务所

彼山设计

大犬建筑

潘冀联合建筑师事务所

UUA建筑师事务所

卓汉苏文建筑事务所

杜兹设计

张·雷设计研究