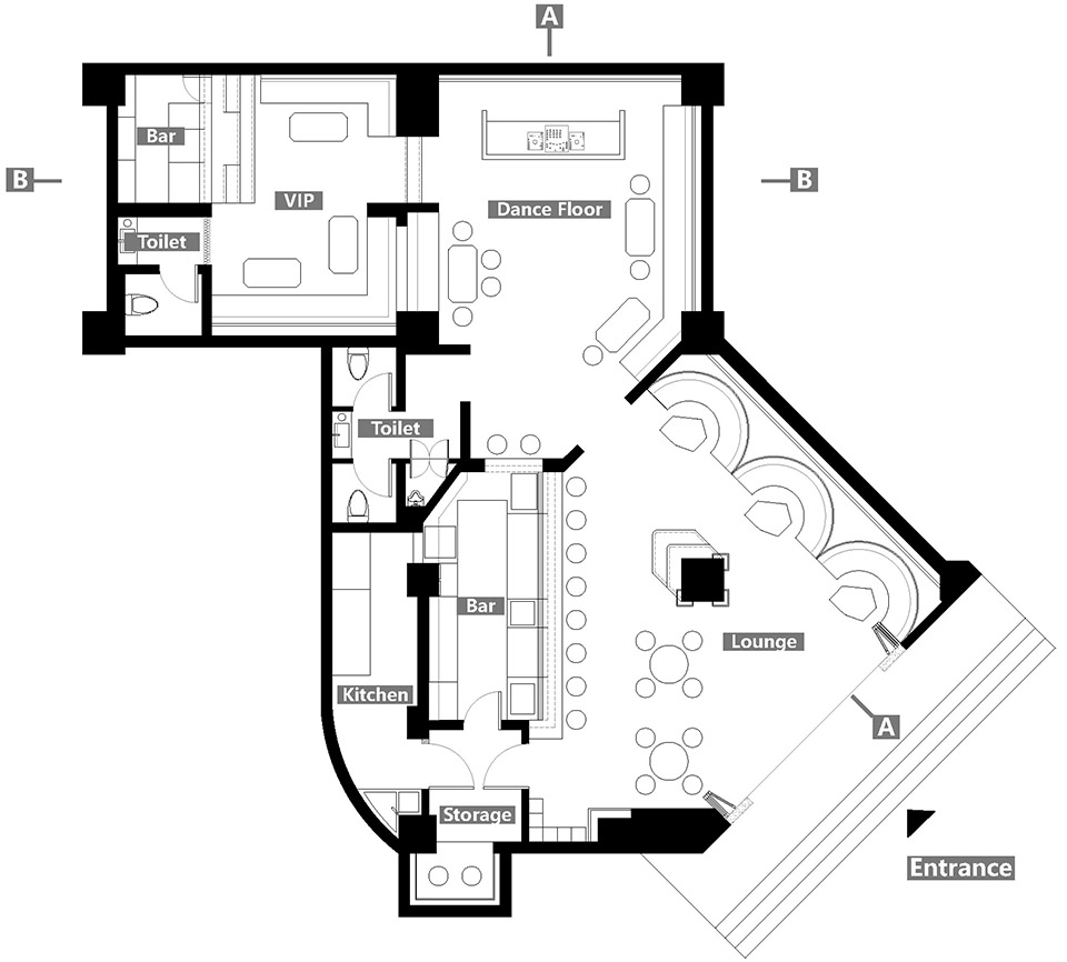
STREET NOISE是一家主打HIP HOP音乐的酒吧娱乐空间。刚接触这个项目的时候,业主描述了对这个空间氛围的个关键字:赛博朋克,银翼杀手。结合这两个关键字,我们描绘这样一个虚拟的场景线:一个带有荒废的军工仓库气质的入口,硬朗的矩形构成,质地坚硬的金属材质,粗犷的水泥,涂料喷涂的类似编号一样LOGO,最简单的照明方式。
打开这个仓库大门,伫立在前厅中心的是一个类似地下城市地标一样的树状造型,因为它本身是在场地中间的一颗结构柱,如果不能拆除,我们就把它变成我们假象城市的精神地标。这个精神树下挂许多分枝,每个分枝的下端都又一个LED屏幕,独立的播放着稀奇古怪的画面,寓意着实时播报着地上世界的状态。吧台上挂着自动旋转的唱片,仔细听能听到唱片电机带动皮带发出的摩擦声,提醒着每一个酒客,这里的精神内核就是这些声音。环形的沙发区背后挂满百叶帘,寓意着阻挡意见不合的外界向这里窥探。百叶背后有4个绑定在轨道上的屏幕,来回的在百叶后自动奔走,像监视机器,也像活动的小窗,他们代表门外的世界。
穿过一个拱门,来到这里的中心—舞池。Dj台在这个空间中轴终点的位置,DJ是这个空间最有话语权的人。环看四周有很多门洞,通往外厅的,通往洗手间的,通往VIP小间的。每一个洞里都发着不一样颜色的光,每个门洞的形态也都不一样,寓意着这里包容着很多种类的文化。
顺着眼睛里散发的红光,来到最深处的VIP区。这里藏着一个小吧台,它的海拔位于这个空间的第一阶梯,这里有着外厅没有的神秘酒单,需要多爬几个台阶,才能得到。
项目名称:STREET NOISE CLUB
项目地点:上海市万航渡路19-1号
场地面积:200平方
设计类型:酒吧室内设计
施工团队:李工
设计单位:间禾建筑设计咨询(上海)有限公司
设计主创:杨睿
摄影师 :刘旭
舞美设计:李湛
完工时间:2019年6月
材料:水泥,不锈钢,阳光板,百叶帘

OFFICE AIO

光和一切

涩品创作小组

平衡空间设计

一间建筑

TOPOS DESIGN

HOOOLDESIGN事务所

RooMoo

PIG DESIGN

未见筑设计事务所

上海问和答

乔和桥治建筑实验室

上海问和答

低态建筑

三厘社

線状建筑设计研究室

新冶组设计

大栋建筑

泛域设计

泛域设计

UnderRoof

白菜设计

唐木体验咨询

平衡空间设计

奇偶创艺事务

唐木体验咨询

星球建筑事务所

卓汉苏文建筑事务所

设计秩序

RooMoo

ATLAS

Studio 10

贰木建筑

时隅设计

成都VGC设计

尚希设计

鼎点室内设计

今朝风日好

今朝风日好

Mirabeau Architecture

徽宗设计研究室

E27 STUDIO

E27 STUDIO

Mirabeau Architecture

壹阁设计

TOPWORKS

蜂鸟设计

itD studio

贰方设计

hcreates罕创室内设计

间禾建筑设计

PIG DESIGN

ATELIER I-N-D-J

构看建筑设计

西凹设计

西凹设计

HOOOLDESIGN事务所

杭州一展室内设计

RooMoo

上海问和答

WOOTON DESIGNERS

I.F.S.E. SPACE CREATIVE LAB

壹所设计工作室

呐么Lab