我年少时期的昆明具有浪漫主义色彩,常常步行北京路、盘龙江畔、至塘子巷或德胜桥,右转金碧路去母亲的厂里吃饭。江畔路旁,茂密的法国梧桐掩映着红瓦黄墙绿色百叶窗的法式建筑,金色的光斑散落一地。
20世纪60-70年代,中国正处于一个无法理解的非常时期,温吞的昆明没能像20世纪30-40年代幸运地避开抗日的战火,成为中国的大后方。我从父辈、兄辈们的追忆中看到那个时代的惶恐与动荡。成年后的第一次阅读读到一段文字,这是昆明画家毛旭辉的记忆:文革期间,内地作者不论专业与否,几乎全部投入主题创作,画领袖像,而在昆明另有一番景象,周日、上下班前后、甚至中午,在海埂、西坝苗圃、圆通山樱花园、大观楼周围的法国别墅、庞龙江畔,随处可见写生的油画爱好者,像某校学员在他们的写生基地,人人谈论“苏派”的“逆光效果”,谈论“印象派”。彼时我尚小,不记得这番景象。可我毫不怀疑,因为在我对昆明城有了景象级以后,这个城市就是具有这样的氛围,直至高一,昆明城才开始被裹挟着踏上自我消亡的行程,一去不返。
我少年时期的昆明城是具有印象派色彩的梦幻之地,从“滇越铁路”兴建至我大学毕业,近90年的时间,这是我以为的昆明城最美的时期。少年时期常常步行北京路、盘龙江畔、至塘子巷或德胜桥,右转金碧路去母亲的厂里吃饭。江畔路旁,茂密的法国梧桐掩映着红瓦黄墙绿色百叶窗的法式建筑,德胜桥上墨绿色的铸铁护栏,虽不及巴黎新艺术运动时期出现的铁艺那般唯美动人,却也典雅优美。这个城市文明发展的进程中,滇越铁路时期是一个极富影响力的阶段。随着铁路的通车,昆明成为法国的影响范围,新的意识、生活方式、各类人物通过铁路进入昆明。昆明平静的包容着这外来的一切,包容着变化。
喜舍﹒隐市这个设计,业主的卓识为设计赋予了充分的构思空间。继喜舍﹒大理之后,我们藉次机会,在昆明市中心一处奇妙老楼中创作了这家隐市酒店。每座城市自有它的岁月,每段旅程我们总渴望有不同的美好。能让置身其中的旅客除了有惬意的休息之外,还能看见些许这个城市的岁月,这何其美好。昆明1903年-1990年,这近百年的岁月,是我心中昆明最美好的岁月。在这个不大的空间中,我们尝试重新找回城市阶段进程的文明脉络以及昆明城的慵懒。
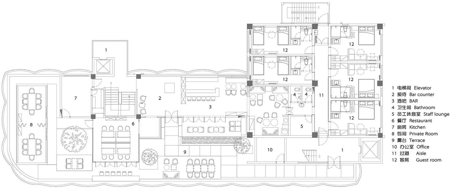
酒店的个性从事业本身的特殊性延展出来,从小小的巷进入小小的门,再穿过窄窄的通道进入被老小区包夹着的内庭(与邻居保持友好的距离),才可到达酒店reception的电梯。
从电梯直达5楼,前奏结束,进入酒店核心。城市中心区极少见的露台花园包裹着酒店前厅、早餐房、茶室和酒吧。
路上高大的银桦树让水平视线不易看到城市的建筑,耳中传来城市的车流声,眼中却是满目的绿。穿过花园去到房间的路程绝不会让客人感到枯燥,只会想要放下行李到酒吧喝一杯,去感受着喧嚣背景中的安然弛放,这是属于这里的奇妙而独特感受。
酒店一共43个房间,建筑原是写字楼,空间多变而复杂,设计和施工都带来大量的细节处理。
最小的房:17m²,可丝毫不显局促,甚至有一个可舒服坐下的符合区域,一切都是刚刚好的样子。
旅程,这短暂的一泊,该留有它的气息。
地域,该有它岁月抹不去的痕迹。
当下社会,设计常迷失于单一的视觉张力。大都把注意力集中在特立独行的视觉构成之上。场所的精神感觉已经被疏离感所取代。这个城市的设计语境是真切存在的一个巨大的“场”。他产生认同感。由此带来归属感。这处场所,设计的企图就是承先启后。但流于表皮主义,符号主义的肤浅,也是该摒弃的。城市语境形成场所精神。黄墙红瓦绿百叶,覆满街道的绿,昆明城的浪漫主义,光照强烈的高饱和度色彩的梦幻主义,都根植于这条盘龙江旁的街道上。自然而然,这就成为喜舍的场所。
项目名称:昆明﹒喜舍隐市酒店
项目地址:云南省昆明市青年路
建筑面积:1829m2
业主单位:喜舍昆明酒店管理有限公司
设计机构:昆明思成工程设计有限公司
完成年份:2019年3月
主创人员:石涛
设计团队:黄玉娟、杨谨屹、谷永丽
摄影版权:王鹏飞

A Work of Substance

简璞设计

如恩设计研究室

ASAP设计事务所

共和都市

中国建筑设计研究院

布道空间设计

吉午合建筑景观设计

B.L.U.E.建筑设计事务所

本哲建筑

建筑营设计工作室

苏格SG空间设计事务所

苏格SG空间设计事务所

goa大象设计

B.L.U.E.建筑设计事务所

東木筑造设计事务所

左山右川建筑

方糖空间设计顾问

未止工作室

尺镀美学装饰工程设计

华熙万物设计

llLab.

薛今设计

GOM高目建筑

宽品设计顾问

万境设计

璜合设计

卓汉苏文建筑事务所

江河设计

无之设计

寻常设计事务所

方寸践建筑设计

咫间设计

赵扬建筑工作室