本项目位于湖州与杭州之间的小城镇埭溪,坐落于山脚地势平缓的半坡上,四面环绕竹林,所见之处茶海漫山。整个区域未来将包含一片面积广阔的玫瑰种植园,以及度假酒店、矿物疗养中心和芳香博物馆。作为接待使用的小体量建筑,玫瑰庄园精品酒店是整个规划的第一阶段,设置有服务台、餐厅、多功能等公共区域,以及少量客房。其余项目将在其之后陆续建成,逐渐形成一个建筑群体与自然环境相互融合相互理解的整体。
场地已有的独立建筑采用了浙江传统的建筑形式,我们选择保留此现有的老建筑,在旁边安置新建筑与之毗连。设计灵感由此而生,采用浙江当地古老而传统的建筑工艺和材料,寻求一种合理而有效的方式可以更适合这片场地,并由此为出发点选定了本项目的最终位置。建筑物与场地现有的农场垂直分布,使农场与两栋建筑之间建立起对话,同时又运用平台和游泳池使两个实体相连接。
建筑设计概念来自于典型的房屋形式:坡屋顶和四面围合的建筑墙体。然后采用了四个钢”盒子”来影响此建筑. 其中主要的一个以八米高的体量切开建筑物,创造了一个室外流通空间, 可通往二层的户外阶梯楼梯和画廊。其他三个盒子用于组织建筑外立面以及室内外之间的关系,将繁杂的事务框在视线之外,创造出一个与景观亲密接触的最佳视野空间。
建筑物一层用厚重的夯土建造,搭载二层更简洁轻盈的建筑形态,内包含4间客房。夯土墙可以创造一个良好的保温隔热空间,并起到充足的隔声功能,同时,可以自然形成外立面和房间内墙上的特殊纹理。它既是一种合理的建筑方式,又是对当地建筑的微妙参照。
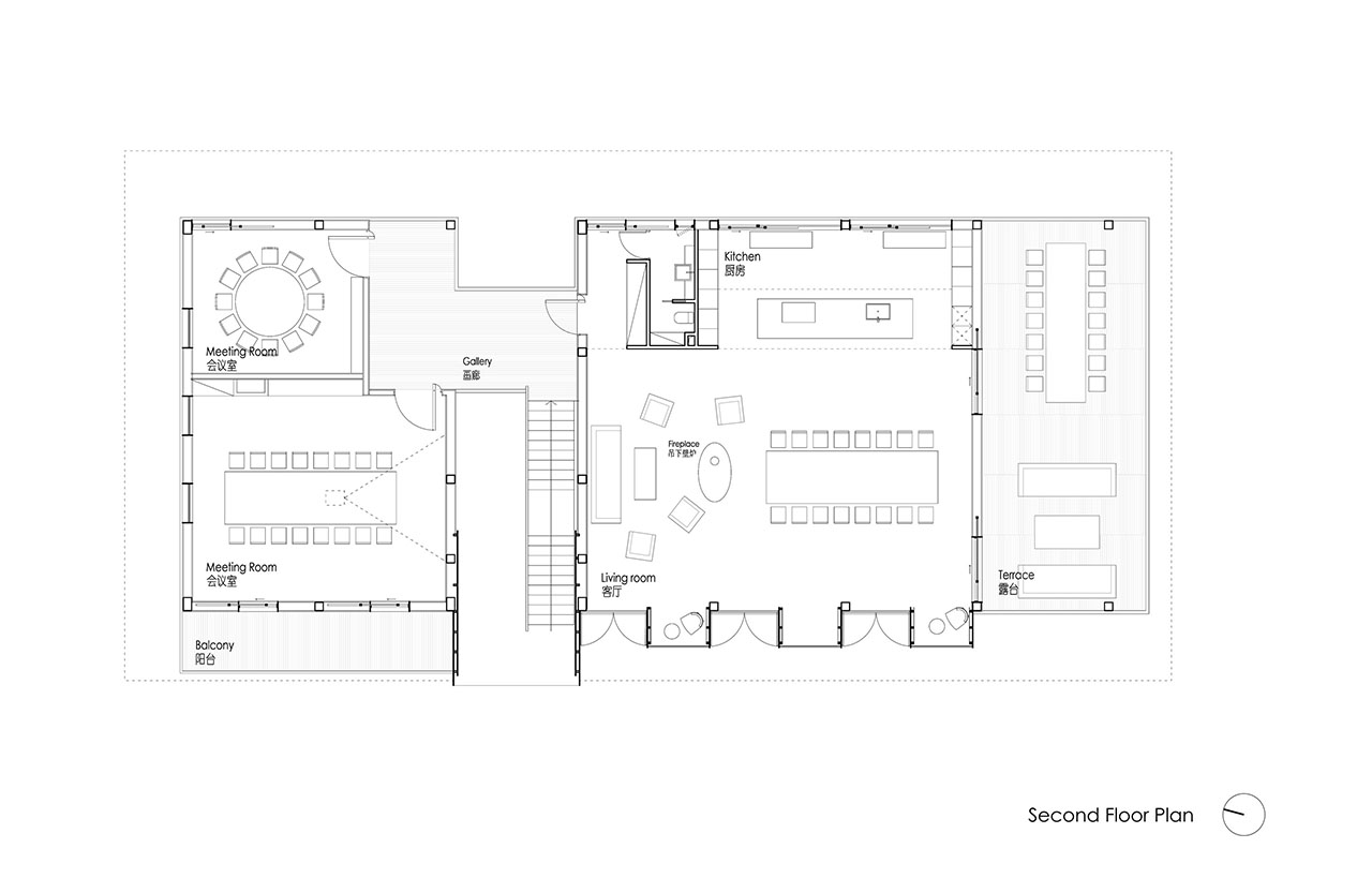
二层设有会议室和起居室。这一层建筑物的形态开始变得轻盈,外立面使用原色实木整齐铺设。实木部分可以设计为富有变化的打开部分,从而在打破正立面封闭性的同时,又极具功能性:在一层设置为局部打开,作为一扇进入室内空间的自由封闭门,而到二层,设置为全部打开,作为建筑通风的同时最大化的引入景观。
屋顶通过木椽与钢结构的组合结构来实现超长跨度,结构外露的形式,为项目的公共区域创造自由阔达的空间体验。建筑的南侧同时设有有顶露台,为使用者提供视野开阔的观景区。
项目名称:玫瑰庄园精品酒店
地理位置:浙江省湖州市吴兴区埭溪镇四季玫瑰庄园
场地面积:240亩
建筑面积:700m2
业主单位:四季玫瑰庄园
设计机构:JSPA Design (卓汉苏文建筑事务所)
主持建筑师:Johan Sarvan (法) / Florent Buis (法)
项目时间:2018 – 2019年
工程顾问:蒋杰

A Work of Substance

昆明思成工程设计

简璞设计

如恩设计研究室

ASAP设计事务所

共和都市

中国建筑设计研究院

布道空间设计

吉午合建筑景观设计

B.L.U.E.建筑设计事务所

本哲建筑

建筑营设计工作室

苏格SG空间设计事务所

苏格SG空间设计事务所

goa大象设计

B.L.U.E.建筑设计事务所

東木筑造设计事务所

左山右川建筑

方糖空间设计顾问

未止工作室

尺镀美学装饰工程设计

华熙万物设计

llLab.

薛今设计

GOM高目建筑

宽品设计顾问

万境设计

璜合设计

江河设计

无之设计

寻常设计事务所

方寸践建筑设计

咫间设计

赵扬建筑工作室