木又寸 (Atelier Tree) 为服装品牌TF.33设计了在2018北京服装展会上的临时展亭。经典的东方庭院空间被抽象为装置,呈现于中国农业展览馆展馆室内空间中。
安装建造时间被限定在16小时之内,以工业成品材料构建,使材料藉由成为结构或饰面清晰地传达毫无掩饰的诚实精神的建造策略,实现了极低的预算控制。混凝土空心砌块、铝箔风管、聚碳酸酯板、金属方钢管这些构成展亭的材料,在完成3天的服装展示任务之后,可全部被回收再次利用。
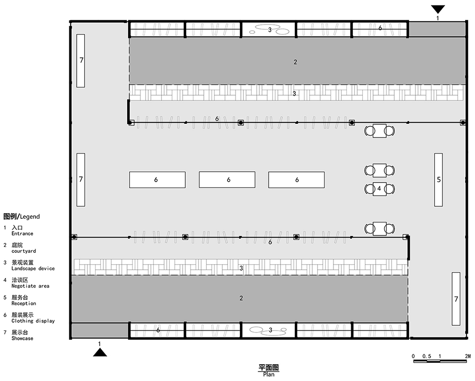
展场限高4.5米,木又寸降低庭院两侧围合结构高度至两米,使中部金属编织坡屋面闪耀的光芒越过围墙。在场地周边极限利用限高建造的高大展亭的围合之下,反而成为目光与人流汇集的能量盆地。矩形展位四面毗邻展厅通道,自然的将出入口预留在南北主要通道界面沿场地对角线的位置,南北两侧庭院与中部坡屋面将场地划分为三部分平行的内外空间,也同时限定出S型参观动线,贯穿了庭院和室内服装主要展示区及洽谈休息区。
展亭外围用金属方钢管做框架,同时兼具围墙结构与服装挂架的功能。外部包覆乳白色半透明聚碳酸酯阳光板,纤薄却不可逾越。摇曳的服装和展亭内参观者朦胧的影子,在聚碳酸酯板上留下生动的黑白影像,围墙成为时刻变化的默剧荧幕。参观者穿过低调的展亭入口,进入抽象庭院内部,在直率单纯的装置空间中穿行,探索展示在庭院与坡屋面空间下的服装设计作品。
编织屋面压低的檐口强化了与庭院空间的边界,檐口下框出了当人坐下时可放置目光的横向展开的平静洞口。混凝土砌块拼砌成景观装置在檐口下铺展开来,是室内和庭院的区隔,亦是二者共享的风景。
坡屋面这一东方传统建筑重要元素意向,在展亭中部用直径300毫米的铝箔风管编织覆盖。金属质感编织屋面呈现出厚重的体积感,但其实铝箔材质却只有极轻的重量。风管孔洞与风管间缝隙,使室内外空气、光线、视线得以穿透和流转,屋面成为仿佛具有生命的呼吸器官,空间装置与环境被融合起来。
屋面编织与聚碳酸酯板几何裁切的动作将建造行为引向布料的制作联想,展亭也即刻转变为参观展示行为的皮肤,展亭建造演变为服装的创作活动。半透明纤薄外墙与铝箔风管上陆离的光影,以及空间中恍惚移动的参观者,制造了一场虚幻与现实间的当代梦境。
项目名称:即时风景 – TF.33 服装展亭装置
项目地点:全国农业展览馆,北京
设计时间:2018.4.24 – 2018.5.15
完工时间:2018.5.22
设计机构:木又寸建筑事物室
主设计师:常凯生
设计团队:常凯生、曾丹、郭心朵、杜雷
面积:180m2
施工单位:北京华美万泰文化传媒有限公司
主要材料:聚碳酸酯板、铝箔风管、水泥空心砖、金属方钢管
摄影师:李什么、木又寸团队

不也设计工作室

间筑设计

星球建筑事务所

青微舍工作室

O筑设计

时境建筑

SLOW Architects

大木建筑事务所

空间站建筑师事务所

纳研作室

浆果创意

SKYnoa

平行公社

众建筑

大宛设计

MOC DESIGN OFFICE

共生形态设计

加减智库设计事务所

桐话建筑设计

纳研作室

即时设计研究所

佚建筑工作室

CUN寸DESIGN

Studio 10

Studio 10

平行公社

任天建筑工作室

KiKi建筑设计事务所

零几建筑事务所

灰空间建筑事务所

共生形态设计

无所艺术设计

堂晤设计

朗图设计

氣象建築

CUN寸DESIGN

大星吉子设计工作室

直径叙事设计

直径叙事设计

若無空间数字艺术

纳研作室

B.L.U.E.建筑设计事务所

纳研作室

纬图设计

与向空间设计

间筑设计

翡梧创意设计

鹏和朋友们设计事务所

协调亚洲

蜗牛建筑工作室