城中村依偎在现代化的都市中,是城市化进程的遗留。拥有近1700年历史的南头古城,位于深圳的城市中心,从昔日的富庶古都演变为如今拥挤喧闹的城中村。古城内的蜿蜒小巷、广场和胡同,错综复杂、紧密相连,吸引着无数游客的驻足好奇。当地居民、街头小贩、嬉闹孩童和流动人口亦在此栖居。如恩将位于南头古城的一栋居民住宅,改造成为设有十一间客房的精品酒店。
南头古城的街头巷尾充盈着勃勃生机。如恩试图将日常生活的景象纳入设计——人、物件和他们所处的环境,都是灵感的来源。为了延续城中村的市井烟火,如恩对原建筑进行切割,将外部景象引入的同时,也在内部创造出全新的公共空间。在这一过程中,设计师如临考古现场一般,将诸多材料和建筑结构层层剥离,建立起过去与当下的对话。
斯维特拉娜·博伊姆(Svetlana Boym)的“反思性怀旧” (reflective nostalgia)理念贯穿于项目的研究及设计过程。如恩并非简单地模仿过去事物的表象,而是试图发掘隐匿于过去的各种可能,并赋予当代文化更多的活力。如恩以两种不同的建筑语言,应对城市复杂的肌理与碎片化的形态:建筑的立面由轻盈的屏罩包裹,而顶层则以厚重、富有表现力的形式,为古城的天际留下一道别致的轮廓。
南头古城的风景日新月异。如同熙攘的巷道一般,古城中各栋楼房上的屋顶平台也是别有一番景象。简易搭建的小花园与蔬果园点缀其中,描绘出高低不一的景观。
如恩在顶层设计中采用了平屋顶的形式,并加盖了金属结构。对于空间局促的城中村而言,这一向上伸展的空间,将当地巷道生活的画幅延伸至屋顶,为公共空间带来了新的诠释。
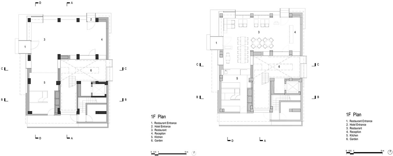
建筑入口及公共区域有意地串联并入当地的街道小巷之中,融入南头古城独特的城市肌理之中。沿着小巷可直接抵达,随后步入建筑中心,如同邀请邻里朋友来自己家中做客一般。
穿过巷道步入酒店后,访客站立于公共空间,视线随着轴线不断移至向上。原本将各楼层连接起来的楼梯井,被切割、扩宽,创造出全新的垂直庭院。切割开的建筑立面及上方的采光井,将自然光及建筑外的街景引入至建筑内部。全新的金属楼梯悬置于垂直庭院之中,访客由此到达各层客房及屋顶平台。新与旧在建筑内并存融合。
切割并非仅仅意味着破坏,它同时也是空间与意义的创造。深圳南头古城有熊酒店的设计融入了城市特征,扎根于城市的兴衰,使私人化的生活历史变得清晰可辨,追随着城市不断向前的步伐,须臾不停。不断变化的“切口”仿佛开启了一个全新的入口,可以通往过去,亦可进入平凡而奇特的当下。
项目名称:深圳南头古城有熊酒店
项目地点:广东省深圳市
建筑面积:1,370平方米
客户单位:深圳市万科发展有限公司
建筑设计:如恩设计研究室
室内设计:如恩设计研究室
主持建筑师:郭锡恩,胡如珊
主持资深协理:陈建全
资深协理:张堇盈
协理: 许建
设计团队:杨秉鑫,王典,程宁馨,叶凡,Bernardo Taliani de Marchio,贾城,唐晓棠,李杰祺,郑芃芃,周原仰,余琪晨韵,王志康,舒桐,宋贞泰,刘凯妮,黄惠子,王吕齐眺
时间:2021年
软装设计及采购:设计共和
顾问
设计管理:万科集团城市研究院
当地设计院(建筑):深圳市博万建筑设计事务所(普通合伙)
幕墙:深圳市朋格幕墙设计咨询有限公司
当地设计院(室内):深圳市标高装饰设计工程有限公司
灯光:大观国际设计咨询有限公司
景观:深圳市园冶环境设计有限公司
施工方
施工总包:深圳市西部城建工程有限公司 幕墙:上海巨诺实业有限公司,深圳市西部城建工程有限公司 室内:深圳市创宝装饰工程有限公司
钢结构:深圳市创宝装饰工程有限公司 门窗:旭格国际建材(北京)有限公司

A Work of Substance

昆明思成工程设计

简璞设计

ASAP设计事务所

共和都市

中国建筑设计研究院

布道空间设计

吉午合建筑景观设计

B.L.U.E.建筑设计事务所

本哲建筑

建筑营设计工作室

苏格SG空间设计事务所

苏格SG空间设计事务所

goa大象设计

B.L.U.E.建筑设计事务所

東木筑造设计事务所

左山右川建筑

方糖空间设计顾问

未止工作室

尺镀美学装饰工程设计

华熙万物设计

llLab.

薛今设计

GOM高目建筑

宽品设计顾问

万境设计

璜合设计

卓汉苏文建筑事务所

江河设计

无之设计

寻常设计事务所

方寸践建筑设计

咫间设计

赵扬建筑工作室