“人法地、地法天、天法道、道法自然”
—— 《道德经》
项目背景
“要附白鹤背,往访青羊踪”
MUDA慕达建筑此次设计的“宽三堂-东方人文生活空间”,位于中国四川省成都市青羊宫旁。青羊宫历史悠久,始建于周朝,原名青羊肆,后唐僖宗于蜀中避难,以此为行宫,诏改为青羊宫并致力修建。青羊宫被誉为“川西第一道观”,也是中国著名的道教宫观之一。
设计理念
“为天下谷,常德乃足,复归于朴”
设计理念来自于道家哲学经典《老子》,道家讲“谷是生之地,生之繁衍不息”。谷的内部是没有形状的,正因如此,才可以呈现出任何形状。谷的意象指向“实”之间的“虚”与“无”,使它有孕育、承载“生”的无限可能,且无法被用尽。
溪/水的意象则为“谷”带来生生不息的源泉,使谷盈,善利万物,滋养生息。谷与水的意向包含了道家对世界与生命的看法与哲学观,谷与水的关系是生动的,有生命力的,且永恒的。我们提取了关于“谷”的描述进行衍生,营造虚的“谷”,并通过“水”的手法引入流动的“溪”将其演绎成建筑空间,重建场所感和叙事感。
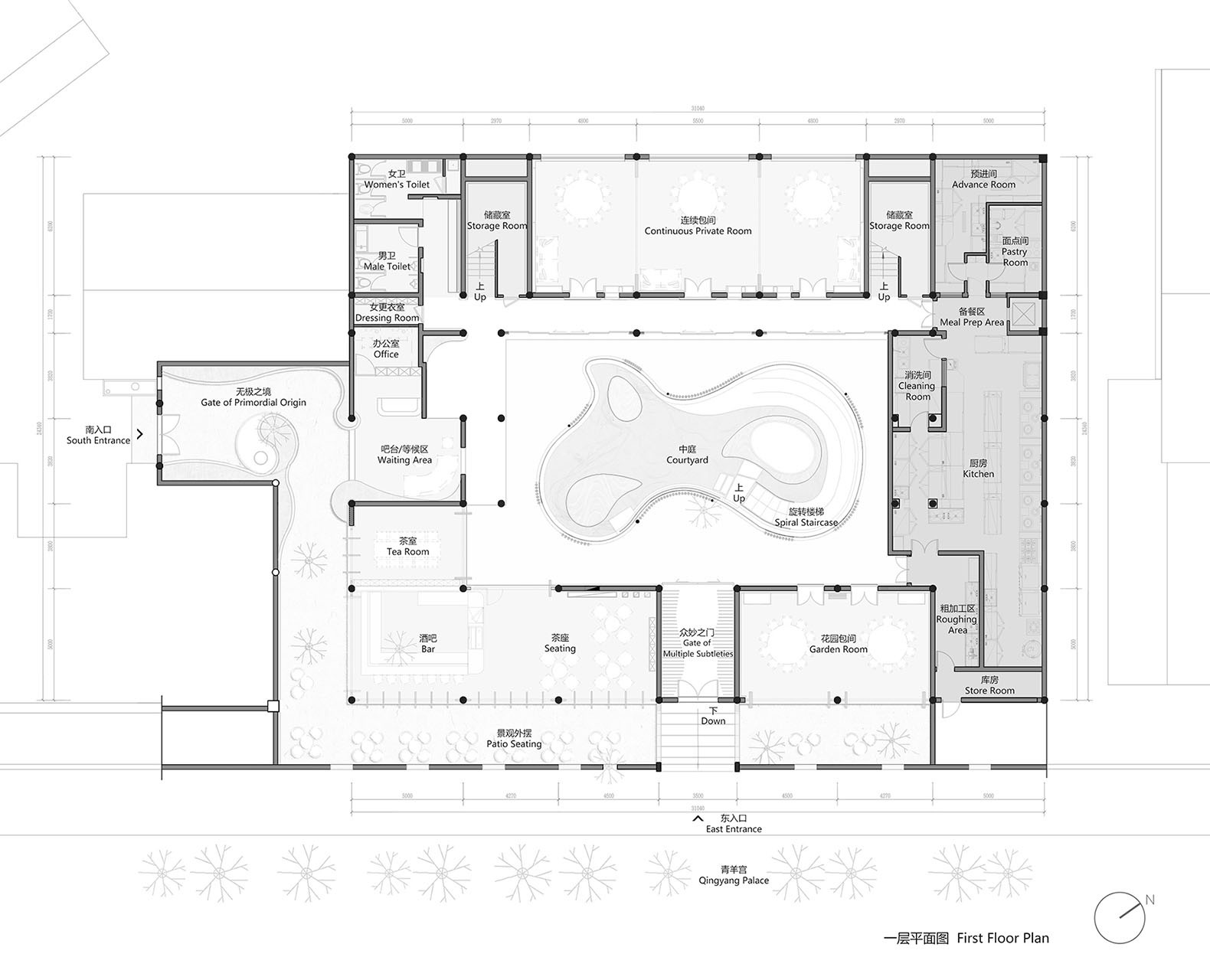
南入口
“为天下式,常德不忒,复归于无极”
项目有东南两个入口,其中南入口为社会入口,位于成都市一环路,紧邻青羊宫地铁站。作为整个场域的起点,南入口取意“无极之境”。无极,指的是混沌的先天状态,无形无相,不分阴阳,为万物之始。万物生于有,有生于无,“无极之境”也寓意整个空间的开始。
在熙熙攘攘的现代都市,缓缓推开两扇古朴的铜门,蜿蜒的红色景墙散发着浓郁的东方传统美学气息。红墙灰瓦,百年古树屹立其中,向内生长,引导着来者的视线,吸引人们到达“谷”的深处。
庭院
“人法地,地法天,天法道,道法自然”
道家以“无为而无不为”、“反者道之动”,是道之自然。庭院的设计,作为此次项目中“谷”最为核心的体现,MUDA慕达建筑以“天圆地方”为切入点,为二层增加室外平台,边缘形成一条顺滑曲线,使用红色的玻璃栏杆将其符号化,抬头便是蓝天绿树的取景框。而一层方形的庭院则进行了造景,回应“一池三山”的意向。“天圆地方”的道,“一池三山”的法,掌控了整体的自然要素。
MUDA慕达建筑希望通过不同的造景手法,将景色入画,一步一景,移步换景。中庭水景的结构钢柱序列给游人的视线进行了空间重组,实现了步移景易;弧形旋转楼梯将一楼与二楼空间串联,二楼曲线平台实现了空间的收放,提供了与青羊宫的不同观景视角。院内造景,院外借景,窗棂对景,利用传统园林的流线组织原则使游人身处其中,处处皆是体悟。
室内空间
“楼阁宜佳客,江山入好诗”
花园包间
MUDA慕达建筑希望花园包间的设计,可以与得天独厚的自然环境建立互动。包间外即是青羊宫的古塔,几百年树龄的银杏贯穿其中。空间色调以木色和白色为主,使用灵活的木格栅推拉门实现空间的通透性,内外空间相互渗透,与青羊宫景色相映成趣。
连续包间
项目中一层和二层均有连续包间,二层连续包间通过顶部坡屋顶元素塑造木纹弧顶。包间与包间通过可移动隔断来灵活划分使用,软装设计以简洁调性为主,确保空间的秩序感。木饰面与墙面深灰色软包,以及搭配的吊顶氛围灯带,使整个空间兼具合用的整体性和单独使用的独特性。
茶室
茶室的吧台空间围绕着一颗高大的银杏树,银杏树叶伸展在室内,自然与空间的界限也被打破。茶室设置三个层级的矩形镂空吊顶,空间基调以木色为主,中间区域置入发光膜作为主要照明,使空间的光氛围舒适而宁静。朝着青羊宫一侧的滑轨门可以完全旋转打开,外摆区也可作为咖啡甜品场景使用,同时也增强了室内与院外的自然景观互动。
青羊宫入口
“同谓之玄,玄之又玄,众妙之门”
项目与青羊宫仅一墙之隔,东入口作为与青羊宫的衔接,取意“众妙之门”。东入口取其幽远难辨之意,赋予原本简单直接的空间以层次,形成一条连接了历史和当代的时空隧道。一侧是底蕴深厚、举步抬眼皆是时间沉淀的青羊宫,一侧是秉承了未来东方精神、表达传统文化的当代空间,“众妙之门”则实现了时间与空间的连接。
结语
“道生一,一生二,二生三,三生万物”
道家“谷”的意象指向“实”之间的“虚”与“无”,透过这种虚空性,我们可以看到整个建筑的过去,现在和未来。它是以一个整体时间段的存在,而并非只是存在于某一个时间节点。这也正好印证了“太一、太谷“等东方哲学观,即从整体去看待和描述一个事物发展。谷本无形,空间应运相生。
项目名称:宽三堂 中餐厅-东方人文生活空间
项目地点:中国 成都青羊区
项目类型:室内设计 景观设计 建筑立面改造
建筑面积: 900平方米
景观面积:525平方米
设计机构:MUDA慕达设计
主创建筑师: 卢昀
设计团队:李爱东,吕晨宇,荣典,詹子琪,何帆,付尧
结构设计顾问:Yuki.Law
灯光设计顾问:DOPI Design
业主单位:成都宽三堂生活文化创意有限公司
摄影:形在摄影 Here Space

杭州慢珊瑚设计

阿穆隆设计工作室

米思建筑

空间里

PLAT ASIA

风合睦晨空间设计

异规设计

goa大象设计

平介设计

杭州观堂室内设计

达艺装饰

瑞兆明明室内设计咨询

阿穆隆设计工作室

素朴建筑工作室

安隆设计

大料建筑

度地建筑

木石设计

杭州慢珊瑚设计

刘道华建筑设计事务所

方糖空间设计顾问

艾洛设计

八荒设计

天作空间设计

上海禾秣建筑设计事务所

PLAT ASIA

Projject

否格设计

天作空间设计

东仓建设

SWS Group

万华产品研发中心

炘儒空间设计

刘道华建筑设计事务所

退化建筑

平介设计

杭州壹方设计

平介设计

Z.H.D.I

米思建筑

风合睦晨空间设计