 
      
         
        餐厅坐落在阿那亚北岸新社区的河边,站在开阔的河岸上,面前是平静的河水,几步之遥的身后,与热闹非凡的街区不同,极具当代美感和未来风格的建筑群静静屹立,8栋不高的白色房子错落成排,带着若有若无的虚幻美感。人们穿梭其中好奇地打量形色各异的品牌店铺和餐厅,像漫步在一个神秘而充满乐趣的多宝格里。这个餐厅则像是被小心藏在盒中的珍宝,从建筑群的各个方向看去,都能窥⻅其露出的边⻆和令人好奇的建筑细节。人们走过转⻆就像打开机关,最终发现藏在这里的,令人惊喜的美⻝。 从命名到品牌形象、建筑外立面改造到室内空间,我们与珍煲一起创造在“多宝格”中用餐的体验。
空间是收藏着宝物的多宝格
“珍煲” 的命名取自“珍宝”,设计策略以“山珍海味之意,珍宝珠贝之形”而展开,我们将古代宝藏器物的器形与质感之美提炼成为品牌图形元素,融入品牌形象和空间中。空间设计将多宝格的概念运用至更丰富的尺度。多宝格充满惊喜和趣味的打开方式,和繁复层叠的空间关系:一个尺寸为28x32cm(集琼藻)的盒子能够将几十件金贵宝物藏纳其中。通过极多的抽屉、推拉、平推和上翻结构,同时创造不同造型的窗口,在极致工艺的基础之上让开启、发现、把玩、收纳的过程极度精致且出其不意。
有趣的是,珍煲所在建筑群与多宝格具有很多相似之处:两者同样都将不同体积的体块层叠搭砌,再从中做多样化的开孔、重叠、并列、包围乃至切割,形成自由错落的空间感受。这样极端的两个尺度下的空间,拥有着相通的设计逻辑,因此空间设计希望将体块的变化应用至更多的尺度和维度中。比如建筑外立面的开孔分布随机,展示不同角度的室内外景色;窗口就像多宝格里的抽屉和门扇,框景成为了多宝格中的“宝物”。原始建筑拥有三层层高,我们选择尽可能保留空间原本的盒体错落的结构和五面通透的自然光线,将功能区域(例如厨房、糖水铺、客座区)以新建盒体的方式置入,再将这些盒体用楼梯、通道、光等元素连接起来。
新建体块的尺度和层叠关系与原始建筑的连接
空间中的区域和功能均为独立的体块,而这些体块(功能)在空间内相互的关系是设计中需要着重跟随的逻辑。例如:二层加建部分凸出原始墙面多少距离,才能给予下方用餐区舒适度的同时保持主通道的流畅性?空调藏在嵌入于顶面的盒体中,怎样在隐藏空调的同时保持盒体与原始建筑的融合?新建的糖水铺的尺度结构与原始建筑之间的关系是错位还是并列?
原始建筑外立面存在一些尺寸不一、排列分散的开孔,我们选择保留这些建筑原始开孔,并在其基础之上强调开孔的存在。开孔封闭后用统一突出的黄铜窗框定义,封整面通透的玻璃将室内外的画面框为一幅幅优美场景,这些场景就像多宝盒中的宝物。面对广场的外立面将屋檐从室内贯穿出来,创造有遮阳的外摆区域,提供开放式的长椅就餐选择,与活跃的广场气氛更亲近。
糖水铺是主体建筑的新建附属空间,从功能上也是室内开放厨房吧台的延伸。在日常用餐集中的中午和晚上之余,珍煲希望糖水铺的加入会吸引更多全时段的客人。因此,我们将糖水铺直接面对主广场,顶面设计超大的木质斜蓬,充分展示品牌氛围的同时,成为人们绝对不会错过的视觉中心。
富有节奏感的空间动线,带来探索和发现的乐趣
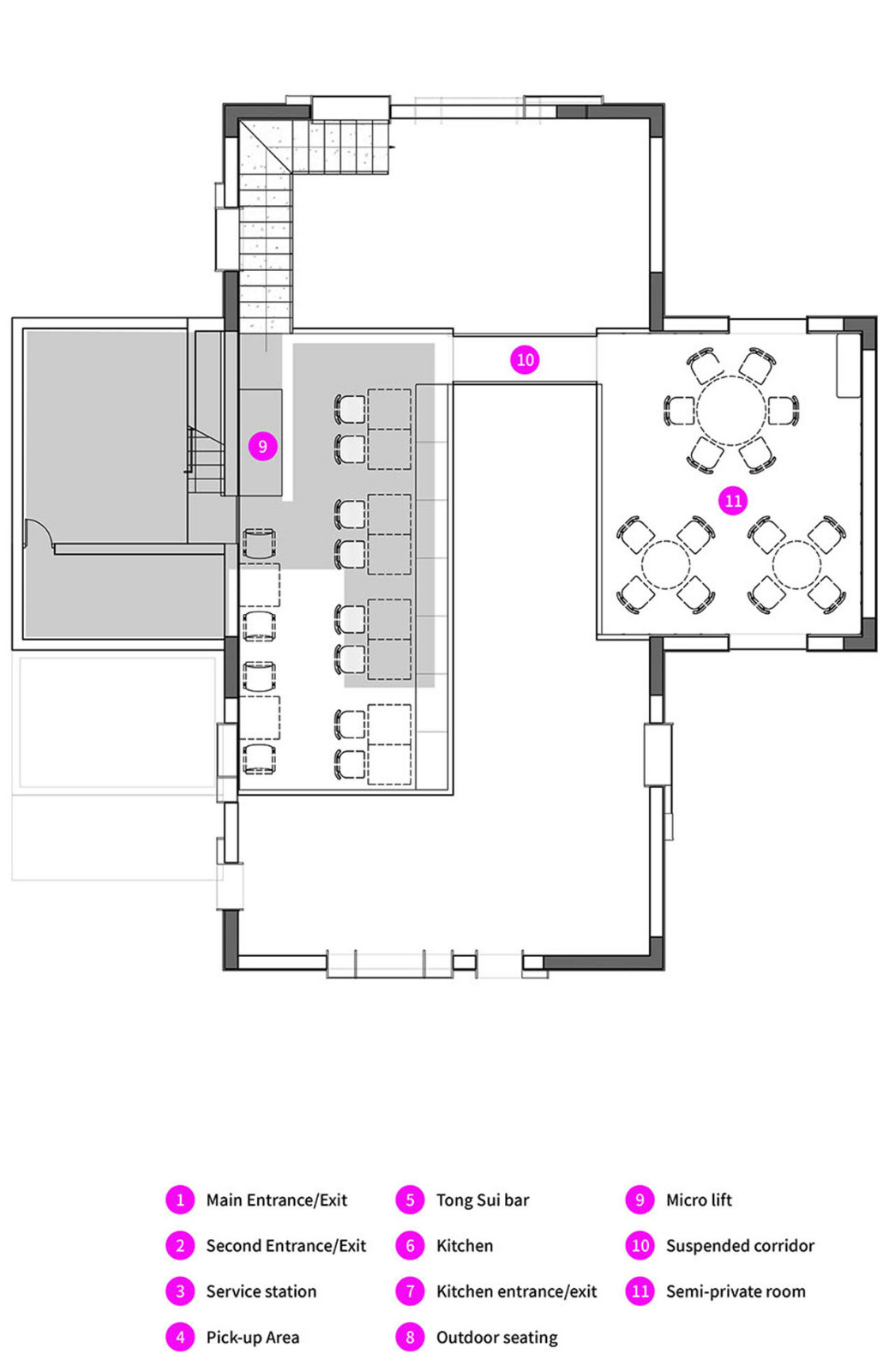
室内空间跟随原始建筑天花高度变化,自然地分为三段递进,从而营造不同的用餐氛围。入口空间小、天花高,桌椅在这里小巧灵活,适合用作轻松的下午茶或晚上喝一杯的区域。空间中段因为天花最矮,因此适合呈现最紧凑和亲密的用餐环境,火热的开放厨房和固定的多人卡座,形成浓厚、富有烟火气的氛围。来到空间最内侧,天花瞬间挑高至三层,三个方形天窗将一天8小时的阳光传输进室内,让这个区域无比地敞开和通透,因此这个区域的就餐氛围也是公共和开放的。
来到二层,声音一下安静了下来。二层由两个独立空间组成,两个空间在建筑中段互相对望,一边是一上楼梯来到的较为安静的双人用餐区,通过一个悬空的连廊,进入到一个嵌入原始建筑结构的木盒,只有朝向挑空的方向是半开敞的,因此放置三组圆桌为聚会而用。为了给予这里更多私密性,我们将窗用木板半封闭并且可以折叠开启,墙面增加吸音的软木板,增添静谧、温馨的气氛。
第三段空间拥有最舒适的高度和天窗自然光线,我们在挑高空间顶部嵌入第二个木盒子,并增加斜梁,呼应延伸至外摆空间的屋檐和二层悬挑的结构,同时作为灯具悬挂和隐藏的结构。倾斜的木梁为原本方正、规则的建筑体带来有趣和灵动的感受。
透过建筑四周通透的窗,和空间内叠积的开放体块,温暖的灯光、热闹的聊天、器皿轻碰的声音、和煲仔的滋啦香气自由地充满整个空间。随后从窗隙蔓延到户外街巷里,留下一些吸引人们寻找珍宝的线索痕迹。
项目名称:珍煲 GEMPOT
项目位置:北戴河阿那亚·雀跃镇
项目类别:餐饮空间设计|品牌形象设计
设计机构:Projject
项目团队:张可儿、王一之、史华熙、孟伟、巫奕南
完工时间:2024.7
主要材料:1. 肌理漆 2. 做旧黄铜 3. 橡木、胡桃木
空间摄影:杨俊宁

杭州慢珊瑚设计

阿穆隆设计工作室

米思建筑

空间里

慕达建筑

PLAT ASIA

风合睦晨空间设计

异规设计

goa大象设计

平介设计

杭州观堂室内设计

达艺装饰

瑞兆明明室内设计咨询

阿穆隆设计工作室

度地建筑

木石设计

杭州慢珊瑚设计

刘道华建筑设计事务所

方糖空间设计顾问

艾洛设计

八荒设计

天作空间设计

上海禾秣建筑设计事务所

PLAT ASIA

否格设计

天作空间设计

东仓建设

SWS Group

万华产品研发中心

炘儒空间设计

刘道华建筑设计事务所

退化建筑

平介设计

杭州壹方设计

平介设计

Z.H.D.I

米思建筑

风合睦晨空间设计