邱宅在青浦一个别墅区内,是其中一个小户型,别墅的原始平面显示出客厅与主体空间分离,上一任屋主后来又把它们之间的小院落缝合进了屋宅,但由于原始结构墙体的存在,虽然有着玻璃顶棚,但这里依然成了一个不能被有效利用的昏聩场所。同时,客厅东侧朝内院有一外扩玻璃房。
房子居于基地正中,庭院被推挤成四条狭长的绿地,又因建筑内部墙体的隔绝,使居室的内外都缺少一种爽朗通透的感觉。
家宅如园林
如果把家宅设想为园林的扩大,园林是家宅的外延,那么建筑内部的空间格局就会呈现出与园林同质的倾向。而要达成这样的状态就需要摧毁房子原有的空间格局,重铸新的机能(programing)和生活场景。
首先是把底层原先零散的家庭生活功能规整然后推往两边,留出一个贯通南北的大空间,这可以被当作一片内部“花园”,房间外的公共生活领域。这个“花园”中,遗留的结构柱和新生的加固柱围合形成了一个虚空的中心,犹如在大花园里放进了一个“亭子”。
这个“亭子”就在原先小院落的位置,有着顶光,是个光形成的“光亭”。
业主是三口之家,男主人自己拥有一家公司,女主人居家,孩子在上小学,另外有双方父母会过来暂住。基于家庭结构我们对于这个“光亭”有三种考量,一是家庭室,二是小孩的游戏活动室,三是书房。考虑到家庭氛围的营造和男主人在家庭中的支柱地位,经过讨论我们和业主最终决定做一个光之书房。它在空间格局中是房子的物理中心,它的功能性使它也成为了家庭在精神意义上的中心。
居游
在苏州园林里,路径和视线常有分离与非同步的现象,我们从一点能看到另一点但却往往需要绕行,绕行过程中借着墙体的遮蔽和窗洞开启的交互设计,却能使视线穿越,获得丰富的场景和空间层次,这一点在留园有极为充分的体现,非常令人着迷。
在邱宅里我们也希望能有路径和视线的更为有趣的设计,为业主营造出更有层次的居家氛围。
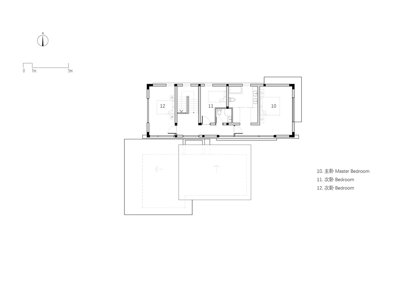
玄关是一个独立而明亮的空间,入户正对落地玻璃窗,其后(南侧)是一个户外小庭,而这个小庭东面也是落地玻璃窗,户内和玄关之间的视线借此可以互通;
玄关东侧是真正的入户门,门上有一圆形窗格,家人可通过窗上投影感知访客来临。
光之书房位于玄关和过道形成的入户水平轴线上,为了保持“亭子”式的虚空,书房的西东南三面都做成了可开启的窗格,当打开时,人的视线就可直接穿透,看到花园的另一侧。正是因为书房的存在,在视线穿越的路途上呈现出了丰富的生活内容和空间层级。当它关闭时,就会成为一个不受干扰的阅读空间。有了这样的设置,家庭成员之间就有了选择余地,在生活当中与家人保持互不干扰或者视线陪伴。
为了获得室内光线更好的品质、更多的层次和明暗交替的节奏变化,在这个入户视线通廊上我们做了精心布局:先是明亮的玄关,打开入户门后视线经由压低的昏暗的通道到达书房外壁,而书房因为材料和维护状态的变化会呈现出两种不同的光感。
书房是木头和长虹玻璃组成的半透格子,实质上是个光的容器,因为玻璃的特性,窗格关闭时内部光线被弱化,透射出朦胧光感,而这个光感会随着太阳的强弱和不同时段出现丰富的变化。当它的窗格打开时它又是个高耸的明亮的光屋,是一层最明亮的地方。
接着视线穿过书房的门,门外的家庭室的光线又因屋顶黯淡下来。
视线终点来到户外花园,明媚灿烂。
光之书房的存在,使整个户内“花园”可以呈现出漫游式的路径,家庭成员的活动路线有了更多的可能性。
漫游的体验也经由上下层的交通联系和每层房间的分离布局得到了更多的提升。原有布局中夹缝求生的双跑楼梯被释放到北面,形成一字型,有了更多的采光和风景;一二层离散式布局的房间和套内空间犹如散布在花园的一座座独立小房子,之间充满了空气和阳光,距离的疏远反而获得了更轻松的氛围。
空间的温度和情绪
通过布局的重新梳理,基本上主要的生活空间甚至主卧室卫生间都有了南向的采光,家宅中呈现出更为明亮和温暖的气质。
主要房间都是白色涂料粉刷,作为空间的底色。胡桃木作为地板和家具的主材是业主作为中年人的选择,深沉的木色与白墙有着强烈对比,在阳光下也会有很好的暖色表现,有着温馨的氛围营造能力。
长虹玻璃的垂直肌理和半透性非常符合我们对空间表情和层次的要求,恰当地表达出了家庭生活的距离感,塑造出了含蓄的氛围情绪。
项目名称:园宅
项目类型:建筑改造
项目地址:青浦区沪青平公路1517弄, 上海市
建筑面积:335.7㎡
设计机构:MONOARCHI 度向建筑
项目设计:宋小超,王克明
设计年份:2019-2021
完成年份:2022
设计团队:兰馨,卢笑,周沁怡,方媞媞
合作方:结构设计: 上海唯乙建筑设计有限公司
景观设计: 陆雨婷
施工方: 铭严建筑设计(上海)有限公司
客户:邱先生
材料:门窗:上海日朗门窗有限公司
外墙保温:上海墅恩建筑装饰工程有限公司
暖通设备:上海匡迪机电系统集成有限公司
厨房橱柜:德国柏丽橱柜
木家具:湖州久凯智能家居有限公司
面砖:意大利IMOLA陶瓷
摄影版权:朱润资,Chaos

建筑营设计工作室

共生形态设计

META-工作室

空间进化

亼建筑

众建筑

陶磊建筑事务所

鲍威建筑工作室

旭可建筑

都市实践

蓝城设计

众建筑

大台阶建筑

土驻设计事务所

设计秩序

六识研社

伍米尺建筑设计事务所

个个世界

得空营造社

都市未来设计工作室

KAI建筑工作室

众建筑

得当设计

超城建筑事务所

默认建筑工作室

鳞见设计工作室

个个世界

Wutopia Lab

B.L.U.E.建筑设计事务所

KiKi建筑设计事务所

纬图设计

区兆坚建筑及工程设计顾问

创研空间