 
      
         
        静园是一栋花园洋房,坐落在车水马龙的上海万航渡路上,毗邻静安寺核心商圈。2019年底,当业主带着改造这栋老房子的想法找到我们的时候,离新冠肆虐中华大地已然不远,在随后一年的设计改造中,疫情两个字从未离开过与业主的设计讨论,这让项目天然地带有某种特殊性。
当然这个项目的特殊性远非如此,这是一栋老洋房的改造,更确切地说是一栋老洋房销售模式的实验。业主想通过设计改造,为这栋老房子在其随后的出售中争取更大的市场价值和溢价空间。所以静园的改造实际上是一个产品的打造,而这个房子的实际使用者“虚位以待”,也让这次改造设计变得略微抽象,我们只能假想谁有可能成为这样一栋大宅的主人,而这样的“假想”也恰恰成为这个设计最有趣的地方,它没有任务书,我们需要站在原点,跨越从0到1的挑战。面对这样一个开放的命题设计,我们采用了一种“开放”的策略,以开放的心态和手段,营造一栋“不被绝大多数买家抗拒”的房子。
对于一个需要落地的设计任务,却又没有明确的使用需求,设计的操作实际上需要格外小心,因为作为设计师的个体经验会时不时地霸占整个设计推导,打破主客观之间的平衡。整个设计过程其实是不断地在“我觉得”和“市场觉得”之间肉搏的过程。
开放的平面:实现多义的场景可能
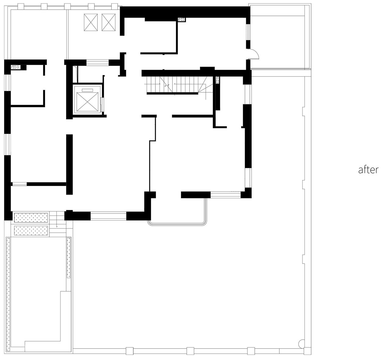
因为无法获得具体的生活需求,功能布局的灵活性和模糊性,似乎成了一个必然的应对方式。实际上未来生活场景的多义性也已经成为一种重要的生活方式,房间的确定功能被空间的灵活场景所取代。
我们在一层将客厅、餐厅以及西厨以敞开的方式连通,变成一个可分可合的公共空间。
在二层我们将中央的房间变为起居室,并与二层露台相连,形成一个家庭室。
在三层干脆破除了房间的概念,舍弃了衣帽间的配置,创造了一个横贯东西的“大主卧”,如果未来被用作办公,也能轻松应对。
即使面临着对于结构的大幅改造,我们也坚持这个平面多义化的操作,因为“开放”是一个灵活的策略,它实现了具备包容度的空间可塑性,在具象与抽象之间形成微妙的平衡,以模糊的、松散的、留白的方式,创造了很多延展的“接口”而非“结果”,让更多被假想的生活和工作在这里成为可能。
开放的立面:尽一切可能拥抱阳光和户外
老洋房是上海开埠后中西合璧的特殊产物,上个世纪二十年代租界扩张后又达鼎盛,这种独立式的花园住宅在如今的上海是一个神秘而尊贵的存在。不过虽说有如此的贵族血统,但毕竟还受限于上个世纪初的建造水准,砖木的结构体系使其面临老房子挥之不去的劣势:采光差、空间封闭。因而将立面打开去赢得更大的采光和景观面,也成了这次“开放”设计策略中重要的一环。
一层客厅原本的窗洞墙立面体系被打开,成为大面积的落地玻璃移门,与院子的关系更加亲密,花园作为老洋房的核心资产,在这样的亲密关系中被更加充分地感知和体验。餐厅落地窗外设计了水池,与保留的桂花树一起,成为餐厅的一幅对景。
整个改造中,上海老洋房标配的格子老钢窗并未出现在最后的落地方案里,而是采用了铝包木的大幅玻璃窗,因为我们纠结了一番,还是觉得一味标签化地去还原老洋房的文化符号,而牺牲了室内外景观和视野的通透性,是一件得不偿失的事情,让我们欣慰的是,结果的呈现也获得了大多数前来参观的潜在买家的认可。
开放的顶面:充分展现迷人的历史表情
老洋房的价值除了先天的地段优势,多半是凝结在其历史积淀里,买一栋老洋房实际上更像是收藏一件老古董。我们的改造一直有个设想,即改造后的房子要成为一个博物馆、一本回忆录,因而整个设计的“策展”属性很重。从这个角度切入,老房子的顶面实际上具备丰富的“可策展性”,经年累月历经多次装修,而顶面却一直被尘封于花样繁多的吊顶里,虽说失去了话语权,但也因此免遭打扰和侵袭。
夜里当室内灯光亮起,静静地站在花园的水池边,抬头往屋里看,可以看到我们对于顶面的不同处理:一层的吊顶用三角的棱状结构对老的梁架做了暗示性的含蓄表达,灯带和窗帘盒也都被纳入这套体系中;二层起居室,顶面的梁架被完整地暴露,甚至小心翼翼地保留了一些残破的缺口,那都是有故事的历史表情,值得被后人多看一会儿;三层的顶面因为屋面木梁架过于复杂,大多数被吊顶封装了起来,但在中间位置选择将干净利落的双坡屋面结构暴露出来,中央的主梁也以切片的方式被呈现,透出一股静态的历史张力。
天窗也成为了开放顶面的重要方式,屋面所开启的两个天窗,一个看天空,一个看烟囱,在日常的生活中,都是历史景观的戏剧化呈现。
开放的剖面:实现系统技术的置入
我们可能已经不得不面对一个现实 ,就是光光守着历史表情怀想从前,是无法满足当代生活对于便利性和舒适性的理性需求的,而这也成了横亘在老洋房改造前的一个技术挑战。我们就好像做精密的外科手术一样,将老洋房脆弱老朽的体肤剖开,小心翼翼地将中央空调、新风、净水、地暖、电梯、全屋智能等设备系统置入这个已经耄耋之年的老房子。这是一件颇有难度的事情,当然也值得冒险,因为这脱胎换骨,老房子能如获新生。
站在院子里,操控手中的手机APP,眼前这栋老洋房便“听话”地被操控着灯、空调、窗帘、遮阳、监控……这是一种极具冲击力的智能生活体验。这个剖开和置入的动作,实际上我们给予这栋老房子的,是它承载未来生活的能力和底气。
2020年底,历时9个月的工程,房子的改造也算颇有效率地完成。在这疫情肆虐全球的一年,房子如同整个人类世界,经历了一次自省和蜕变。在这一场蜕变中,我们不主张“修旧如旧”的完全还原,也不提倡“改头换面”的完全颠覆,而是一种承上启下的交接,这是一种开放的状态,一本续集的开始,待有缘人提笔接着往下写。就好像站在三层露台上,朝南看到的烟囱与摩天楼,那一幕历史的交接与对话,温暖而深刻。
项目名称:静园JING HOUSE老洋房改造
项目地区:上海静安区
建筑面积:室内466平方米,室外200平方米
空间类别:花园洋房住宅
设计方:得当设计 DEDANG DESIGN
建筑及室内设计:王俊锋、季静凝、蒋文超、刘章进、梁宝垒
结构设计顾问:王柳
施工图设计:苏州再造创意设计有限公司
施工单位:上海朗观装饰设计工程有限公司
工程项目经理:宋健
建筑摄影:沙鹏

建筑营设计工作室

共生形态设计

META-工作室

空间进化

亼建筑

众建筑

陶磊建筑事务所

鲍威建筑工作室

旭可建筑

都市实践

蓝城设计

众建筑

大台阶建筑

土驻设计事务所

设计秩序

六识研社

伍米尺建筑设计事务所

个个世界

得空营造社

都市未来设计工作室

KAI建筑工作室

众建筑

超城建筑事务所

默认建筑工作室

鳞见设计工作室

度向建筑

个个世界

Wutopia Lab

B.L.U.E.建筑设计事务所

KiKi建筑设计事务所

纬图设计

区兆坚建筑及工程设计顾问

创研空间