概述
本案的设计旨在为NOWWA咖啡品牌提供一个在不同店态下具有识别性的空间系统。MOC以基础的cube形态,演变出具有识别度的空间模块,为顾客带来富有趣味性和多功能性的体验。在与不同环境融合的同时,强化与街区的联系,为顾客创造一个提供愉悦“停顿”的场所。
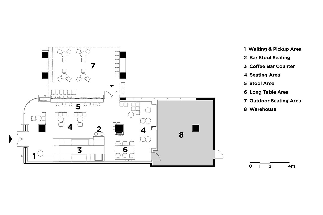
店态兼容性规划
空间形象系统的规划,MOC思考的重点是空间模块的设置能够兼顾不同的店态。nowwa的店态不仅覆盖了商场,也包含社区店和办公大堂等多种类型。
不同的店态面对着不同需求的人群,因此在符合品牌性和空间识别性的基础上,我们还需要针对人群的需求细化匹配不同店态的细节。
空间元素的多样化运用
MOC选择了一个基础的cube形态作为空间基础元素,通过不同的组合形式演变为进门造型、吧台吊楣、墙面陈列架、活动家具等……充分的满足了不同应用场景的需求。
强化与社区的联系
针对社区店,MOC希望创造一个与街区更强的联系,为顾客提供一个日常生活中愉悦的“停顿”场所。因此我们通过可开启的折叠窗连同室内外,强调内与外的连接与对话。
空间场景考量
同时,MOC引入温暖的色调和木质元素,强调温馨感。在地面处理方面,设计师将户外道路和绿道的感受融入室内。座位区域采用小块瓷砖,呼应绿道植草砖的印象,与室外环境形成一种联系。而通道区域则采用单色瓷砖铺贴,打造具有区域感丰富的场景。
吧台区域设计:办公大堂店态的延伸
橙色的cube纵向叠起,成为吧台区域重要的识别元素。延长的吧台高凳区,则以cube框架的形式与吊楣的体块形成呼应。橙色和白色的组合明亮活泼,简约的线条不失严谨,这一组合后续将作为办公大堂店的模板使用。
施工效率与环保
值得一提的是,MOC选用了快装的阡陌卷材以适应快速的施工需求,并选用了环保的木丝板材和肌理涂料,既能降低声噪同时减少对生态环境的影响。
项目名称:挪瓦咖啡店铺形象系统
业主:NOWWA
设计机构:
主持设计:梁宁森,吴岫微
设计管理:杨振钰
设计团队:梁秋红,吴心鸿
主材:瓷砖,阡陌板,肌理涂料,木丝吸音板,烤漆金属板,超白玻,木饰面板
设计周期:2023年1月-2023年4月
完成时间:2023年6月
摄影:张红旗

飞界灵感设计有限公司

简线建筑

静谧设计研究室

安森设计事务所

深点设计PDD

锦莳设计

栋栖设计

壹悦设计

DA STUDIO

不迫工作室

平介设计

平介设计

平介设计

odd

兑话设计

尚水希木乡村振兴工作室

慕达建筑

白菜设计

苏格SG空间设计事务所

山地土壤室内设计

KiKi建筑设计事务所

里外工作室

未见筑设计事务所

川岛雅矢建筑环境设计室

B.L.U.E.建筑设计事务所

木石设计

朴野设计

即时设计研究所

衡建筑

未无设计

都市游牧

锵设计

舍近空间设计事务所

杭州慢珊瑚设计

753studio

梓泉建筑设计

屋已设计

中和营造工作室

观念建筑

借光建筑空间设计

拙讷建筑设计事务所

Studio COLY

另外建筑

另外建筑

另外建筑

red design

斗西设计

本哲建筑

大舟建筑设计事务所

未知设计事务所

文青设计机构

OFFICE AIO

现象设计

大栋建筑

春田空间设计工作室

LAE Design

知一设计研究室

未来以北工作室

平衡空间设计

中和营造工作室

所在设计研究社

耕井伫建筑工作室

秩合予美空间设计