当老建筑与新商业碰撞,将“市井”和“精致”藏在朱红、青瓦之中。
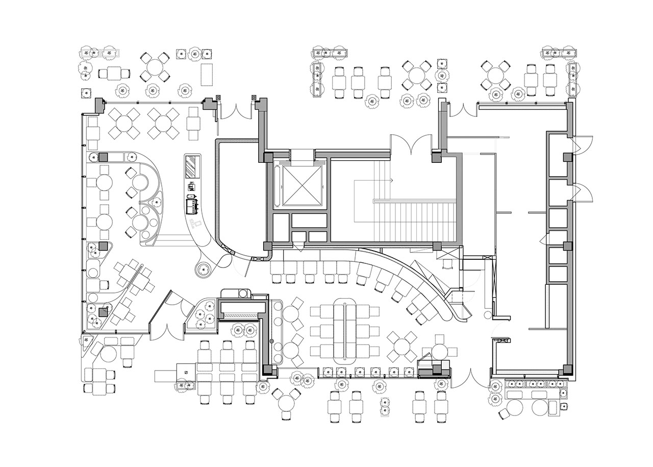
我们以“客厅”为概念构建设计核心,为gaga新店注入松弛感和烟火气。通过多条漫游式动线连接户外与室内,贴合“合院式街区”的商业氛围。
客厅开门迎友
项目落于北京中轴线上,屋檐下藏着胡同生活的闲适与烟火。餐厅入口分别位于南、北两侧,并设置面向街区的外摆区域,提供灵活、丰富的就餐体验。
我们在注入现代设计元素的同时,保留四合院门头、屋脊、垂花门等传统建筑构件,展示北京老城特色风貌。
餐厅北侧可以呈现完全打开的欢迎界面,半开放式庭院回应街区的开放与亲和,削弱传统商业立面的严肃性。
市井与精致并存
餐厅室内用曲线划分布局,弱化边界和空间棱角。增强空间灵活度与动态节奏,同时体现了品牌的商业气质和受众画像。
利用原始地形高差,我们在餐厅西侧做局部地面抬高处理,营造错落变化的空间感受。
天花造型呼应曲线布局,弧形悬挑引导视线,建立天花与地面的内在联系;同时可以暗藏空调设备与管道。
吧台与卡座贴合平面弧线布局,成为餐厅核心造型,贯穿整个空间。弧形墙面采用橘红色夯土肌理漆,营造活泼、亲近的就餐体验。
室内桌椅布局延续外摆区域,丰富多样。结合内渗的自然采光和景观绿植的搭配布置,将室内空间“庭院化”,弱化内外边界。
鲜艳的颜色对比和金属装置点缀为餐厅增添几分时尚与俏皮。利用不同颜色和材质的肌理质感划定区域边界,呈现细腻区分。
餐厅整体氛围协调统一,我们希望保留区域差异性的同时,提升空间的细节质感与生活温度。
项目名称:gaga大吉巷店
地点:北京
面积:室内268㎡,外摆133㎡
设计公司:odd设计事务所
设计团队:冈本庆三,出口勉,刘静怡,曹博,张子清
竣工时间:2025.08
主要材料:夯土肌理漆,木饰面,艺术瓷砖,水磨石,刨花板,金属
摄影:gaga

飞界灵感设计有限公司

简线建筑

静谧设计研究室

安森设计事务所

深点设计PDD

锦莳设计

栋栖设计

壹悦设计

DA STUDIO

不迫工作室

平介设计

平介设计

平介设计

兑话设计

尚水希木乡村振兴工作室

慕达建筑

白菜设计

苏格SG空间设计事务所

山地土壤室内设计

KiKi建筑设计事务所

里外工作室

未见筑设计事务所

川岛雅矢建筑环境设计室

B.L.U.E.建筑设计事务所

木石设计

朴野设计

即时设计研究所

衡建筑

未无设计

都市游牧

锵设计

舍近空间设计事务所

杭州慢珊瑚设计

753studio

梓泉建筑设计

屋已设计

中和营造工作室

观念建筑

借光建筑空间设计

拙讷建筑设计事务所

Studio COLY

另外建筑

另外建筑

另外建筑

red design

斗西设计

本哲建筑

大舟建筑设计事务所

未知设计事务所

文青设计机构

OFFICE AIO

现象设计

大栋建筑

春田空间设计工作室

MOC DESIGN OFFICE

LAE Design

知一设计研究室

未来以北工作室

平衡空间设计

中和营造工作室

所在设计研究社

耕井伫建筑工作室

秩合予美空间设计