尺厘设计工作室对位于上海浦东区的联排别墅内办公空间进行了改造设计。设计理念基于小尺度空间的原型框架,并运用垂直式相互作用的设计手法,巧妙地实现了现有结构与新空间的有机融合。
场地
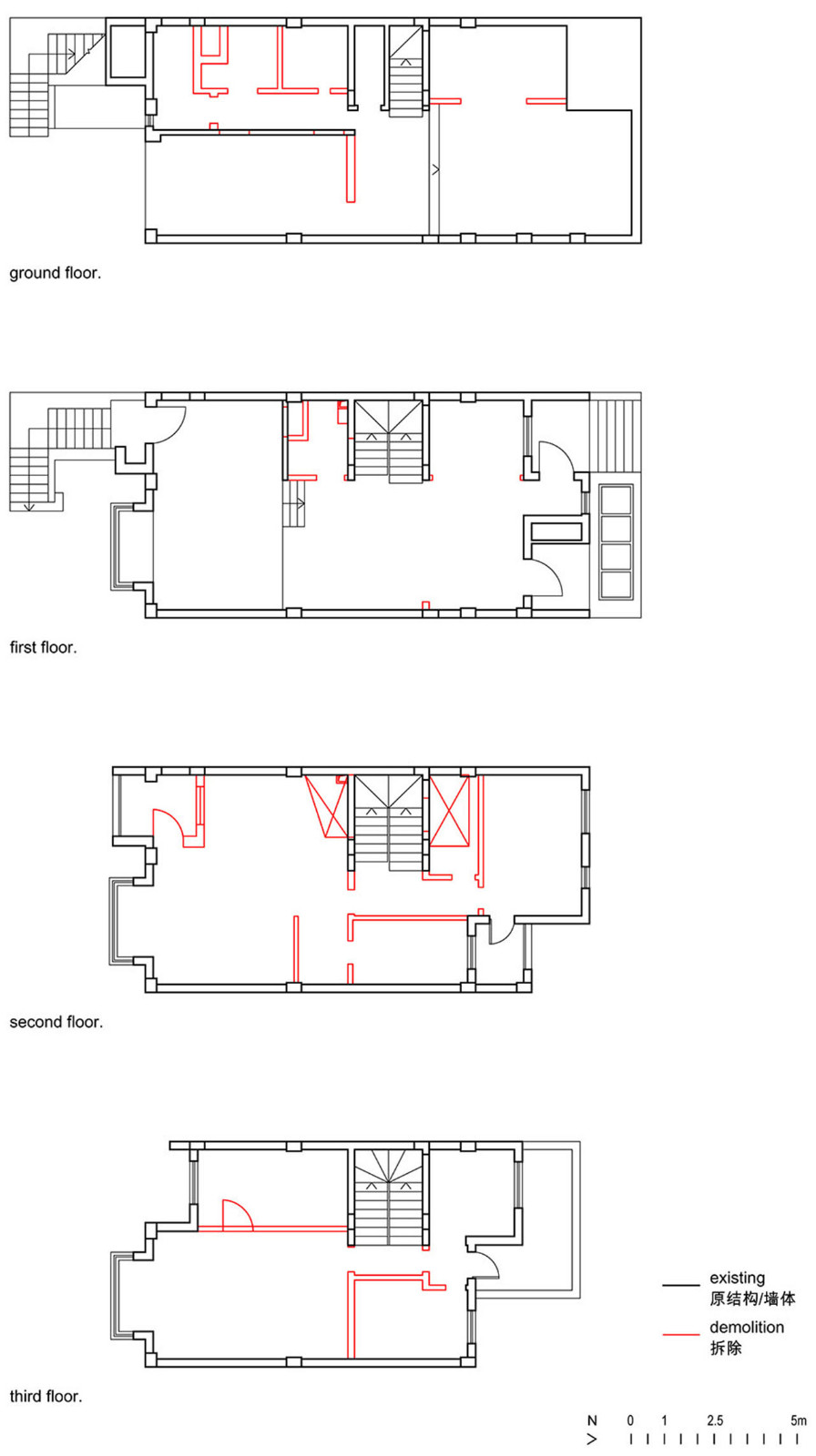
现存的联排别墅共有四层,面积300有余。南北朝向,位于一片居民区内。改造之前,室内的采光仅依靠原有的狭小窗户实现,昏暗潮湿,而业主已在如此的环境中办公近十年。为提升办公环境,业主希望对空间进行全面改造,最终成为集办公、配套服务和集体住宿为一体的多功能空间。
空间布局
基于别墅原本平面规整、格局紧凑,层与层之间依靠位于中间的楼梯连接的构造,为促进自然光线的进入,我们充分利用项目南向最佳采光这一优势,适度拆除或移位原有墙体,并选择拆除二层部分楼板,为室内引入更多光线,改善空间品质。
为了平衡流线和功能的连接,同时满足办公和居住需求,空间的私密性随着地面层向上不断加强。一层主要规划为办公区域,其中开放式办公与独立办公空间通过金属框架的玻璃门分隔,实现恰到好处的私密性。
金属构件
我们对现存的墙体进行了部分切割,保留空隙,通过光线串联整个空间,同时结合不同色彩的玻璃金属门框,为各区域赋予了独特的功能属性。金属构件作为“媒介”,有助于视线和光线的互通和传递,实现内部与外部、空间与空间的互动和对话。
二层作为经理室和财务室,对空间私密性的要求较高,我们拆除了部分楼板,创造出更高挑高的空间,实现了三层与一层之间的垂直互动,打破了原有楼梯结构阻断南北空间的局限,使得高楼层的自然光线能够通过挑空、门洞和玻璃,逐层折射和延伸,不仅为整个空间引入了充足的光线,也为空间增添了丰富的层次。
根据业主的使用需求,三层的集体住宿空间布局设计中主要关注在公共流线的规划上,确保整体空间的连续性。
以服务功能为主的地下层,我们对原有入口进行了倾斜退让,旨在保留原始结构的采光面积。同时利用北向原有的采光天井,将更多阳光引入干净明亮的会议/就餐区,让人在地下空间时也能感受到室外的环境和天光变化。
项目名称:宏卿办公改造
项目类型:办公,集体住宿
地点:中国上海 浦东
面积:300 m²设计:尺厘设计工作室
完成时间:2024年1月
摄影版权:朱润资

杭州匠研组设计事务所

杭州慢珊瑚设计

将究建筑设计事务所

久舍营造工作室

寻常设计事务所

DPD香港递加设计

壹同创意

自由思考

共向设计

尚辰设计

无象空间

图岸建筑设计

红山设计

慧空间设计机构

KAI建筑工作室

GENSLER

美格设计

进化时代设计事务所

新派空间设计

c.dd有限無界

不止设计

合尘建筑

灰空间建筑事务所

堺工作室

几言设计研究室

一二三设计有限公司

Studio 10

知物设计

奕檐建筑

回应建筑工作室

壹舍室内设计

OAOA Studio

鲸鱼建筑设计事务所

里外工作室

里外工作室

杭州慢珊瑚设计

郦文曦建筑事务所

上海问和答

黑白木设计工作室