ANSAN Office + 项目坐落在绍兴的一栋现代风格建筑的顶层,整栋大楼作为ANSAN Hotel 所在地。由大犬建筑设计事务所为其顶层打造ANSAN酒店管理高层团队的办公空间,主要用于接待洽谈、办公以及休闲。由此,设计师希望打造一个具有酒店品质的办公及接待空间,通过品质感的空间展现ANSAN团队对于酒店品牌细节的追求。
在设计概念上, 大犬团队并未将酒店和办公视为矛盾对立的两个空间,而是将其视为一种解决途径:即酒店质感与办公室功能的相互融合。从接待空间,到用餐空间,到休闲空间,再到办公区域。设计师在动线上通过开放式环形廊厅和景观廊道的公共动线,用以连接空间中不同的功能需求,并以此高效抵达不同的使用场景当中。
沉静与质感
由酒店内部电梯上至顶层,电梯厅里暖色的光感开启了整个酒店式情景办公的开始。公共空间大面积运用了普拉达绿大理石,巧妙的与古铜色哑光金属,以及暖色木质和柔和的间接照明进行组合,营造舒适,沉稳低调又不失雅致的空间氛围。
经由细长走廊抵达的环形廊厅,它作为多重功能空间的交汇点,开放式的功能布局让动态与静态场景相互交织,形成了该层的等候与交流空间。环形廊厅创造多向开放的“交通中心”, 强化不同空间之间的连接。
餐厅与休闲区由环形廊厅的左右两侧进入,人们可以在这里开展商务活动,享受私宴与品酒的休闲乐趣。它们作为酒店公共功能的延展区域,结合了酒店配套功能的特质,并面向内部与外部人群开放,实现空间最大利用率。
餐厅延续空间的材质肌理,增加更多的木质细节并搭配黑白花纹壁纸,将私宴的尊崇、私密、社交属性,与公共区的舒适、雅致相结合。
休闲区采用间接光与同色系的材质应用,为该空间带来更为安闲自在的静谧体验氛围。同时,卫生间等其他附属空间延续了公共区域的材质色调,形成不同空间的整体视觉。
舒适与雅致
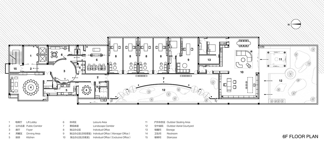
改造成半弧形的廊道与户外庭院结合,它融合了室内外的空间特点。地面户外条形砖的应用与多组中轴旋转门的开启与关闭,实现室内外场景的自由变换,带来户外般的空中庭院体验。一侧墙面整合了通往6个独立办公室的入口门,木质格栅与木质门的同色材质使用,塑造空间的整体性,干净的竖向线条为廊道带来细腻的立面节奏变化。
独立办公空间融合了办公,洽谈,茶桌,陈列吧台等多重功能。空间从功能与美学两方面,诠释办公场所的格调。空间上,金属、石材、木质、皮质、布艺等丰富材质的精确运用,结合家具上不同色度的灰棕色丰富层次,强化现代与品质办公空间的感官体验。
窗外微妙的光线向室内流动,微风穿过垂坠的百叶帘,让光影自由穿梭其中。细腻的光感,为空间带来更为原始美感的同时,也为办公日常增添几分松弛。在这里,空间引导ANSAN团队惬意的在各个空间中处理酒店的日常事务。
项目名称: ANSAN Office +
项目地址: 浙江省绍兴市越州大道87号
设计面积: 1000 平方米
项目委托: 自宜安辰酒店管理公司
空间设计: 大犬建筑设计
主创设计: 辛晋 胡志红
设计团队: 龚龙琳 何朝阳 王一赫
施工单位: 浙江省绍兴九月装饰有限责任公司
设计时间: 2022-2023
完工时间: 2024,08
空间摄影: Metaviz Studio

杭州匠研组设计事务所

杭州慢珊瑚设计

将究建筑设计事务所

久舍营造工作室

寻常设计事务所

DPD香港递加设计

壹同创意

自由思考

共向设计

尚辰设计

无象空间

图岸建筑设计

红山设计

慧空间设计机构

KAI建筑工作室

GENSLER

美格设计

进化时代设计事务所

新派空间设计

c.dd有限無界

不止设计

合尘建筑

灰空间建筑事务所

堺工作室

几言设计研究室

一二三设计有限公司

尺厘设计工作室

Studio 10

知物设计

奕檐建筑

回应建筑工作室

壹舍室内设计

OAOA Studio

鲸鱼建筑设计事务所

里外工作室

里外工作室

杭州慢珊瑚设计

郦文曦建筑事务所

上海问和答

黑白木设计工作室