白鹭洲公园位于厦门市中心,是重要的市民休闲场所,环绕公园的筼筜湖原与海相通,现为内湖。
项目场地正位于临湖坡地之上,两个单体呈L形布局,共同面对平台上的小叶榄仁及筼筜湖景,四周植被环绕。这样的场地条件带来的是城市尺度的包含景观、建筑、室内的多重空间。
我们从西方哲学获得灵感,在本项目中尝试以“闲暇”来破题。亚里士多德在《政治学》中提到:“游嬉是为了更好的劳作,劳作是为了闲暇。” 这里的语境是,古希腊人以闲暇来度量生活,工作在他们看来,只是非闲暇。并且闲暇与游嬉有层次上的区别,游嬉就相当于逃离工作的休闲娱乐,而闲暇是在说以一种沉静的状态去观照和倾听这个世界。由此看来,“闲暇”的概念是对于“界限”概念的更高理解。这个时候,人本身就是目的,界限不再以消极的形态展现。
由此,在本项目中凸显闲暇这个概念,在理论层面上是去积极反思自然、人、商业空间之间的关系,旨在突破一般的逃避庸常、制造审美乌托邦的商业空间的思维桎梏。
在设计实践上则去寻找场地潜力、设计者主观心境与品牌内核的结合点,以界限——闲暇为出发点,塑造更具丰富内核的,以动态永恒之美吸引大众的商业空间。
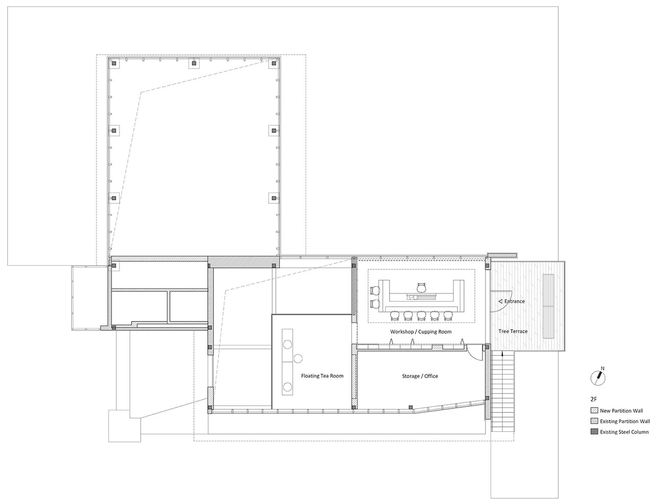
以适于闲暇的空间为基调,设计从考察各空间元素之间的相对关系入手。我们分析了场地与周边环境的宏观关系,梳理了场地边界可能产生的不同意义,结合作为注重心灵体验的茶空间的品牌内核,设置了不同层次的区域。一个是室内外连通的动区,这种人与景观充分互动的感觉,由穿透室内外的吧台、共享长桌与室外长凳围绕小叶榄仁所带来。以动区为核心扩散开来,层高较为低矮、景观面不多的,我们规划为静区,它结合了茶体验,产品与书籍陈列以及阅读长廊。夹层区域则适于深度体验工夫茶。
项目名称:BASAO白鹭洲
项目类型:建筑改造,室内设计,景观设计
项目地点:厦门,中国
场地面积:700平方米
建筑面积:340平方米
项目业主:BASAO佰朔
设计公司:Neutra Architects
公司所在地:上海,中国
主创建筑师:赵子涵,叶清
设计时间:2023年4月 – 2023年6月
建造时间:2023年7月 – 2023年9月
施工单位:厦门市翰禹装饰工程有限公司
木作配合:乔弘(厦门)木业有限公司
金属配合:金鸿源不锈钢
照明设计:Ehome和光照明
空间影像:光弦Studio

艾洛设计

戈多设计

观筑设计

山地土壤室内设计

黄锋室内设计

杭州诺瓦空间设计

杭州慢珊瑚设计

艺合境建筑设计事务所

未来以北工作室

启仓设计

即时设计研究所

凡西空间装饰设计

介介工作室

浆果创意

西水湾路工作室

TEMP

普悦设计

善祥建筑设计

万相纳间设计

加减智库设计事务所

易禾上品设计

零墨装饰设计

华南理工大学历史环境保护更新研究所

栋三尺设计

東形西見

仝屿建筑空间设计

艾洛设计

香港郑中设计事务所

PLAT ASIA

本哲建筑

門觉建筑

风合睦晨空间设计

門觉建筑

MHD建筑事务所

mint+studio

HOOOLDESIGN事务所

徽宗设计研究室

壹所设计工作室

创境合美设计

杭州水丁集设计事务所

借光建筑空间设计

观筑设计

空舍设计

研造社

壹山设计

重庆浩丰设计机构