空山以茶致力于打造“更年轻”的茶文化,所以创始人希望不光产品本身的品牌设计、陈列、茶具、茶器、茶饮、喝茶方式,可以做出东方气韵,并且整个体验空间,甚至秩序和营造也尤为重要,打造”更当代的中国茶空间“,让喝茶变成一件“很潮”的事。
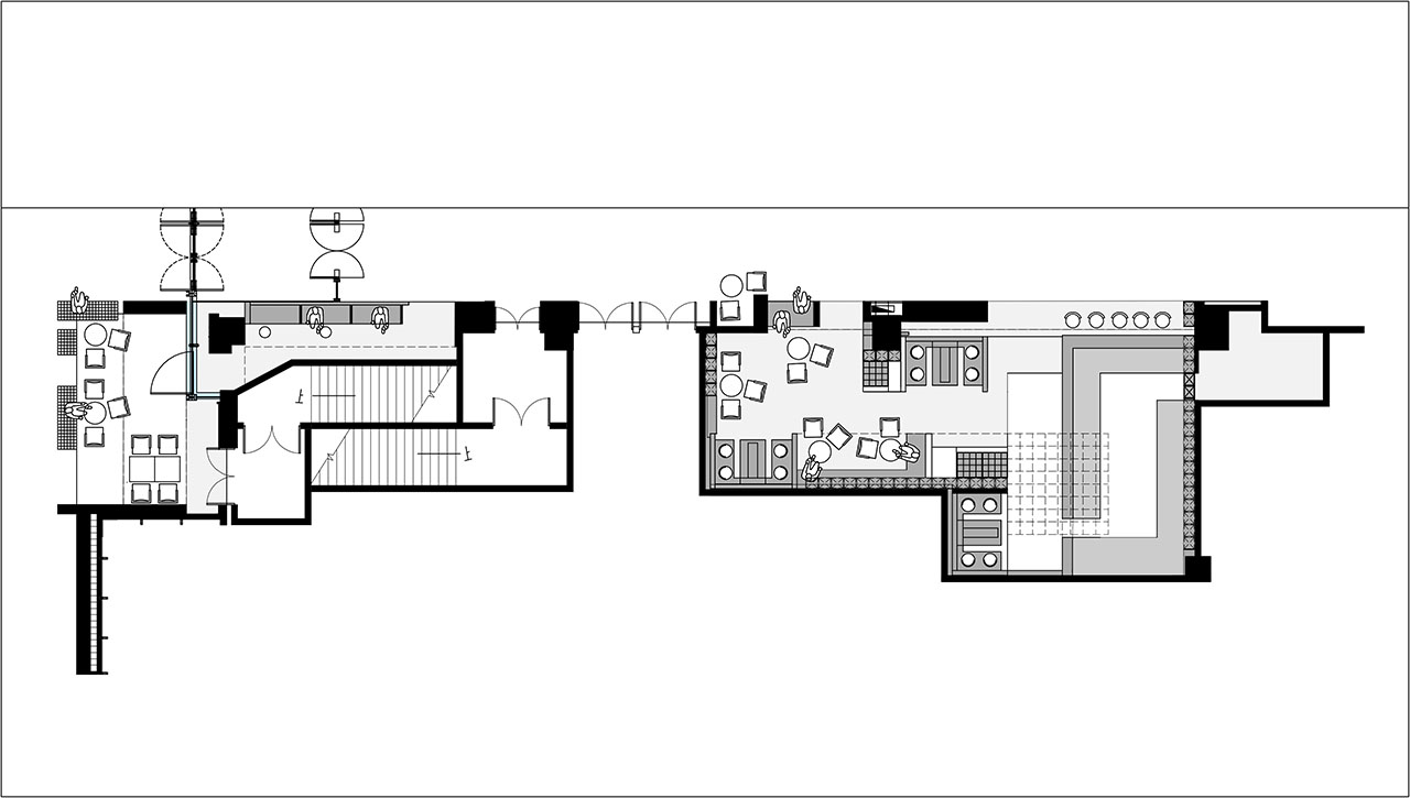
作为空山以茶的重庆首店,项目占地175平方米,中间被商场的消防通道分隔且狭长 。设计师因地制宜,利用狭长的空间造势,将入口、吧台、展示屏,壁炉、座位巧妙地与消防门、走廊过道进行串联,通过形态的延伸、穿插,颜色统一,进行整体设计,反而在商场入口,形成了约40米连续而大气的店铺形象,给顾客在入口处,留下深刻的印象。
整个空间的视觉灵感,取自中国的传统活字印刷,我们用现代建筑的表现形式,将汉字格演绎为茶格,茶墙,导视,吊顶装饰,产品零售展示等,呈现出“既古又新”的空间形态,让空间功能与美学形式有序结合。
入口区,以吧台为核心,展示煮茶、烹茶、和新中式茶点,产地、风土、风味、形态呈现真实客观的茶叶风味坐标,不懂茶的人,可以一目了然地看到自己想喝的茶“究竟是什么样子”,而懂茶的人,也能更直观地看到每一款即将入口的茶,它们好,好在哪里。门口的大屏幕,更是实时播放空山以茶,从茶的生长、采摘、到烹煮的每个工序,让顾客真正的感受到现“煮”鲜茶这一核心卖点。
吧台背景墙以田字格形成的茶墙,兼顾储物和展示功能,形成吧台的背景墙,活字印刷形式构成的茶单,在灯光的映衬下,既兼顾功能性,又成为了吧台的一处装饰雕塑。吧台上方的格子吊顶从顶面转折延续到墙面,变成茶具、产品的展示区域,让无论是在吧台区经过的客人,还是在卡座落座的客人,可以自然而然感受茶文化的熏陶,让产品本身成为空间的装饰品。
品茶区,我们采用“内建筑”的形式,将古人“茶寮”进行现代化的形式处理,为不同的社交场景提供休闲品鉴区,不论三五好友,还是两人对饮,亦或是临时停驻,分设了卡座区,单人座区,吧台卡座区,满足日常经营场景使用。
茶空间的另一入口直通商场外部,但因被消防楼梯和商场走廊的挤压,仅存一个窄长的过道区域和外摆区。设计师利用曲折的动线,将外摆区作为茶室与外界的展示窗口,利用钢板与水磨石构建,山型和坡屋顶,打造入户门头,厚重的质感为开启进入的过程带来了一种别样的仪式感,利用过道空间打造了一个座区长廊,门扇启闭之间,从入口的开阔到走廊的狭长,犹如一场身心在尘世间的穿越,与闹市相隔。
本次茶空间设计,传统建筑元素“茶寮”作为视觉构成的主体,以活字印刷艺术的表达形式,去除历史沉重感,用当代的设计语言加以提炼。高低错落的自由的相互交叠,分散延伸至整个空间,让空间更具戏剧性、装置感、节奏感,极大提升品牌的空间识别性。设计通过对品牌和商业空间的深刻理解,合理回应和平衡了空间美学与商业需求的关系。
项目名称:空山以茶
项目城市:重庆
项目面积:150
完成日期:2024-02-06
设计机构:凡西空间
设计师:阙冬炀
摄影:又与建筑摄影

艾洛设计

戈多设计

观筑设计

山地土壤室内设计

黄锋室内设计

杭州诺瓦空间设计

杭州慢珊瑚设计

艺合境建筑设计事务所

未来以北工作室

启仓设计

即时设计研究所

Neutra Architects

介介工作室

浆果创意

西水湾路工作室

TEMP

普悦设计

善祥建筑设计

万相纳间设计

加减智库设计事务所

易禾上品设计

零墨装饰设计

华南理工大学历史环境保护更新研究所

栋三尺设计

東形西見

仝屿建筑空间设计

艾洛设计

香港郑中设计事务所

PLAT ASIA

本哲建筑

門觉建筑

风合睦晨空间设计

門觉建筑

MHD建筑事务所

mint+studio

HOOOLDESIGN事务所

徽宗设计研究室

壹所设计工作室

创境合美设计

杭州水丁集设计事务所

借光建筑空间设计

观筑设计

空舍设计

研造社

壹山设计

重庆浩丰设计机构