黄河三角洲农产品交易服务中心位于山东省滨州市,长江五路以南,渤海十八路以西,总建筑面积约11万平方米,是一个集展览、会议、餐饮等多功能于一体的大型会展综合体。设计紧密结合当地城市社会经济发展情况,深入解读场地特征,发掘当地文化魅力,成功打造出一个在地共生、理性高效、惠及大众的城市会客厅。
展城一体的场地关系
传统会展建筑因单一的功能和巨大的体量,往往成为城市中的“孤岛”,造成城市空间的割裂。设计从更为宏观的城市视角思考项目用地:场地的北侧和西侧是密集的住宅小区,东侧是珍珠湖公园。项目的主入口设于东侧渤海十八路,沿场地长边布置,形成面向城市的集中形象展示面,并创造出核心的城市庆典广场,为市民提供了一处活动、庆典、聚会之所。
围绕会展建筑布置了市民广场、游艺区、景观公园、室外集市等,在高效满足集中展示与交易的基础上,提供给市民一片功能复合的城市休闲空间。
高效集约的空间布局
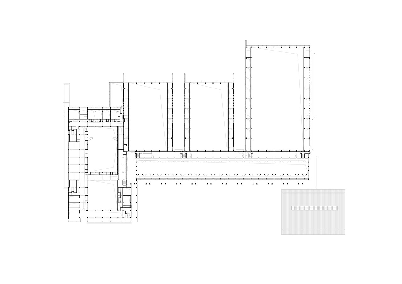
设计结合会展建筑运营模式的需求,空间的布局灵活高效、可分可合。交易中心包含中央大厅、1个10000㎡大展厅、2个5000㎡中展厅、1个3000㎡小展厅,以及配套服务会议中心等部分多个展示空间由北向南一字排开,由中央大厅串联,呈现高效的鱼骨式布局。各展厅之间设连接通道,展厅可根据参展规模的不同选择不同的开放模式,为后期运营增添了多种可能性。
在地共生的建筑意象
本项目的建筑立面重视地域文化的表达。建筑外墙材料主要采用金属铝板和玻璃幕墙,结合参数化的表皮,建筑形象风貌强调时代性、现代性。
北立面是面向城市最重要的形象展示面,设计采用“渤海拾贝”的概念,通过多个扇形“贝壳”的造型排列并置,隐喻海洋文化意趣和水文化意向,在塑造标志性的同时对于城市文化进行有力的回应。
设计借鉴剪纸和编织的民间工艺,通过造型塑造和肌理处理唤起黄河文化的意向。东立面面向主广场,采用大面积的金黄色编织肌理,形成富有韵律的整体形象,在不同的阳光照射和角度下呈现出多变的建筑形象。
两侧的小型展厅立面采用穿孔板材质呈现传统剪纸图案,和编织肌理交相呼应,呈现具有在地审美体验的建筑造型。
理象合一的结构创新
交易中心展厅空间设计结合结构创新,实现大跨结构合理性与建筑空间表现力的契合。
展厅中最大的1#厅面积约为10000㎡,柱网平面尺寸为75m(南北向)*122.1m(东西向),建筑造型是两个东西向弧形屋面相连,常规的结构处理手法是沿屋面的弧度方向布置张弦梁。而本设计各主要展厅采用创新的“上承式张弦钢拱架结构体系”,该体系较好解决了索撑体系平面外不稳定问题,顶部局部空调风管外露问题,两侧屋面出挑造型结构支架问题等。上承式张弦钢拱架结合建筑屋面长向造型弧度,形成富有表现力的类似双曲穹顶的室内空间效果。中央大厅是展示交易的核心空间,最高点高度约为23.7米,设计在中庭东西两侧排列通高的V型斜柱,交汇于弧形金属屋顶。结构柱廊成为空间的主角,随着一天的光影变化,屋顶天窗洒下的光线投射在柱廊上,形成流动的光影,光线、结构、空间在这里融为一体。
本项目作为滨州市“83”重点工程,2021年山东省重点建设项目,其建设过程受到社会各界的广泛关注。项目建成后,以高质量竣工验收一举成为滨州市规格最高的会议、展览场所,召开了滨州市第十二届人民代表大会第二次会议第一次全体会议、滨州市第七届资本对接大会等,年均承接大中型活动数量约50个,成为激发城市内在活力、提升滨州城市形象的重要起搏器。
项目名称:黄河三角洲农产品交易服务中心
项目地点:山东 滨州
用地面积:154633.2m2
总建筑面积:116084㎡(一期77738m2,二期38346㎡)
建设单位:山东滨达实业集团有限公司
设计单位:浙江大学建筑设计研究院
结构形式:钢筋混凝土框架+张弦拱架
建筑设计:邱文晓、朱睿、徐荪、裘嘉珺、夏楠
结构设计:沈金、王俊、程柯、谢辽、王成志、李丽、潘庆祥、孔华伟
给排水设计:陈激、陈飞、赵洁钦
电气设计:郑国兴、杨凯、丁立、范宏建
暖通设计:余理论
幕墙设计:白启安、陈栋、俞颢、沈致远、杨东艳、张默然
景观设计:高飞、叶星星、李先颖、汪春喜、徐伟东
室内设计:李静源、方彧
智能化设计:江兵、王菲
照明设计:庞笑肖、陆丹雨、黄春玲、肖舒峥
设计时间:2020年2月1日-2021年2月1日
竣工时间:2022年9月29日
施工单位:中交第三公路工程局有限公司
建筑摄影:章鱼见筑

柏涛设计

10 Design

10 Design

立方设计

木君建筑与室内设计事务所

Wutopia Lab

天仝建筑

长江都市建筑设计

张大为建筑工作室

小隐建筑

goa大象设计

光湖普瑞照明设计

一十一建筑

汉诺森

阿科米星建筑设计事务所

WAU建筑事务所

GLA建筑设计

华南理工大学建筑设计研究院

现代之后建筑设计事务所

观筑设计

安棣建筑设计

炽造设计工作室

张·雷设计研究

英国杰典国际建筑设计

回应建筑工作室

小写建筑事务所

Wutopia Lab

汉齐建筑

日常建造

柏涛设计

上海绿建建筑设计事务所

米丈建筑设计事务所

光湖普瑞照明设计

中森止境设计工作室

华阳国际设计集团

LAD(里德)设计事务所

靠近设计

华清安地建筑设计成都分公司

启迪设计

尹培如建筑工作室