设计加:顶端设计
有终花艺教室
重庆 收集
 

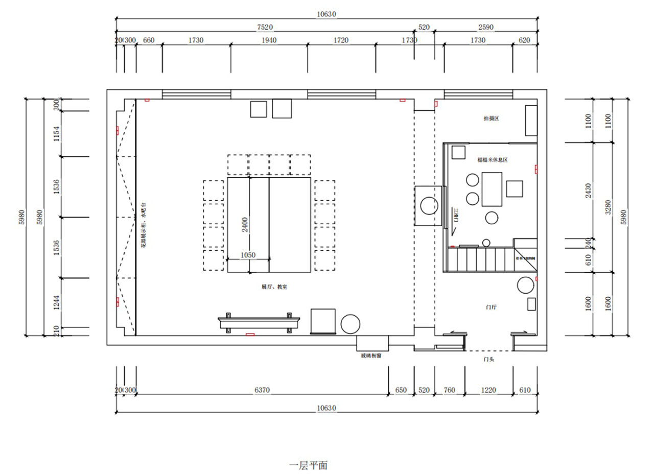
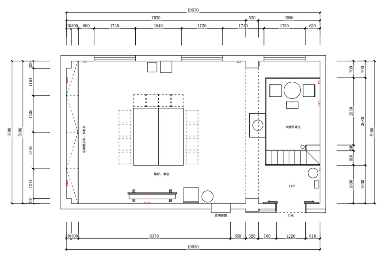
原始空间是长方形的一间屋子,业主希望这里既是上课的教室又可以做艺术展览,也是一间链接朋友的对外的小空间。为满足功能及消防的需求,设计上巧妙的考虑用建筑中的建筑来达成空间的自然分割。楼梯也是隐藏在滑门内的,平时也可以当做大型花艺的背景。在这里可以让时间慢一点,多一点和内在的自己相处,在这里以物以空间来会友。


作品名称:有终花艺教室

项目地址:重庆金山意库

项目面积:98平米

设计机构:重庆隐一设计

项目完成时间:2025年

推荐

自在读书馆

杭州物相空间设计

维卡博造型商学院

利落建造

RSociety教学基地

0321 studio

大米和小米教育中心

劢可丹建筑设计

上海帕特国际艺术留学教育机构

朴居設計研究室

w国际艺术教育

archive studio

灵宝儿童成长中心

unarchitecte

重庆混沌大学教学中心

VARY几里设计

C-SCHOOL - 把社区作为教室

有门建筑

壹心空间自习室

多么工作室

M2培训中心

谱观建筑设计

德勤书院:长城边上的太空站

事建组

Uvi1美业工作室

梓泉建筑设计

启迪艺术学院 - 打破第四堵墙

都市游牧

中欧国际工商学院深圳校区

太谷设计

WOOW咖啡培训学院

知一设计研究室

流·画馆

陌至建筑設計事務所

Kido School 绮朵幼儿园

REAL建筑事务所

粒粒森国际双语私塾

杭州巨合建筑设计事务所

LEVEL DANCE 舞蹈中心

研己设计

郑州阿肯顿幼儿园

青草地设计

天际自习室

多么工作室

众森BABY婴幼儿成长中心

門觉建筑

TAI KWUN EDUCATION CENTRE

纳研作室

老街里的咖啡培训工坊

平介设计

IRIS舞蹈艺术空间

栖斯设计

书一·山海集自习室

多么工作室

设计放心选,监督有保障
  • 更好设计

    这里汇聚顶端、前沿的设计团队与项目创意

  • 更多选择

    这里聚合更多国内外、全产业的服务与产品

  • 全面配套

    可需求发布、招标竞赛、咨询管理配套服务

  • 管控保障

    针对服务产品全程监督管控与质量跟踪评价

上设计加网,实现精益营销
  • 高质展示

    入驻企业专站在市场门户高质的展示传播

  • 精准客群

    几千团队、海量设计师、优质需求与客群

  • 全面营销

    企业推广、合作、招聘、企宣等一站到位

  • 顶层发展

    这里汇聚设计产业供需的顶端圈层共发展