古村落与耕学+
在乡村振兴的深入推进下,毗邻春阳台艺文中心的一块三角形临水地块被选址为塱头耕学+研学中心。该项目与春阳台共同构成一个综合性的文博研学功能业态,为塱头古村的文旅发展注入了新的活力。
耕学+的总体规划借鉴了塱头村祠堂书室沿荷塘畔布局的传统,通过打造“书院街”,向青少年展示耕读文化遗产。为与塱头古村建筑群相协调,耕学+研学中心采用了与春阳台相似的策略:由三个坡屋顶的小型矩形体量组成,以微小的夹角顺应南侧河岸的走势。
红砖和青砖
塱头村的材料研究中显示,随着历史的演进,红砖正逐渐取代传统青砖,成为当地主要建筑材料。耕学+采用红砖作为主要外立面材料,在为孩子们营造愉快的传统乡村生活氛围的同时,也唤起了村民对老砖记忆。
得益于现代工艺,耕学+采用的窑变红陶砖,每块砖因烧制过程中的温差而产生了深浅不一的颜色变化,有效规避了工业制砖的均质化问题,为建筑注入了活力。基于功能需要,不同立面采用的砌筑工艺也不尽相同,从而使立面更加丰富且具有趣味性。所有陶砖均为空心砖,内部穿钢管,采用干挂式做法安装。
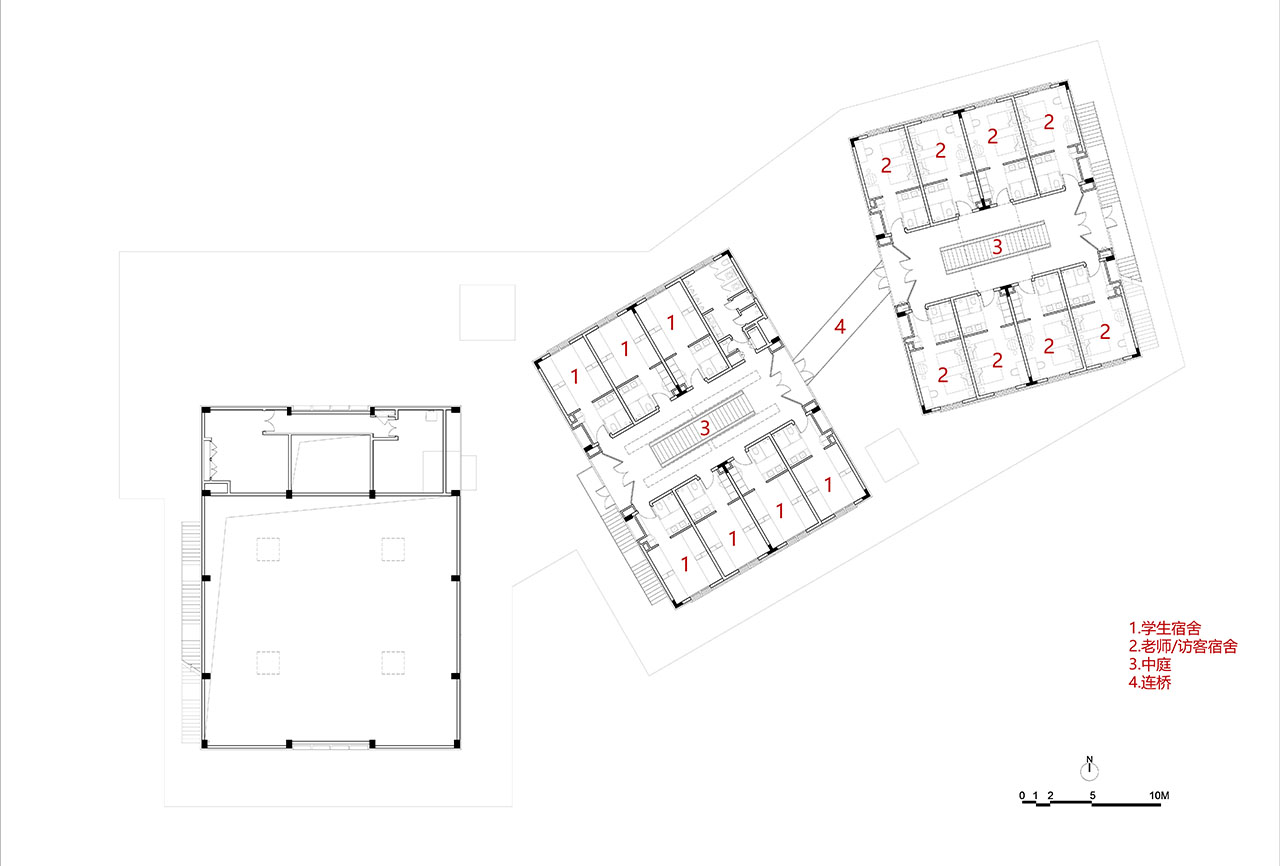
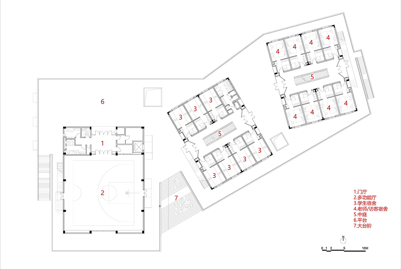
中庭与敞廊
耕学+研学中心的敞廊与中庭空间专为青少年群体打造,兼具研习活动与日常生活的双重功能。首层设有门厅、教室、工坊、展厅、餐厅及厨房等功能区,营造社区般的归属感。二、三层设置两层挑高的多功能厅(兼体育馆)及配套宿舍。
室内空间形式与各楼层功能需求相契合。二、三层的宿舍围绕中庭布局,通过大楼梯与首层公共空间上下连通,营造出开放流通的空间感,该设计原型来源于塱头村传统民居的内部空间格局。为方便三栋建筑之间的通行,首层各区域通过敞廊串联,以确保师生可自由通达。
看台与乡野
该建筑的另一设计亮点在于屋面的五处观景平台,这里不仅可以全方位俯瞰周边乡野景色,更是学生们的学习和交流空间。来访者在此既可远眺自然风光,又能俯瞰历史村落,从而深度体验自然生态与地域农耕文明的交融。二楼平台的设计旨在提供多样化的户外活动空间,同时其悬挑结构为一楼外部区域提供遮蔽,有效抵御恶劣天气影响。AB栋平台之间设置的大台阶成为连接自然的重要通道,拾级而下,跨过拱桥,学生们便可以踏入对岸的乡间土地,亲身去感受祖辈传承的农耕文化与历史遗产。
项目名称:塱头耕学+研学中心
地点:广州市花都区炭步镇塱头古村
用地面积:8168m2
建筑面积:4039m2
建筑层数:地上3层
建筑高度:14 m
业主:广东省唯品会慈善基金会
设计团队:非常建筑
主持设计:张永和,鲁力佳
项目团队:梁小宁、孙希
设计合作:广东省建筑设计研究院
结构形式:钢筋混凝凝土框架
设计时间:2024. 4-9
竣工时间:2025

环球地景设计

方寸践建筑设计

来建筑设计工作室

观筑设计

青微舍工作室

间筑设计

时地建筑工作室

由牧建筑

白岛营造设计工作室

易栖建筑

小隐建筑

瓦加瓦建筑设计咨询

相对建筑

光环环境艺术设计

乐道景观设计

塞纳园境设计

木月建筑设计事务所

蓝调国际

十作设计

原榀建筑事务所

深圳超级平常设计

袁野建筑工作室

棕榈设计