1场地
森林岗亭是一个改造项目,处于浙江绍兴地区一片乡村研学营地的中心位置。周边被水杉林、草地、建筑群包裹,场地仅约20平见方。
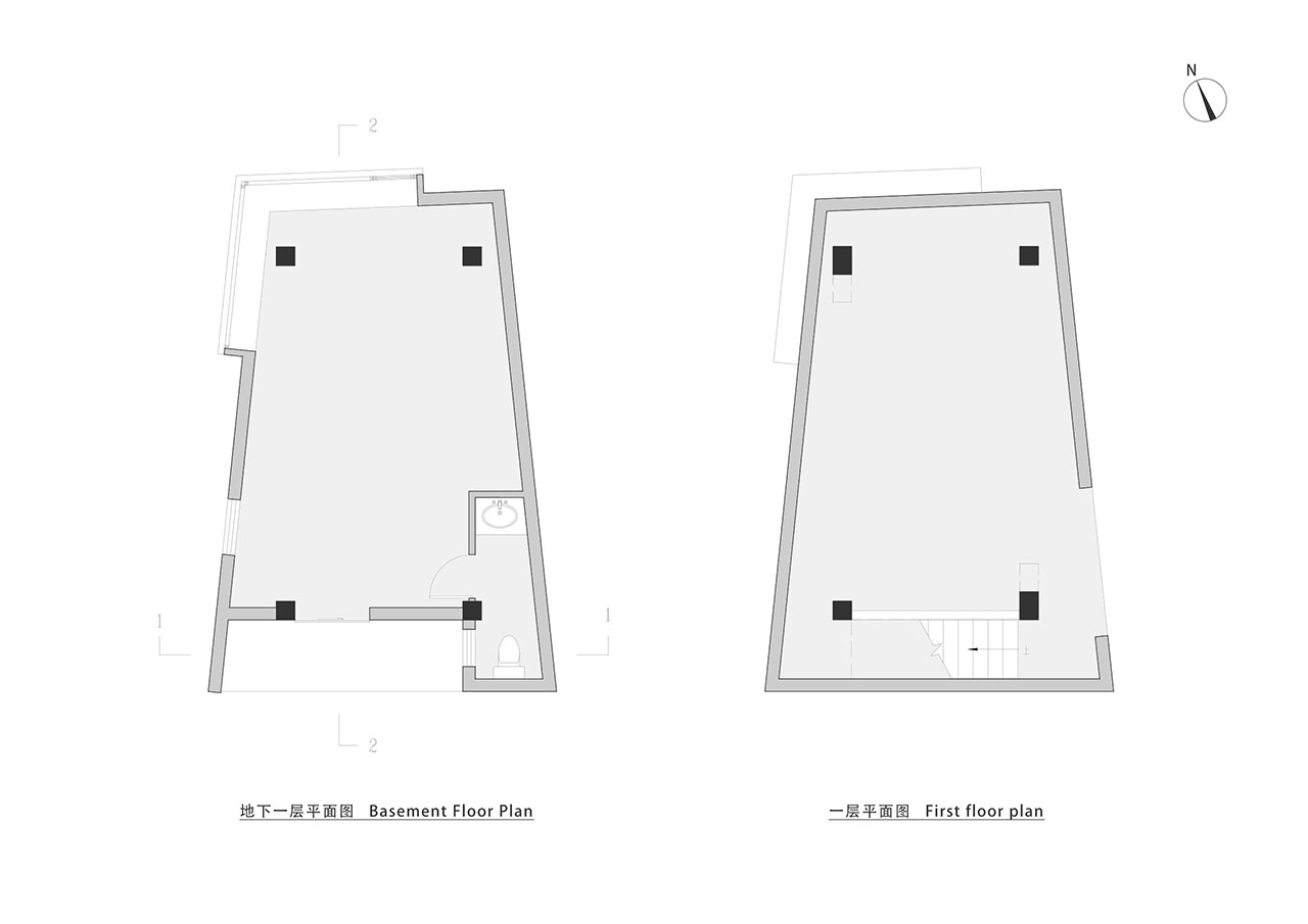
这个营地位于山林中,地势复杂多变。岗亭场地在两个台地过渡处,原本是一间学校办公室,入口位于低层台地,屋顶作为露台,与上一级台地对齐标高。层高随两阶台地高差自然确定,约有4米。
2连接点
由于营地内的高差较大,3个建筑群均位于不同标高的台地上,互相之间的关系由于视线的切割阻挡,变得疏离。岗亭作为全场中心,又是唯一被允许改动主体结构的建筑物,我们首先考虑了加层——且得加两层,使其被不同的主体建筑看见。这样它既可作为一个视觉轴心,使周边建筑变得紧密,又能作为一个瞭望岗,“视察”营地的各个角落。
空间连接点随即成为了它的场所定义,类似一座视觉要塞,既是“瞭望台”,亦是“庇护所”。
3庇护所
“庇护所”是需要攀爬上去的,入口小且单一,底层架空,这与场地原状态倒是不谋而合。这个架空层既可作为附近活动广场的配套,提供设备临时存放或人员集散逗留,也藏着通往二层的楼梯。二层则是一个完成独立空间,可以开会、上迷你班课,或者临时休憩。
于是森林岗亭已变成了一个3层建筑物:首层架空,作为广场的延伸;二层庇护,提供小型会议和人员休息;地下层作为办公室,拥有通往下一级台地的独立流线。
4四季亭
下埋中空上悬浮的分割,让建筑轻盈起来。这种悬浮感就更加促使我们选择最无体量的设计手法:木构框架内收、薄檐口屋面、通透立面。因此在形成二层的现浇楼面后,结构换成了胶合木木构,建筑向一个“四脚亭子”转化。
这4个脚相对平面边缘内收,让出完整的外立面,同时也弱化结构特征。外立面选择半透明的聚碳酸酯阳光板,让建筑能被看穿但看不透彻。在周边被树荫包裹,内部透出灯光的时候,整个亭子像一盏巨大的可以进入的草坪灯。
它的透明与反射,将自己隐藏起来,折射出四季变化的山林模样。这是我们认为一座建筑最好的模样——给予功能,融入自然。
项目名称:微型建构之2——森林岗亭,映照四季的避风港
项目地址:浙江省绍兴市王坛镇孙岙村
建筑面积:20㎡
项目类型:乡村场所活化;遗址建筑改造
设计方:造作建筑工作室
设计内容:建筑、景观、室内一体化设计
项目起始时间:2021年1月
项目竣工时间:2024年6月
主创建筑师:沈悦
设计团队成员:戴文竹、盛仁、雷金剑、熊乐霜、孟文涛
结构设计:周建成
业主单位:宝业集团
甲方设计师:缪华勇、李茂杰
运营方:宝研品匠
外立面主要材料:艺术肌理涂料、铝镁锰板、花旗松胶合木、PC板、仿藤编卷材
主要材料供应商:苏州东泓金属材料科技有限公司(屋面金属板);南通佳筑建筑科技有限公司(胶合木木构体系)
摄影版权:吴清山

环球地景设计

方寸践建筑设计

来建筑设计工作室

小隐建筑

REDe Architects

非常建筑

观筑设计

青微舍工作室

间筑设计

时地建筑工作室

由牧建筑

白岛营造设计工作室

易栖建筑

小隐建筑

瓦加瓦建筑设计咨询

相对建筑

光环环境艺术设计

乐道景观设计

塞纳园境设计

木月建筑设计事务所

蓝调国际

十作设计

原榀建筑事务所

深圳超级平常设计

袁野建筑工作室

棕榈设计