在城市的版图上,建筑从来不是孤立的存在,而是与场地、人群、城市精神深度对话的空间载体,建筑早已超越其物理功能,成为承载城市精神的容器。
位于北京海淀区清河镇的青核INNNG国际人才社区,便是这一理念的生动体现。其建筑生成的背景,正是北京海淀青核INNNG项目所在地的特殊性,这特殊性源于对多种边界因素的应对策略进行综合考量的结果。这一复合型青年居住项目不仅直面特殊地形与复杂城市环境带来的挑战,更以“环抱共生”的建筑形态,构建出一处激发创新、促进交流、融入城市的活力地标。
场地应答:城市节点的青年聚落
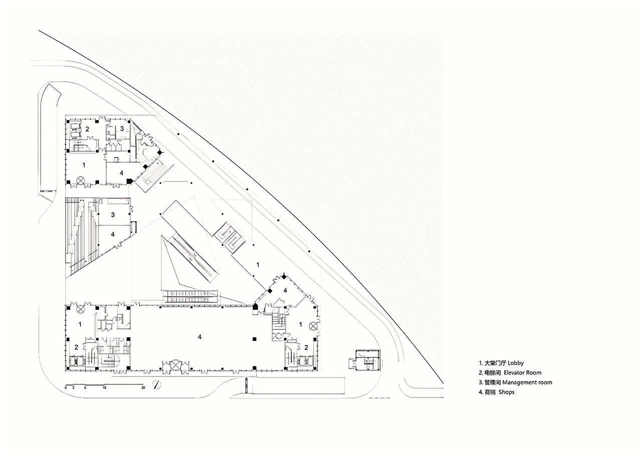
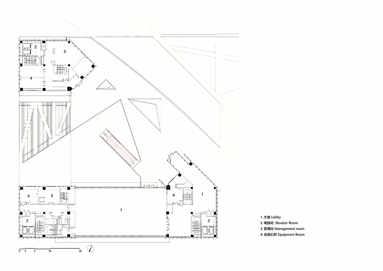
项目东临京藏高速,北接小营西路,是城市空间的重要节点。被城市道路与绿地挤压而成三角形用地,空间非常局促,不适合常规的规划布局;紧邻的高架京藏高速对场地产生空间压迫和噪音干扰;场地的南侧和北侧,地铁19号线与昌平线南延线的站点之间,存在着大量的地面换乘人流,对公寓的长租人群可能形成干扰。
方案将上述制约因素转化为独特的规划策略。对于东北侧的城市绿地,设计成逐渐升高的斜坡景观,既面向城市道路形成立体展示的界面,同时最终形成的6米的高差也为公寓提供了主要的入口平台。而地铁换乘的人流可以在地面自由通行,互不干扰。地面与高速公路的高架桥之间的尴尬被巧妙化解,形成错落有致的台地式布局。在建筑首层可以布置商业配套,既服务住户日常需要,也激活场地商业价值。
形态生成:科技基因的空间表达
项目摒弃传统密集塔楼公寓的呆板布局,连续“反N”的建筑造型,如同激情跳跃的轨迹一般,塑造崭新的建筑形象和城市轮廓。三座塔楼斜向延伸、彼此衔接,形成三个巨大的三角形开口,既打破高层公寓的单调感,也构建出通透的立体庭院。几何形态的力量感,以明确且富于动感的形象面向城市,既呼应中关科技企业的现代气质,也隐喻着科技人群敢于创新的精神内核。
建筑内部通过清晰的功能分区构建起空间秩序。为满足消防规范,将连续的建筑体量划分为三个部分,分别成为一个独立的消防分区。从门厅到电梯厅,从走廊进入公寓,形成从公共到私密的递进的关系。
10层以上退台提供观景露台,西山与城市景观一览无余。户型从单身公寓至复式套房,均采用可拆卸隔断与模块化家具系统,支持居住与办公的自由切换,适配科技创业者的多元需求。
空间对话:连接人与故事的容器
三个方向的三角形开口被塑造为不同主题的活动场所,让建筑成为青年文化与城市生活的“缝合剂”。空间在这里呈现出更多维度,建筑三角形的内庭面向天空,形成起伏的轮廓,在二层、首层和地下一层又演变为相互连接的空间网络。建筑立面中三个方向三个巨大的、三角形开洞伴随着光影将城市景观引入其中。
东北侧“城市画廊”,应对京藏高速,成为一个向城市展示的窗口,未来这里艺术装置和灯光投影将成为不断演绎的青年文化剧场。
西侧“共享台阶”,连接二层平台的大台阶,自然形成户外沙龙区,适合即兴讨论、午后阅读或小型音乐会。
南侧“创新大堂”,悬索玻璃幕墙围合的室内空间,打破内外界限。这里不仅是归家的第一站,更是社区客厅,承载创意市集、项目路演与社群活动。
精神赋能:一种可生长的创业文化
对居住于此的科技人群而言,青核INNNG不仅是居所,更是创新的“孵化器”。开放的公共空间鼓励跨领域交流,庭院、步道、大堂中,随时可能碰撞出思想火花;理性严谨的建筑形态与灵活多元的空间设计,共同传递着突破常规、持续探索的创新精神。
贯穿社区的休闲步道,将东北侧绿地、内部庭院与西南方向的体育公园串联为一条完整的“活力轴”,鼓励人们运动、散步与不期而遇的交流。“破土新生”的景观理念,为城市植入一片生态绿洲,让建筑真正融入公共生活。
在这里,居住、工作、社交与休闲的界限被柔化,建筑以包容的姿态,承载年轻人对创新生活的全部想象。它既是面向城市的形象节点,也是扎根日常的生活港湾。设计重新定义集体租赁住房的价值,为新时代城市建筑如何兼具辨识度、社区感与人本关怀,提供了生动的诠释。
项目名称:青核INNNG国际人才社区
项目地点:北京市,海淀区
建筑面积:48156平方米
建成时间:2024年11月
建设单位:北京市海淀区清河农工商公司
设计单位:朱小地工作室、北京市建筑设计研究院股份有限公司
主持建筑师:朱小地
建筑方案、景观设计:朱小地工作室、北京市建筑设计研究院股份有限公司
施工图设计:北京市建筑设计研究院 第七建筑建筑设计院
精装设计:北京建院装饰工程设计有限公司 设计八所
泛光照明顾问:北京光湖普瑞照明设计有限公司
幕墙顾问:中国建筑设计研究院有限公司帷幕中心
文案:朱小地、周怡汝
摄影:张哲鹏、徐晓通、DONG建筑影像、北京建院装饰

间筑设计

汇一建筑

扉建筑

立木设计

UUA建筑师事务所

Van Bergen Kolpa 建筑事务所

绿城利普建筑设计

天华建筑设计

天华建筑设计

天华建筑设计

天华建筑设计

UUA建筑师事务所

天元建筑设计

goa大象设计

筑弧建筑设计事务所

华域普风设计

绿城利普建筑设计

5+Design

5+Design

绿城利普建筑设计

goa大象设计

goa大象设计

柏涛设计

goa大象设计

goa大象设计

朴隅建筑

家琨建筑设计事务