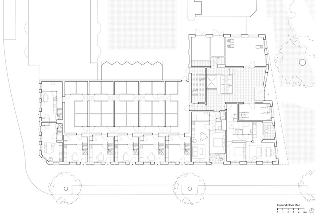
De Hartenrust是位于鹿特丹罗特河弯曲处的一栋新建社会住宅楼。建筑由塔楼公寓、联排别墅以及街角住宅组成,共同形成一座多功能雕塑,标志着人口稠密的Oude Noorden社区与绿色宜居的河岸之间的联系。该建筑包含36套可负担社会住宅,包括家庭住宅和公寓。尽管面积紧凑,每套公寓都拥有宽敞空间、遮蔽的露台以及可俯瞰城市的法式阳台,同时共享屋顶花园。独栋家庭住宅的前门面向街道,并配有屋顶露台。坚固的雕塑式建筑通过温暖而丰富的材料得以柔化。立面采用坚固砖砌结构,配以竖向排列的浅色窗户节奏和绿色釉面砖基座,与周边19世纪建筑风格相呼应。De Hartenrust通过建设被动式、良好隔热、面向未来的住宅,并配备自然通风与绿色蓄水屋顶,为健康宜居的城市作出贡献。
“与Havensteder基金会合作,我们在一个复杂的市中心小地块上实现了多样化住宅,使这一美丽地段得以充分利用并完整呈现。”
—— Jago van Bergen, van Bergen Kolpa Architects
多功能雕塑
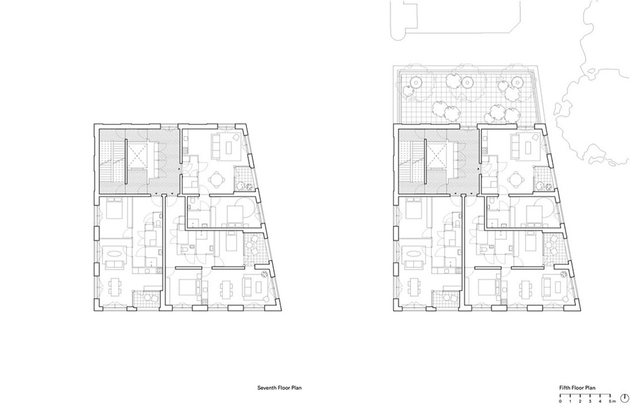
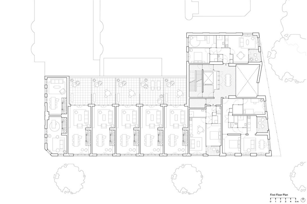
De Hartenrust延续了罗特河桥附近高层建筑的城市序列。建筑由三部分组成,其独特的街角造型形成了街道、社区和城市尺度的多功能雕塑。九层塔楼成为罗特河的地标。基座、中段和顶端的阶梯式悬挑与河流弯曲处巧妙呼应。四层街角住宅通过经典的阶梯倒角标示街道交叉点。塔楼与街角住宅之间的三层联排别墅突出各个住宅单元的独立性。
“独特的建筑设计与高水平的建筑质量丰富了社区的城市结构。”
—— Mattijs van Ruijven, 鹿特丹市城市规划主管
宽敞的社会住宅
De Hartenrust在延续社会住宅丰富传统的同时,满足了现代对多样性与空间宽敞性的需求。建筑提供从大型家庭住宅到紧凑公寓的多种户型。尽管面积紧凑,角落位置与宽法式阳台让公寓光线与空气充盈每个房间,使居住体验宽敞舒适。家庭住宅的厨房、客厅和卧室贯通全宽,楼层间通过开阔楼梯连接。
“清晰的平面布局充分利用可用空间,即便是小户型也能为居民提供宽敞的居住区域。”
—— Ferdi Jeelof, Havensteder住房协会项目经理
社交空间
建筑为居民创造了社交空间,并向周边环境开放。双层入口大厅构成中心、欢迎性的入口,各项设施和自行车停放区一目了然。夹层适用于公共活动。入口前设有小型绿色广场和河边长椅。屋顶共享露台坐落在树梢间,为户外活动提供空间并拥有全景视野。家庭住宅前门及带大窗的厨房餐区面向街道,活跃了人行道,促进与邻里的互动。
“除了提供可负担住房,我们还致力于创建宜居社区。De Hartenrust通过提供空间与机会,让居民可以相互交流。”
—— Christa Vithol, Havensteder住房协会住房主管
温暖而丰富的材料应用
坚固的建筑雕塑通过温暖而丰富的材质得到柔化,与周边19世纪社区呼应。三部分建筑以细腻的黄色砖砌完成,绿色釉面砖基座呼应街区。灰色两色的勾缝处理在建筑分段、凹入窗户与檐口凹槽间创造微妙差异。浅橄榄黄窗框与栏杆与双色砖形成温和“ton sur ton”效果。黄铜灯具与门牌细节赋予建筑丰富而真实的质感。
“通过De Hartenrust,我们为居民提供了高质量建筑的住宅楼。其宽敞的外观和美丽的地段在社会住宅中尤为突出。”
—— Marije Bouman, Havensteder发展与收购经理
面向未来
建筑通过面向未来的设计为健康宜居城市作出贡献。被动式、蓄热良好且隔热完善的住宅实现了极低能耗,并配备内置遮阳和自然通风系统。绿色蓄水屋顶与露台缓解洪涝与干旱,改善生活环境并提升生物多样性。
“除了智能能源与水管理方案,我们还通过使用生物基内腔墙和可循环利用的窗框,大幅提升建筑的未来适应性。”
—— Jaap-Jan Smit, BAM Wonen主管
Practical information
Client: Havensteder Foundation
Project: Residential building with 29 apartments and 7 single-family homes
Location: Zwaanshalskade Hartenruststraat Rotterdam
Construction: Pieters Bouwtechniek
Building physics: ZRI
Contractor: BAM Wonen
Planning: design 2018-2023, implementation 2024-2025
Photography: Filip Dujardin

间筑设计

汇一建筑

扉建筑

朱小地建筑设计事务所

绿城利普建筑设计

天华建筑设计

天华建筑设计

天华建筑设计

天华建筑设计

UUA建筑师事务所

天元建筑设计

goa大象设计

筑弧建筑设计事务所

华域普风设计

绿城利普建筑设计

5+Design

5+Design

绿城利普建筑设计

goa大象设计

goa大象设计

柏涛设计

goa大象设计

goa大象设计

朴隅建筑

家琨建筑设计事务