房子是一个有机的生命体,运用自然主义手法,以自然之境,构生活之意 ,在城市中创造一个宁静的“自然庇护所”为生活增一抹绿意!本案是位于金华湖海塘庄园的排屋,业主为一家四口,男主人从事电商行业,在房子的设计需求上想要贴近自然。拥有一线湖景的加持,意式极简的风格加以绿色点缀,蓬勃发展的绿意可以让人心慢慢平静下来,就像是一个田园诗般的自然庇护所。
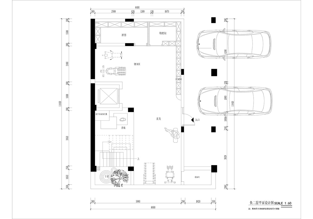
01负二楼
车库进来的位置,采用钢结构配合岩板以及线性灯做成的一个盒子楼梯,结合超白玻璃拉杆,整体的空间感与现代感非常强。楼梯旁设计一个绿植角,希望业主回家穿过相对黑暗的地下车库,能感受到家里的一片绿色;另一方面绿植的放置使负二楼与负一楼有一种空间的连接和自然蓬勃向上生长之意。
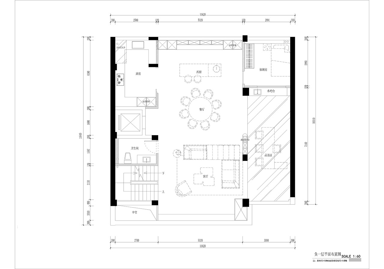
02负一楼
负一楼整体的功能规划分为客厅、餐厅、茶室、厨房、保姆间。
作为一个商务会客区空间,开放式的格局,自然采光搭配黑色面板神秘且高级。圆桌满足家庭聚餐、朋友聚会,灰色岩板做的吧台满足下午茶及日常简餐。业主在家具的选择上更是注重品质,baxter的茶几,minotti的沙发为空间做质感加持。
茶室是这次设计的亮点之一,灵感来源于射灯以及整个采光井的阳光,区别于传统茶桌设计,采用树脂、玻璃钢以及不锈钢三种材质打造出波光粼粼的效果,结合绿植造景,营造自然轻松的氛围,让喝茶成为一种享受。
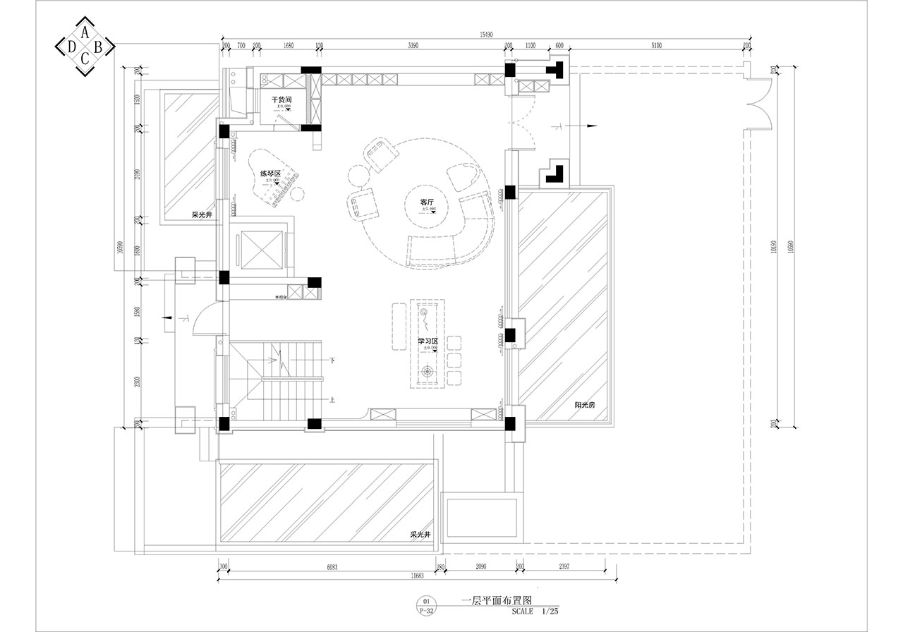
03一楼
排屋一层作为一家人的起居空间,相对比较休闲。进门玄关处选用不锈钢水波纹装饰品结合大花绿岩板与楼下茶室空间有呼应。正中的起居空间,罗奇堡绿色懒人沙发及Edra岩石沙发布置,使空间更显温馨惬意且高级。窗前放置原石面板桌子,可供学习办公 。
白色的百叶窗使得光影更加的灵动自然,家人闲坐,窗外四季,屋内人烟生活,就这样相融在一起。
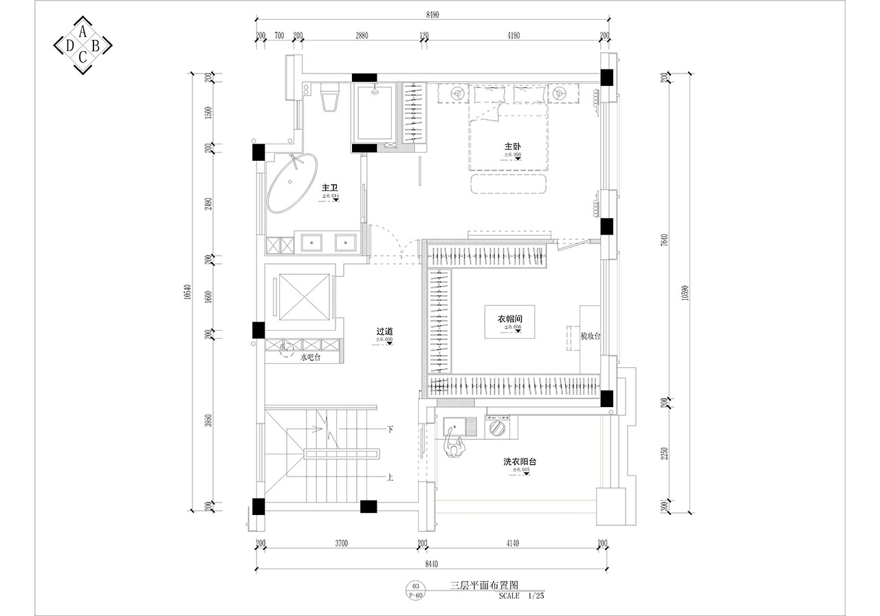
04主卧
主卧极简配色,进门处大花绿岩板与整体呼应,床头木纹点缀,有种高级的秩序感,光线透过窗户洒下来,恰到好处的明暗交织,享受生活的质感。配上功能齐全的衣帽间,悬挂、叠放、收纳、展示应有尽有,繁而不乱,井井有条。
项目名称:湖海塘庄园
项目功能:私宅
项目地点:浙江金华
项目面积:550㎡
设计公司:涵舍空间设计事务所
设计内容:全案设计
摄影团队:瀚墨视觉

八荒设计

介介工作室

壹舍室内设计

张烨建筑事务所

舍下草堂

辰境设计

时上建筑空间设计事务所

NOTHING DESIGN工作室

吾隅设计

深点设计PDD

杭州慢珊瑚设计

杭州辰佑设计

PhoebeSayswow建築事務所

万境设计

O筑设计

木又寸建筑事物室

左通右达建筑工作室

武汉吾同设计

木梵设计

木梵设计

泰磐建筑设计工作室

万境设计

美格设计

CUN寸DESIGN

之境内建筑设计

TEMP

涵舍空间设计事务所

芳菲室内设计

杭州广飞室内装饰设计事务所

之境内建筑设计

隐一设计

of gaaarden

UnderRoof

常名建筑设计事务所

游牧林工作室

几言设计研究室

1890.STUDIO

共生形态设计

画里设计

观行设计

天马设计

在造建筑工作室

意思建筑

马志成工作室

戏构建筑设计工作室

平行公社

HAS design and research

壹舍室内设计

几言设计研究室

漫缦设计事务所

方居建筑设计事务所

无研建筑

堤由匡建筑设计工作室

费弗空间设计

CUN寸DESIGN

桐话建筑设计

理想猫工作室

涅十设计

白造设计

大不了地设计工作室

构设计事务所

张大为建筑工作室