灰色,这种介于黑白之间的过渡色系,有这一种能够让复杂的事物变得柔和与平静的神奇力量。本案以当代极简主义为基底,通过解构意式设计中的理性基因与感性温度,当理性克制的灰调漫过188㎡的平层空间,悄然完成了对冗余信息的视觉净化,构建起贯通功能与美学的空间叙事。
设计借由解构、重组与折叠的空间叙事逻辑来处理空间界面,以横向延展的线性语言与低饱和度色调的共振,将极简主义的克制与东方居住哲学相融合。
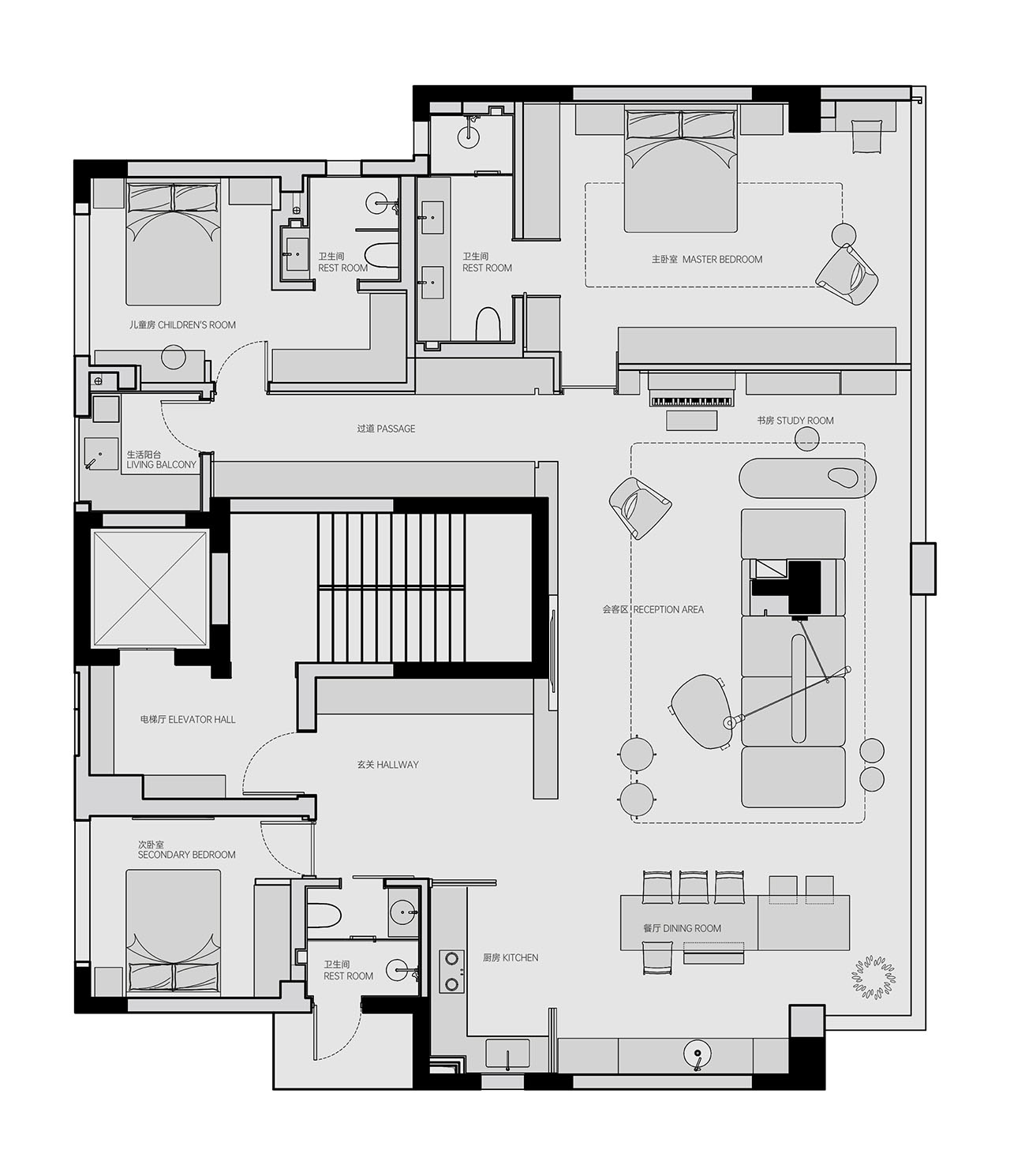
空间依托一梯一户的方正格局,设计团队以“空间折叠”理念重构功能动线,围绕电梯核心筒展开环形洄游动线,突破性地将景观阳台纳入室内体系,拆除非承重墙共同构建起通透的复合功能场域:从中厨、西厨岛台到社交性客厅,经阅读区延伸至钢琴区完成空间叙事闭环,构筑了一个全景式横厅格局。
如果说空间格局的重塑是设计的显性表达,那么收纳系统的构建则为空间注入了隐形秩序。设计以黄金比例切割界面关系,运用通顶木作体系整合收纳界面,通过暗藏式轨道门及无框工艺实现视觉纯化,嵌入式智能家居模块贯通空间脉络,功能分区精确对应居住者的行为轨迹。
顶天立地、整齐划一、功能至上都让“收纳”这个词拥有极强的存在感,而在本案中这种克制的秩序感,并未止步于实用主义,设计团队试图解构这份存在感,通过进退有度的体块切割和材质配比,让功能模块蜕变为空间节奏的一部分,用视觉留白去重构空间秩序。
自步入空间起始,左侧的空间便以消隐式收纳系统成为家的储物主力之一,配色统一于墙面,极度简洁的木饰面板实现“隐于形”的大容量。玄关端景以悬浮构造的电视墙化身空间装置艺术,电子壁炉跃动的火焰成为动态端景,将东方哲学中的“隐逸美学”与当代极简主义解构思维融合,在物理遮挡与视觉延伸之间,为归家仪式预留出缓冲带。
为了强化大平层的空间体量感,设计团队运用将结构缺陷转化为空间焦点的逆向思维:首先拆除非必要隔墙扩展景观阳台进深,构建开阔的横厅格局;针对原始布局中不可拆除的立面承重柱,转化为空间功能枢纽,通过模块沙发环绕结构形成洄游动线,弱化结构突兀性;柱体立面依照比例解构块面,同步整合展示功能,既化解量体压迫感,又形成具有向心力的社交磁场。
通高柜体覆以哑光烤漆板形成空间立面构成,大块面瓷砖地板通铺打造一体感,灰阶基底上搭配深色木饰面、天然石材和开放格点缀,通过视觉连续性强化空间整体感,在简约基调中增添空间层次韵律,以几何留白重构大平层的精妙尺度,实现功能与美学表现的精准平衡。
在极简硬装框架下,软装设计遵循克制中见层次的搭配逻辑,在灰白基底中勾勒出视觉温度,构建起多维度的形式呼应:深色哑光皮质沙发与黑实木茶几构成视觉重心,其哑光质感与空间柜面形成微妙的对话;模块沙发的悬浮效果源于地面抬升设计,通过木质基层形成视觉漂浮感,同时暗藏线性灯带强化层次,沙发和茶几与电视墙悬浮结构形成设计逻辑闭环;装饰性元素严格控制数量与尺度,黑色线形壁灯以垂直线条呼应承重柱体,通过几何切割与光带构成的双重比例,让严谨的数理逻辑也能达到视觉疗愈效果。
钢琴区和阅读区采用渗透式布局,与客厅形成功能上的叠加,依墙体设置开放式书架和储物抽屉,钢琴区采用嵌入柜体式设计,充分利用空间的边角区域,从材质上确保功能构建在视觉层面隐形于空间基调中。通过承重柱建立视觉轴线,使三个区域在保持独立性的同时,实现视线的连续性穿透。
在餐厨系统的设计中,餐厨一体作为常规设计思路,很大程度上缓解了空间储物的不足。设计通过柜体结构的多样组合形成丰富的功能矩阵,嵌入式电器与多层收纳系统,实现场景化收纳分区,既可承载日常实用工具,也可进行展示型存储。
悬浮吊柜与暗藏式线性照明的组合,在提升操作便利的同时,以光影层次消解体量厚重感,再结合整体空间内的材质色系把控,使功能构建自然融入空间基底,完成结构限制到功能美学的现代性转译。
中厨空间以顶置吊轨的方式实现空间界面的隐形转换,吊轨系统通过预埋结构与天花板造型整合,地面无门槛石过渡,完整保留空间的纯粹状态。玻璃面与餐厨柜门保持同色系灰度值,在透光性与私密性间取得平衡,既确保中式烹饪时的油烟阻隔,又在开放模式下维系餐厨空间的视觉完整性。
主卧设计以实用性与舒适性为出发点,围绕实用功能与居住习惯展开规划。收纳系统通过定制组合衣柜实现换季区与日常高频区的分区管理,灯光采用筒灯提供基础照明,配合床头阅读灯来平衡功能与氛围需求。同时,地面通铺木地板提成触感舒适度,用材质细节来强化卧室特征。
空间延续公区整体风格,卧室入口门与两侧柜体采用同色同高设计,门板材质与柜体饰面完全统一,上下取消收口线条,形成简洁连贯的立面效果。主卫入口则设计为隐形推拉门,轨道采用预埋式吊轨结构,门体表面材质与相邻衣柜完全一致,关闭时可完全融入柜体系统,既保证视觉整体性又便于日常清洁维护。
次卧设计以青春期女孩的成长需求为核心,兼顾学习效率与生活品质。空间整体采用低饱和度配色方案,通过系统性功能整合,在有限的空间内构建兼具独立性与舒适度的成长环境。结合空间原始结构设计多功能书桌,墙面安装置物架,以满足不同物品的陈列与收纳。
全屋配置三间卫生间以满足日常使用需求,设计重点在于优化功能布局与提升生活便利性。采用壁挂式马桶和悬挂洗漱台,消除地面卫生死角,洗漱区设置储物柜体结合垂直型壁龛形成卫生间收纳体系。干湿分区采用通高玻璃隔断,地面墙面统一铺贴强化视觉整体性。在保障实用功能的同时,最大限度保持空间整洁度。
现代极简风格的住宅设计,其核心在于对空间本质的精细化处理,相较于其他类型住宅来说,大平层的设计重点更侧重于系统化优化空间延展性与功能密度,在有限的界面中实现通透性与实用性的双重提升。本案摈弃符号化的风格演绎,通过空间本质的深度解构,在功能与形式的临界点上寻找平, , , 衡,当理性建构遇见感性温度,意式精工轻触东方留白,这里,“少即是多”的设计箴言被重新诠释为生活美学的无限可能。
项目名称:素影象限
项目地址:四川成都
项目面积:188平米
设计公司:之境内建筑
设计团队:廖志强、张静、丁海欣
设计内容:全案设计
施工单位:一恒筑造
项目摄影:季光
项目摄像:周一

有维建筑设计

衡建筑

尔我空间设计研究室

目心设计研究室

Atelier Zeros

伍米尺建筑设计事务所

观白设计

水相设计

of gaaarden

因宜设计

八荒设计

of gaaarden

超空间工作室

边缘计划建筑工作室

巨人设计

ht DESIGN STUDIO

多棵设计

今古凤凰空间策划机构

NDB DESIGN

演意设计

璞珥空间设计

谢秉恒设计

乐享设计

杭州辰佑设计

杭州辰佑设计

上海问和答