 
      
         
        公共空间是一个古老概念,从古希腊的神庙到中国的祠堂,它们承载着每一历史阶段人类的认知和对自身的理解,伴随着现代化的进程,城市的出现,公共空间成为了城市的硬件,合理的人性化设计最大化便捷了人的日常生活。然而,后现代的到来宣告了信息网络化的开始,传统符号能指和所指的关联被打破,解构了当下社会和文化的内涵,公共空间的功能和意义被重新阐述和建构,原有的功能性空间需要被新的语境来填充和替代。
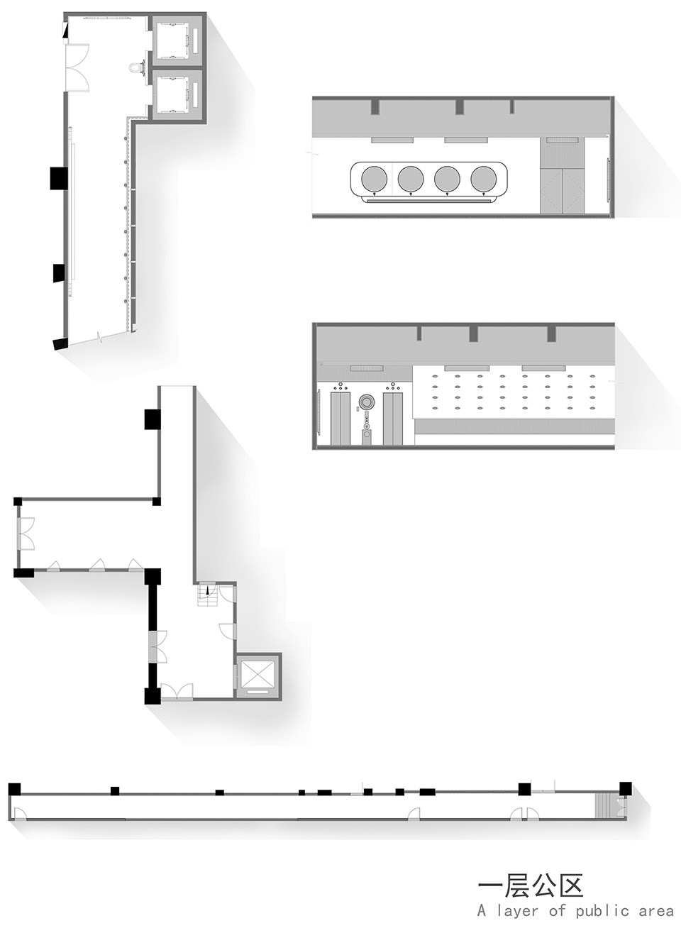
厕所,是建筑空间中较为隐蔽私密的场所,一个需要被隐饰的空间。瓷砖贴满了地面和墙体,洗手池,淋浴器,卷筒纸,马桶,卫生巾,镜子这些原本存在于厕所里的物件大量符号化的出现在公共通道里,占领了我们日常熟悉的空间。项目地星澜里“厕所”:包含了电梯通道,扶梯通道和后勤员工通道以及真正的公区厕所. 原本80平方的厕所空间溢出于整个星澜里公区,如黑洞般吞噬扭曲重叠着周围的时空,最终形成了1450平方的厕所。
在这里,强大的引力撕裂着周围的时空,一切传统的审美,情怀和品味被扭曲,粉碎,扼杀,如被黑洞吞噬的光线难以逃逸。单一功能化的公共通道成为了厕所空间的延伸,这些在日常审美经验中并非高雅的物品被放大,堆砌,排列……黑洞的引力使星系之间彼此碰撞摩擦,在白色,绿色,紫色耀眼的爆炸余辉中经历着毁灭和重生。空间还在生长,时间才刚刚诞生,一切仿佛回到了的原点,这熟悉又陌生的景致宛如上演着一出荒诞不经的舞台剧。
当下视觉语言和图像极大过载的网络时代,我们仿佛置身于信息碎片的镜像世界,只有破镜而出才能打破无尽的审美疲劳,去发现新的可能性。
项目名称:星澜里公共区域
项目地址:浙江省杭州市滨江区西兴路与丹枫路交叉口
面积:1450平方
类型:公共装置
设计机构:PIG DESIGN
主创设计师:李文强
设计团队:谭世杰,程亮,朱义云,陈芸芸,刘若男,邓欢,周思言,唐萌婕,鲍彦俊,王可可
完成时间:2020.4.22
施工:浙江中天精诚装饰集团有限公司
装置制作:浙江德耀金属制品有限公司
灯具设计:李文强
摄影师:王飞,施峥,戚朔迁

迹·建筑事务所(TAO)

10 Design

10 Design

Kokaistudios

Kokaistudios

米丈建筑设计事务所

合尘建筑

姜平工作室

扉建筑

蘑菇云设计工作室

Kokaistudios

头条计画

乾正设计

浅深室内设计

袈蓝建筑

大正建筑事务所

境物建筑设计

墨照建筑设计事务所

联合公设

合尘建筑

Zaha Hadid Design

goa大象设计

大料建筑

边缘计划建筑工作室

GENSLER

天华建筑设计

goa大象设计

三益建筑设计

徽宗设计研究室

华熙万物设计

弘石设计

GENSLER

ARQ建筑事务所

建斐建筑咨询

青墨建筑

Wutopia Lab

都设营造建筑设计事务所

河南曲青春建筑设计事务所

大料建筑

昱景设计

昱景设计

四周建筑

本哲建筑

CLOU 柯路建筑

VARY几里设计

B.L.U.E.建筑设计事务所

四周建筑

蘑菇云设计工作室

朗图设计

未见筑设计事务所

10 Design

Kokaistudios

柏涛设计

10 Design

Kokaistudios

宽建筑

之见空间设计

中德行建筑设计

槃达建筑

坊城建筑设计