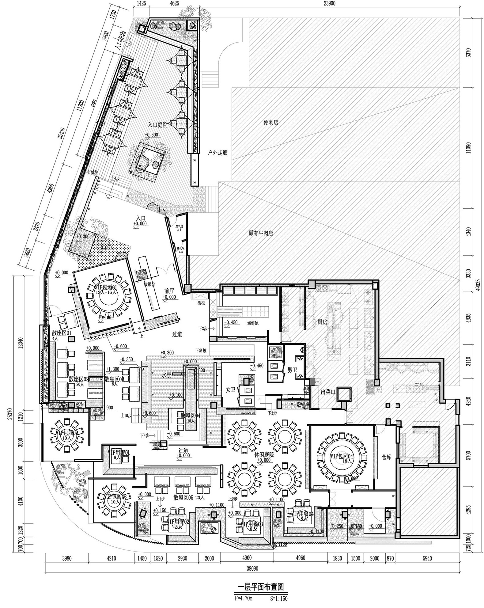
小鱿鱼改造自一个旧工厂露台,独特的地理位置以及非常规的空间原貌赋予了它极大的发挥空间,能够最大限度包容设计师的奇思妙想。入口处灵活呈现切割状的空间体块,在进门之初就冲淡了建筑的厚重感,如同一件充满张力的现代装置艺术,以饱满的线条力度,引导空间由外向内逐层展演。
层高4米6的空间内,在中庭搭建起一个小复层,通道口赫然显现一个架空门框,成为整个空间的精粹之笔,仿佛能带人瞬间坠入异次元时空。通道台阶下又隐匿着一个独立的下沉空间,景深幽邃,静候着到访的食客。抬头看,不规则的吊顶此起彼伏;往前走,经过设计变异的山水造景、园林式窗口前后错落。温柔的木质基调搭配纤尘不染的白墙,脱离了传统大排档红红火火的元素,采用淡雅的色调,打造出一个“仙气十足”的餐饮空间。
小鱿鱼作为扎根于闽南水土的餐饮品牌,不论是它的食材,还是渗透其中的点滴文化,都与“水”息息相关。位于空间正中心的水景台,以景观的固定性以及水本身的流动性,一方面雕琢着开放式空间的边界,另一方面又如同餐厅的动脉,借潺潺流水赋予整个空间生命的活力。前台流水形态的吊灯,墙面上用网绳勾连的渔船,过道层叠的渔场画面,抑或是随意安置在角落的船桨、竹篮,又如同散落在四处的分子,集合起来酿出一曲风味浓厚的醉乡民谣。竹藤间随意散露出来的灯光影影绰绰,印刻着时间的痕迹,在一餐一食、一饮一酌之际,碰撞出全新的现代简约美学魅力。
形式各异的餐桌座椅错落散布在空间内,以分而不隔的方式自然组合成不同的情境,在统一的空间气质下又有微妙的变化,大大丰富了食客的多维就餐体验。与此同时又可以满足大排档的功能属性,将空间主题回归到食物与餐桌上的交流。用餐区灯光设置的较为柔和,暗调的光影在不经意处兀自渲染,营造出秘境般的空间观感,为每桌食客创造专属的私密空间。同时,交织而互不打扰的开放式区域空间又可以卸下人们的防备,让人能够在此敞开心扉,达到来访者借聚餐联络感情、沟通日常的目的。
辗转蜿蜒的餐厅动线设计,不仅能够吊足食客们的胃口,还可以在层理切换之中撩拨人们的好奇心。空间与空间之间的渗透,小景观的处处营造,让人在同一端景中感受到不同的新鲜画面。所到之处,环环相扣,步步皆景,无不彰显设计师的匠心设计,大大提升了“食”的趣味与深度。人们来这里不再仅仅只是为了吃,更是为了在最日常的饮食体验中,感受味蕾与超现实场域的独特碰撞,擦出不一样的生活火花。结合各个部分的多元解构重组,小鱿鱼多趣味、多形态的调性显著易识,景中有景的起承转合,演绎一出情景饱满的空间叙事乐章。随着灯光的明暗转换,整个场景氤氲出精致的烟火气。
简洁清雅的大排档设计并不代表不食人间烟火,而是以纯粹、本质的美感,为城市中行色匆忙的人们提供一个片刻停留之地。精心设计的视觉效果配合味觉铺就一个让食客放松身心的餐饮空间,牵引着每一个到访者倾诉自己的故事,借消散在热气中的短暂言语,为小鱿鱼注入活的灵魂。接地气的海鲜大排档与简约脱俗的设计风格相互碰撞,将现代人的生活方式与返璞自然的地域风情相结合,兼容朴实素雅与现代时尚。人与空间进而产生共鸣,本地食客于此仿佛能感受到家乡的潮湿海风,他乡来客又能在细节中解读出渔民文化背后的质朴因子,二者共同借由空间话语辨认出这一片土地的文化模样。
项目信息
项目名称:厦门海敢小鱿鱼海鲜餐厅
项目地点:福建省厦门市湖里区湖里大道10-12号海峡文创园
项目面积:1200㎡
设计单位:厦门方式设计机构
室内设计:方国溪、谢晨阳
软装陈设:章祺昀、朱瑾
完工时间:2019年9月18日
项目摄影:金伟琦

一横一竖设计

北京对角线设计

不也设计工作室

纬图设计

南京拙木空间设计

星球建筑事务所

构看建筑设计

芝作室

線状建筑设计研究室

無界设计

南京悦设空间设计

名谷设计

浆果创意

于强室内设计师事务所

上海绿建建筑设计事务所

未已空间

朴开十向设计事务所

此西设计

甲板设计

安隆设计

苏格SG空间设计事务所

白菜设计

不止设计

如室建筑设计研究事务

维度华伍德设计

林子设计

IN·X屋里门外

无之设计

白菜设计

堺工作室

野核设计事务所

JK DESIGN STUDIO

自在生成建筑空间设计事务所

FUNUN LAB设计研究室

RooMoo

凡西空间装饰设计

MOC DESIGN OFFICE

壹壹文化

IN·X屋里门外

hhhhs studio

有七设计工作室

IN·X屋里门外

华南理工大学建筑设计研究院

IN·X屋里门外

借光建筑空间设计

IN·X屋里门外

力场(北京)建筑设计

于市设计

芒果建筑设计

FUNUN LAB设计研究室

非木建筑

栋三尺设计

杭州澜廷设计

黑珍珠空间设计事务所

WAY Studio

拿云室内设计

Mirabeau Architecture

IN·X屋里门外

方夏设计

反正建筑事务所

杭州慢珊瑚设计